Котел SIME RX 37 CE IONO - инструкция пользователя по применению, эксплуатации и установке на русском языке. Мы надеемся, она поможет вам решить возникшие у вас вопросы при эксплуатации техники.
Если остались вопросы, задайте их в комментариях после инструкции.
"Загружаем инструкцию", означает, что нужно подождать пока файл загрузится и можно будет его читать онлайн. Некоторые инструкции очень большие и время их появления зависит от вашей скорости интернета.

6
é·ÓÁ̇˜ÂÌËfl
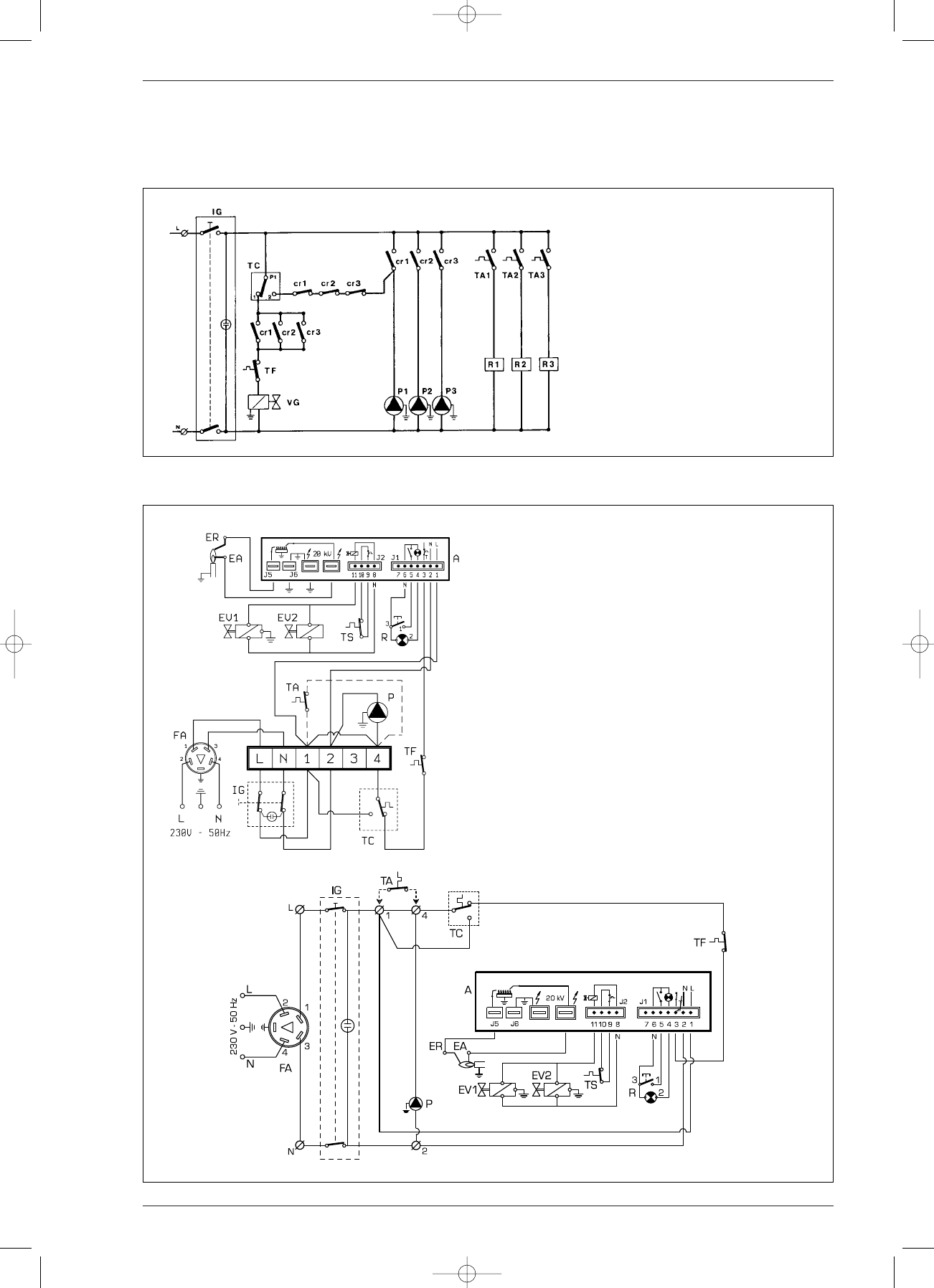
IG
Ç˚Íβ˜‡ÚÂθ ÍÓÚ·
VG
ɇÁÓ‚˚È Í·ԇÌ
TC
íÂÏÓÒÚ‡Ú ÍÓÚ·
TF
чژËÍ Úfl„Ë
P1-P2-P3
ñËÍÛÎflˆËÓÌÌ˚È Ì‡ÒÓÒ ÍÓÌÚÛÓ‚
R1-R2-R3
3ı ÍÓÌÚ‡ÍÚÌÓ ÂÎÂ-„ÛÎflÚÓ
Cr1-Cr2-Cr3
äÓÌÚ‡ÍÚ˚ ÂÎÂ-„ÛÎflÚÓ‡
TA1-TA2-TA3
íÂÏÓÒÚ‡Ú ÔÓÏ¢ÂÌËfl
é·ÓÁ̇˜ÂÌËfl
A
ÅÎÓÍ FM 11
IG
Ç˚Íβ˜‡ÚÂθ ÍÓÚ·
TC
íÂÏÓÒÚ‡Ú ÍÓÚ·
EA
èÛÒÍÓ‚ÓÈ ˝ÎÂÍÚÓ‰ (Á‡ÊË„‡ÌËÂ)
ER
àÓÌËÁ‡ˆËÓÌÌ˚È ‰‡Ú˜ËÍ
P
ñËÍÛÎflˆËÓÌÌ˚È Ì‡ÒÓÒ
TS
è‰Óı‡ÌËÚÂθÌ˚È ÚÂÏÓÒÚ‡Ú
EV1 ä‡Úۯ͇ „‡ÁÓ‚Ó„Ó Í·ԇ̇
EV2 ä‡Úۯ͇ „‡ÁÓ‚Ó„Ó Í·ԇ̇
TF
чژËÍ Úfl„Ë
R
ê‡Á·ÎÓÍËÓ‚‡ÌË ‡ÔÔ‡‡Ú‡
íÄ
íÂÏÓÒÚ‡Ú ÔÓÏ¢ÂÌËfl
FA
èÓÏÂıÓÔÓ‰‡‚Îfl˛˘ËÈ ÙËθÚ
èËϘ‡ÌËÂ: ëÓ‰ËÌÂÌËfl ÚÂÏÓÒÚ‡Ú ÔÓÏ¢ÂÌËfl
Û·ÂËÚ ÔÂÂÏ˚˜ÍÛ ÏÂÊ‰Û 1-4 Á‡ÊËχÏË.
2.6.2
ùÎÂÍÚÓÒıÂχ ÏÓ‰. “IONO”
2.6.1
ùÎÂÍÚÓÒıÂχ Ò ˆËÍÛÎflÚˆËÓÌÌ˚ÏË Ì‡ÒÓÒ‡ÏË
êËÒ. 5/a
êËÒ. 5/‚
RX russo-my2.qxd 5/14/01 12:43 PM Page 6