Котел lemax Премиум 16N В стальной - инструкция пользователя по применению, эксплуатации и установке на русском языке. Мы надеемся, она поможет вам решить возникшие у вас вопросы при эксплуатации техники.
Если остались вопросы, задайте их в комментариях после инструкции.
"Загружаем инструкцию", означает, что нужно подождать пока файл загрузится и можно будет его читать онлайн. Некоторые инструкции очень большие и время их появления зависит от вашей скорости интернета.

12
Премиум-M В. 1.18
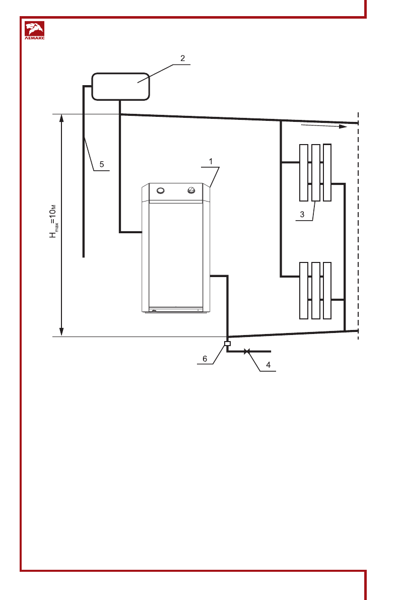
Рис. 2.
1. Котел.
2. Расширительный бачок.
3. Радиатор
отопления.
4. Кран для слива
и заполнения
отопительной
системы.
5. Сигнальная труба.
6. Сбросной
предохранительный клапан.
пРИмеРНаЯ СХема откРытой СИСтемы отоплеНИЯ
Содержание
- 3 СоДеРжаНИе
- 4 с газогорелочным устройством.
- 9 тРеБоваНИЯ БеЗопаСНоСтИ
- 10 УСтРойСтво котла; Котёл «Премиум» с автоматикой 820 Nova
- 11 моНтаж, поДГотовка к РаБоте; тяги зажигать газогорелочное устройство запрещается.
- 12 предохранительный клапан.; пРИмеРНаЯ СХема откРытой СИСтемы отоплеНИЯ
- 15 поРЯДок РаБоты; ку управления по часовой стрелке в позицию «выключено» (
- 16 ) и только затем начинайте
- 17 ратуры на корпусе котла.
- 18 пРавИла ЭкСплУатацИИ, теХНИЧеСкое оБСлУжИваНИе
- 19 ная верхняя крышка облицовки.; ГаРаНтИйНые оБЯЗательСтва; тационных характеристик.
- 20 воЗможНые НеИСпРавНоСтИ И метоДы ИХ УСтРаНеНИЯ; Наименование; СвИДетельСтво о пРИемке
- 21 И пРоФИлактИЧеСкоГо оБСлУжИваНИЯ; Дата; Проверить состояние дымохода и силу тяги в нем
- 23 ГаРаНтИйНый талоН No2
- 24 СеРвИСНые цеНтРы