Котел KITURAMI World Alpha-15 - инструкция пользователя по применению, эксплуатации и установке на русском языке. Мы надеемся, она поможет вам решить возникшие у вас вопросы при эксплуатации техники.
Если остались вопросы, задайте их в комментариях после инструкции.
"Загружаем инструкцию", означает, что нужно подождать пока файл загрузится и можно будет его читать онлайн. Некоторые инструкции очень большие и время их появления зависит от вашей скорости интернета.

26
World Alpha
ДЛЯ СПЕЦИАЛИЗИРОВАННЫХ ОРГАНИЗАЦИЙ
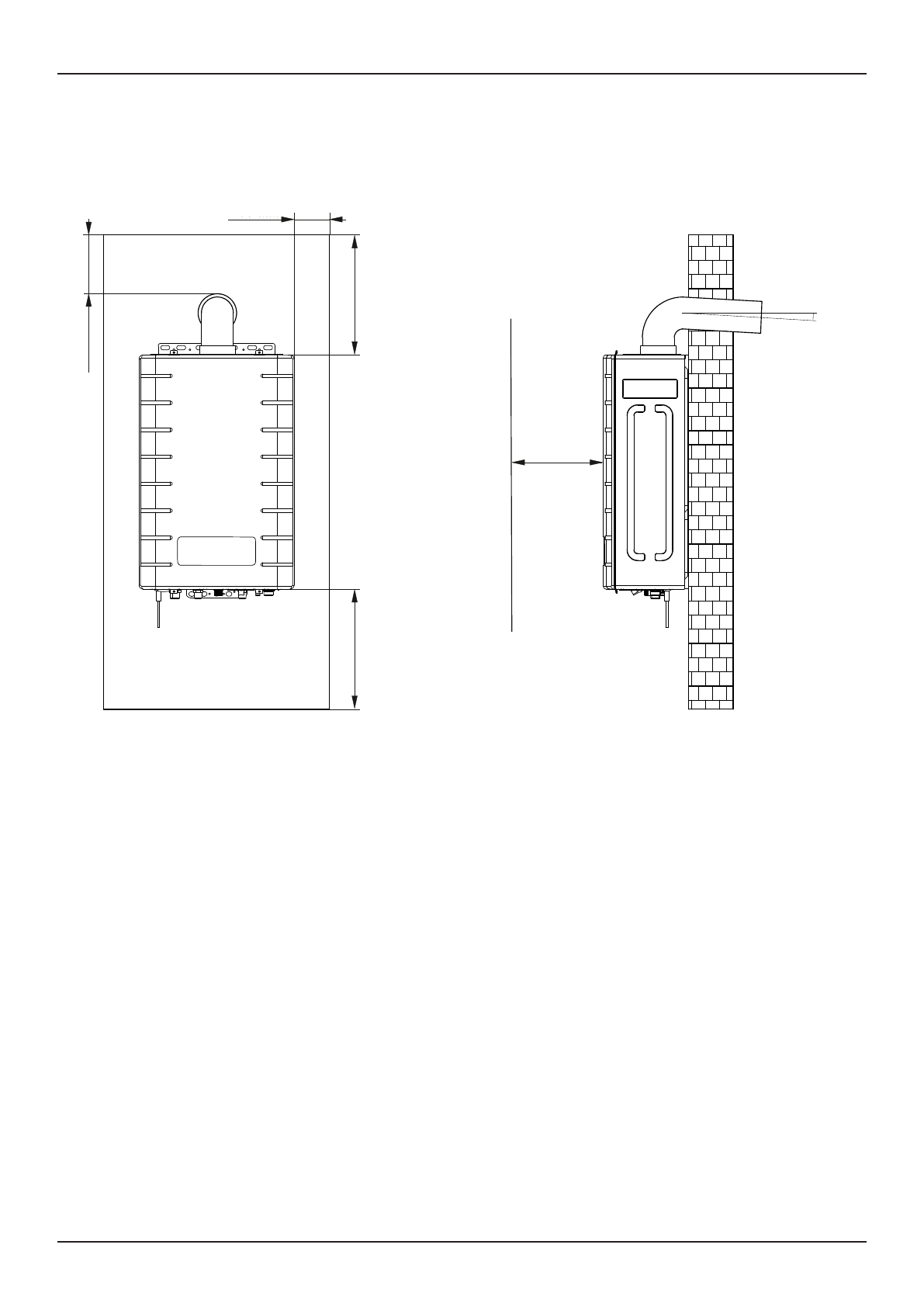
13.2. Монтаж котла.
Монтаж котла допускается только в помещениях с температурой не ниже +5 °С.
В помещении, в котором устанавливается котел, должно быть достаточно места для проведения тех
-
нического обслуживания и ремонта. Расстояние между котлом и стеной должно быть не менее 40 см, до
потолка – 30 см.
≥
100 мм
≥
400 мм
3-5°
≥
500 мм
≥
150 мм
≥
300 мм
Рисунок 8. Пространство для технического обслуживания.
Котел должен быть установлен строго вертикально. При уклоне в 2° датчик сейсмической активности
не позволит запустить котел и на дисплее отобразится код неисправности.
Стена должна выдержать вес котла с водой (35
–
45 кг) и быть огнеупорной. В случае установки на сте
-
не из воспламеняемых материалов, необходимо закрепить на ней плиту из огнеупорного материала (не
металлическую) толщиной не менее 3 см.
Котел на стене необходимо закрепить с помощью анкерных болтов, поставляемых в комплекте с кот
-
лом.
13.3. Монтаж дымохода.
13.3.1. Общие требования монтажа дымохода.
Внимание!
Монтаж системы дымоудаления может проводить только специализированная организация в стро
-
гом соответствии с проектом и нормативными актами. Самостоятельный монтаж системы дымоу
-
даления запрещен.
Для удаления дымовых газов и забора воздуха в котле с закрытой камерой сгорания и принудитель
-
ным дымоудалением используются коаксиальная или раздельная системы дымоудаления. Дымоотводя
-
щие и воздухозаборные трубы устанавливаются с выходом на улицу через стену или в общедомовой
воздухозаборный и дымовой канал. Запрещается изменение их формы и конструкции.
Горизонтальные участки дымохода должны быть смонтированы так, чтобы они имели уклон 3-5° (1
см на 1 м трубы) в сторону улицы для удаления конденсата и во избежание попадания дождевой воды в












У меня китурами WORLD ALPHA C-15 с дисплеем подключаю комнатный термостат CTR 5900 режим работы устанавливаю по темпиратуре воздуха но котел все равно работает по темпиратуре теплоносителя. В чем проблема может подскажите
Добрый день!
Котел китурами WORLD ALPHA -15 почему после отключения горелки он постоянно шумит. Это что так работает насос или вентилятор, он же должен отключаться полностью