Котел Ferroli PegASUS D 20 40 - инструкция пользователя по применению, эксплуатации и установке на русском языке. Мы надеемся, она поможет вам решить возникшие у вас вопросы при эксплуатации техники.
Если остались вопросы, задайте их в комментариях после инструкции.
"Загружаем инструкцию", означает, что нужно подождать пока файл загрузится и можно будет его читать онлайн. Некоторые инструкции очень большие и время их появления зависит от вашей скорости интернета.

PEGASUS D
51
UK
cod. 3540T991 - 09/2009 (Rev. 00)
5.4
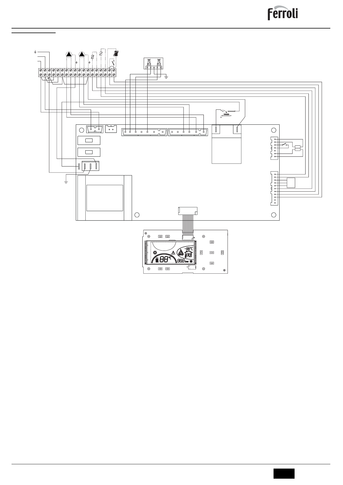
ȿɥɟɤɬɪɢɱɧɚ ɫɯɟɦɚ
ɦɚɥ
. 25 -
ȿɥɟɤɬɪɢɱɧɚ ɫɯɟɦɚ
32
ɐɢɪɤɭɥɹɰɿɣɧɢɣ ɧɚɫɨɫ ɤɨɧɬɭɪɭ ɨɩɚɥɟɧɧɹ
(
ɩɨɫɬɚɱɚɽɬɶɫɹ ɨɤɪɟɦɨ
)
42
Ɍɟɦɩɟɪɚɬɭɪɧɢɣ ɡɨɧɞ ɫɚɧɬɟɯɧɿɱɧɨʀ ɜɨɞɢ
(
ɩɨɫɬɚɱɚɽɬɶɫɹ ɨɤɪɟɦɨ
)
44
Ƚɚɡɨɜɢɣ ɤɥɚɩɚɧ
72
Ʉɿɦɧɚɬɧɢɣ ɬɟɪɦɨɫɬɚɬ
(
ɧɟ ɩɨɫɬɚɱɚɽɬɶɫɹ
)
81
ȿɥɟɤɬɪɨɞ ɪɨɡɩɚɥɟɧɧɹ
82
ȿɥɟɤɬɪɨɞ ɫɩɨɫɬɟɪɟɠɟɧɧɹ ɡɚ ɩɨɥɭɦ
’
ɹɦ
126
Ɍɟɪɦɨɫɬɚɬ ɜɿɞɩɪɚɰɶɨɜɚɧɢɯ ɝɚɡɿɜ
130
ɐɢɪɤɭɥɹɰɿɣɧɢɣ ɧɚɫɨɫ ɫɢɫɬɟɦɢ Ƚȼɉ
(
ɩɨɫɬɚɱɚɽɬɶɫɹ ɨɤɪɟɦɨ
)
138
Ɂɨɜɧɿɲɧɿɣ ɡɨɧɞ
(
ɧɟ ɩɨɫɬɚɱɚɽɬɶɫɹ
)
139
Ʉɿɦɧɚɬɧɢɣ ɛɥɨɤ
(
ɧɟ ɩɨɫɬɚɱɚɽɬɶɫɹ
)
246
Ⱦɚɬɱɢɤ ɬɢɫɤɭ
278
ɉɨɞɜɿɣɧɢɣ ɞɚɬɱɢɤ
(
Ȼɟɡɩɟɤɚ
+
Ɉɩɚɥɟɧɧɹ
)
DSP05
7
6
5
4
3
2
1
11
10
9
8
7
6
5
4
3
2
1
T1
T2
X7
7
6
5
4
3
2
1
6
5
4
3
2
1
X5
F1
F2
X1
X2
X4
X3
X6
X8
X10
2
1
T°
T°
278
GND
+5V
OUT
246
L
N
230V
50Hz
138
139
72
L
N
4
5
6
7
8
9 10 11 12 13 14 15 16 17 18
126
DBM07A
44
82
81
32
130
42
