Котел Ferroli Fortuna C 24 с открытой камерой сгорания - инструкция пользователя по применению, эксплуатации и установке на русском языке. Мы надеемся, она поможет вам решить возникшие у вас вопросы при эксплуатации техники.
Если остались вопросы, задайте их в комментариях после инструкции.
"Загружаем инструкцию", означает, что нужно подождать пока файл загрузится и можно будет его читать онлайн. Некоторые инструкции очень большие и время их появления зависит от вашей скорости интернета.

FORTUNA
9
RU
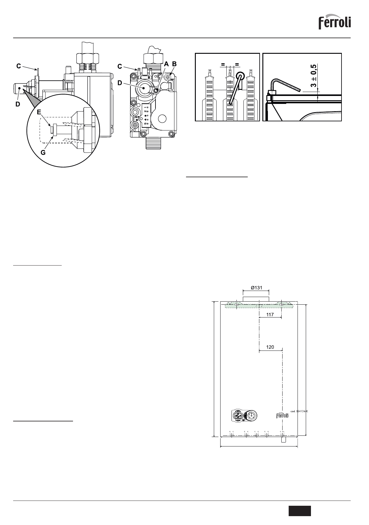
рис. 15 – Газовый клапан
А – Винт защитного колпачка
В – Разъем для замера давления на выходе из клапана
С – Провод катушки модуляции
D – Защитный колпачок
Е – Регулировка минимального давления
G – Регулировка максимального давления
Регулировка максимальной мощности отопления
Для регулировки максимальной мощности отопления установите котел в режим TEST
(см. п. 4.1). Нажимайте кнопки задания температуры отопления (поз. 3 – рис. 1) для соответ
-
ственного увеличения или уменьшения мощности (минимальная – 00, максимальная – 99).
При нажатии в течение 5 секунд после этого кнопки
«RESET»
сохранится только что задан
-
ная максимальная мощность.
Выйдите из режима TEST (см. п. 4.1).
4.2 Ввод в эксплуатацию
Перед включением котла
• Проверьте герметичность системы подвода газа.
• Проверьте правильность предварительно созданного в расширительном баке давления.
• Заполните систему водой и полностью спустите воздух из котла и системы отопления.
• Удостоверьтесь в отсутствии утечек воды из системы отопления, контура ГВС, из котла
и в различных соединениях.
• Проверьте правильность выполнения электрических соединений и эффективность
заземления.
• Удостоверьтесь, что величина давления газа соответствуют требуемому значению.
• Проверьте, что в непосредственной близости от котла не находятся огнеопасные жид
-
кости и материалы.
Контрольные операции, выполняемые во время работы
• Включите котел.
• Проверьте герметичность топливного контура и водопроводов.
• При работающем котле проверьте, нормально ли работают дымоход и воздуховоды
для притока воздуха и удаления дымовых газов.
• Проверьте, правильно ли циркулирует вода между котлом и системой отопления.
• Удостоверьтесь, что газовый клапан правильно обеспечивает модуляцию мощности,
как в режиме отопления, так и в режиме ГВС.
• Проверьте работу системы розжига котла. Для этого несколько раз включите и выклю
-
чите котел путем регулировки комнатного термостата или с пульта дистанционного
управления.
• Удостоверьтесь по показаниям счетчика, что расход газа соответствует величине, ука
-
занной в таблице технических данных.
• Проверьте, что при отсутствии сигнала на включение отопления, горелка зажигается
при открытии любого крана системы ГВС.
• Проверьте правильность запрограммированных параметров и, если необходимо, вне
-
сите необходимые изменения (мощность, температура и т.д.).
4.3 Техническое обслуживание
Периодический контроль
Чтобы обеспечить исправную работу агрегата с течением времени, необходимо раз в год
приглашать квалифицированный персонал для следующих проверок:
• Управляющие и предохранительные устройства (газовый клапан, термостаты и пр.)
должны исправно работать.
• Контур отвода дыма должен быть исправным и эффективным.
(Котел с закрытой камерой: вентилятор, реле давления и пр. – Закрытая камера долж
-
на быть герметичной: прокладки, прижимы для кабелей и пр.).
(Котел с открытой камерой: стабилизатор тяги, термостат дыма и пр.).
• Трубопроводы и оголовки для забора воздуха и отвода дыма не должны быть загро
-
мождены и не должны иметь утечек.
• Горелка и теплообменник должны быть чистыми и без отложений. Для их очистки не
используйте химические продукты или стальные щетки.
• Электрод не должен иметь нагара и должен правильно располагаться.
рис. 16 – Положение электрода
• Все газовые и гидравлические соединения должны быть герметичными.
• Давление воды в холодном отопительном контуре должно составлять около 1,2 бара;
в противном случае следует настроить это значение.
• Циркуляционный насос не должен быть заблокированным.
• Давление воздуха в расширительном баке должно равняться 1 бар.
• Расход и давление газа должны соответствовать значениям из соответствующих
таблиц.
4.4 Устранение неисправностей
Диагностика
Котел оснащен современной системой самодиагностики. В случае возникновения ка
-
кой-либо неисправности, символ неисправности (поз. 11 – рис. 1) и соответствующий код
начинают мигать на дисплее.
Некоторые неисправности (обозначаемые буквой «А») приводят к постоянной блокировке
котла: В этом случае следует произвести ручной сброс блокировки, нажав кнопку
«RESET»
(поз. 6 – рис. 1) в течение 1 секунды или кнопку
«RESET»
на пульте ДУ с таймером
(опция), если таковой установлен; если котел не включится, то необходимо устранить
неисправность.
Другие неисправности (обозначенные буквой «F») вызывают временную блокировку кот
-
ла. Данная блокировка, как правило, снимается автоматически, как только вызвавший ее
возникновение параметр возвращается в нормальные рабочие пределы.
Внимание:
категорически запрещается срывать пломбы завода изготовителя или сервис
-
ного центра, в случаях повреждения пломбы – сервисный центр имеет право снять обору
-
дование с гарантии.
Необходимо проводить ежегодное техническое обслуживание
для продления срока гарантии и вашей безопасности.
* для модели
Fortuna C32 – Ø161
Содержание
- 3 Уважаемый Покупатель!
- 4 FORTUNA
- 10 – нажмите кнопку
- 11 Гидравлический контур
- 12 Таблица технических данных; А = Потери напора в котле – 1,2 и З = Скорость циркуляционного насоса
- 13 Электрическая схема; Внимание: Перед подключением; комнатного термостата; или; устройства дистан; необходимо удалить перемычку на клеммной; DIP – переключатели; рис. 20 – Электрическая схема
- 14 ИДЕНТИФИКАЦИОННАЯ ТАБЛИЧКА КОТЛА; Расшифровка обозначений:; NOx; Класс по выбросам NOx; СЕРИЙНЫЙ НОМЕР И ДАТА ИЗГОТОВЛЕНИЯ; Срок службы котла составляет 10 лет.
- 16 Представитель изготовителя:

