Котел Ferroli FG - инструкция пользователя по применению, эксплуатации и установке на русском языке. Мы надеемся, она поможет вам решить возникшие у вас вопросы при эксплуатации техники.
Если остались вопросы, задайте их в комментариях после инструкции.
"Загружаем инструкцию", означает, что нужно подождать пока файл загрузится и можно будет его читать онлайн. Некоторые инструкции очень большие и время их появления зависит от вашей скорости интернета.

FG
15
GB
cod. 3540I950 - 06/2007 (Rev. 00)
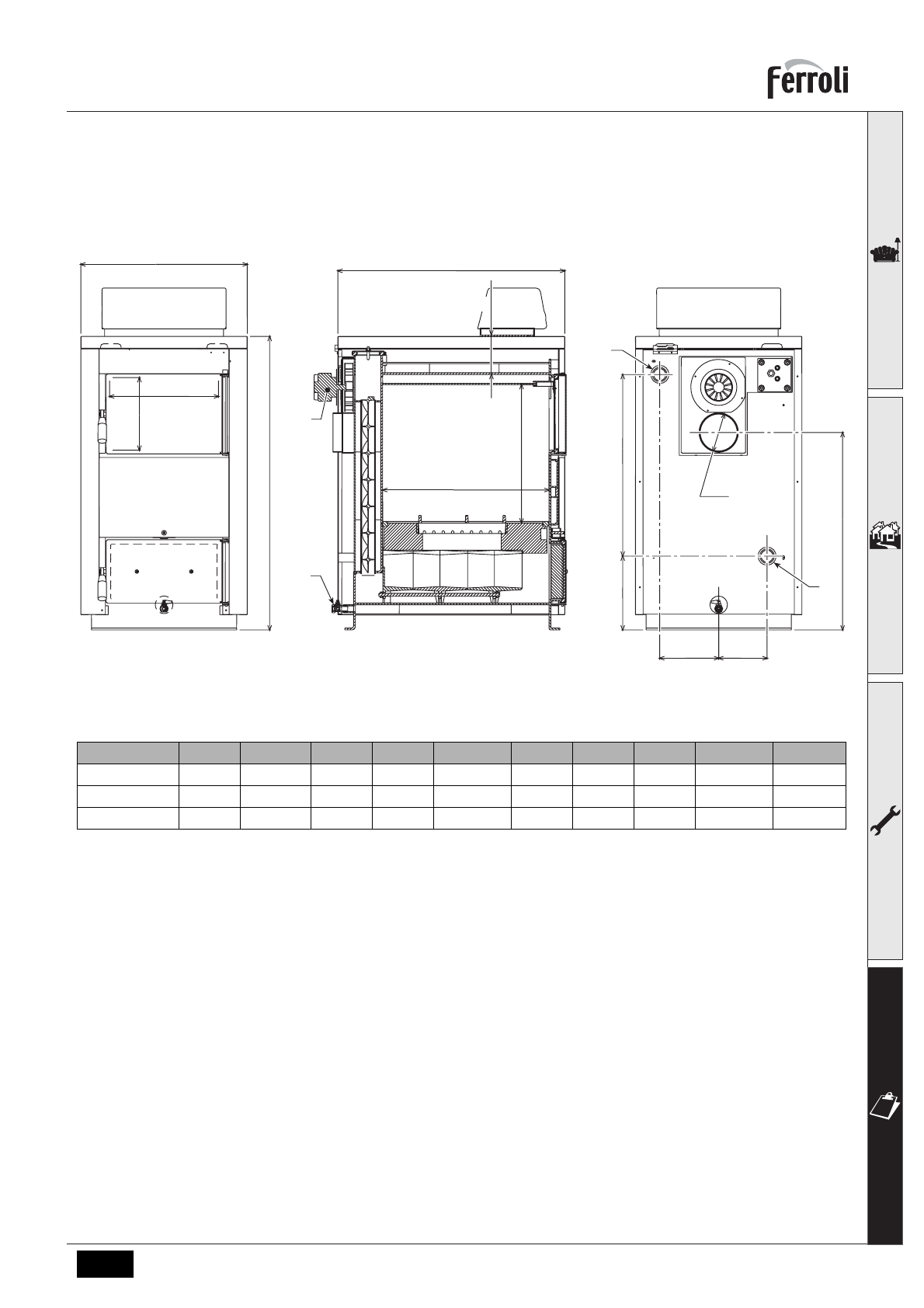
4. Technical data and characteristics
4.1 Dimensions, connections and main components
fig. 7 - Dimensions, connections and main components
Key
10
System delivery
11
System return
16
Fan
275
System water drain
Model
A
B
C
D
E
F
G
H
I
L (Ø)
Fg 30
550
970
750
550
457.7
600
195
160
652.5
130
Fg 40
550
1150
750
550
637.5
780
195
160
812
150
Fg 50
600
1150
930
730
627.5
780
220
185
812
150
A
360
240
B
C
D
E
F
244
I
L
G
H
275
10
11
16
86