Котел Ferroli Econcept 50 - инструкция пользователя по применению, эксплуатации и установке на русском языке. Мы надеемся, она поможет вам решить возникшие у вас вопросы при эксплуатации техники.
Если остались вопросы, задайте их в комментариях после инструкции.
"Загружаем инструкцию", означает, что нужно подождать пока файл загрузится и можно будет его читать онлайн. Некоторые инструкции очень большие и время их появления зависит от вашей скорости интернета.

ECONCEPT 50A
17
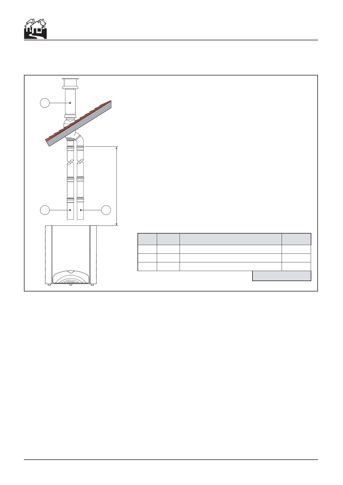
Рис. 11
Поз.
1
2
3
N частей
12
12
1
Вертикальный воздуховод
Выхлопной патрубок
Описание
Эквивалент
потерь
19,2 м
12,0 м
12,0 м
43,2 м
Всего
12 м
1
2
3
Пример расчета двухтрубного дымоход с максимальной длиной: 45 метров
Газоход и воздуховод должны иметь уклон к котлу как минимум 3%.
Вертикальный газоход
Характеристики
Остались вопросы?Не нашли свой ответ в руководстве или возникли другие проблемы? Задайте свой вопрос в форме ниже с подробным описанием вашей ситуации, чтобы другие люди и специалисты смогли дать на него ответ. Если вы знаете как решить проблему другого человека, пожалуйста, подскажите ему :)
