Котел Ferroli Domitop F24 - инструкция пользователя по применению, эксплуатации и установке на русском языке. Мы надеемся, она поможет вам решить возникшие у вас вопросы при эксплуатации техники.
Если остались вопросы, задайте их в комментариях после инструкции.
"Загружаем инструкцию", означает, что нужно подождать пока файл загрузится и можно будет его читать онлайн. Некоторые инструкции очень большие и время их появления зависит от вашей скорости интернета.

DOMITOP F 24 E
23
—ÊÁ. 21
”¬ÓÙ˝Í¸¯˝Ê¯
BR
¤ÓÏʸ˝¯Ë˜ı
BLUE
fiÓÔȬÓı
BL
·¯Ï˝˜ı
W
∆¯Ô˜ı
O
”ÏÍ˝≈¯Ë˜ı
G
Ÿ¯Ô¯˝˜ı
R
¤ÏÍÁ˝˜ı
V
…ÊÓÔ¯ÚÓ˘ı
Õ‚Àflœ‚À›
ÀÖ”‘÷ŸŒ⁄◊› ◊›—fl”Ã◊œ◊ –”fl›ÿ›‚À„ (24 V)
∆›Ÿ ‚œ–—„ƒ›‚À„ ‚œ ¤”‚◊œ¤◊œˇ.
–”’¤‘»·›‚À› 230 Õ ¤ ◊›—fl”Ã◊œ◊Œ
–”fl›ÿ›‚À„ –—ÀÕ›’›◊ ¤
‚›”∆—œ◊Àfl‹fl ‚›ÀÖ—œÕ‚”Ã◊„fl
ú‘›¤◊—”‚‚”⁄ –‘œ◊‹.
72
◊¯Ï˙ÓÁÚÍÚ ÎÓ˙¯Û¯˝Ê˛
81
úÔ¯ˆÚÏÓ ÏÓÙ≈Ê˘Í
82
úÔ¯ˆÚÏÓ ˆÓ˝ÚÏÓÔ˛ ÎÔÍ˙¯˝Ê
98
–¯Ï¯ˆÔ√¸ÍÚ¯ÔÒ ÕˆÔ/”ÚˆÔ/Reset
114
L
’Íڸʈ ˙Ê˝Ê˙ÍÔÒ˝Ó˘Ó ÍËÔ¯˝Ê˛
136
—ÍÁ‰ÓÓ˙¯Ï
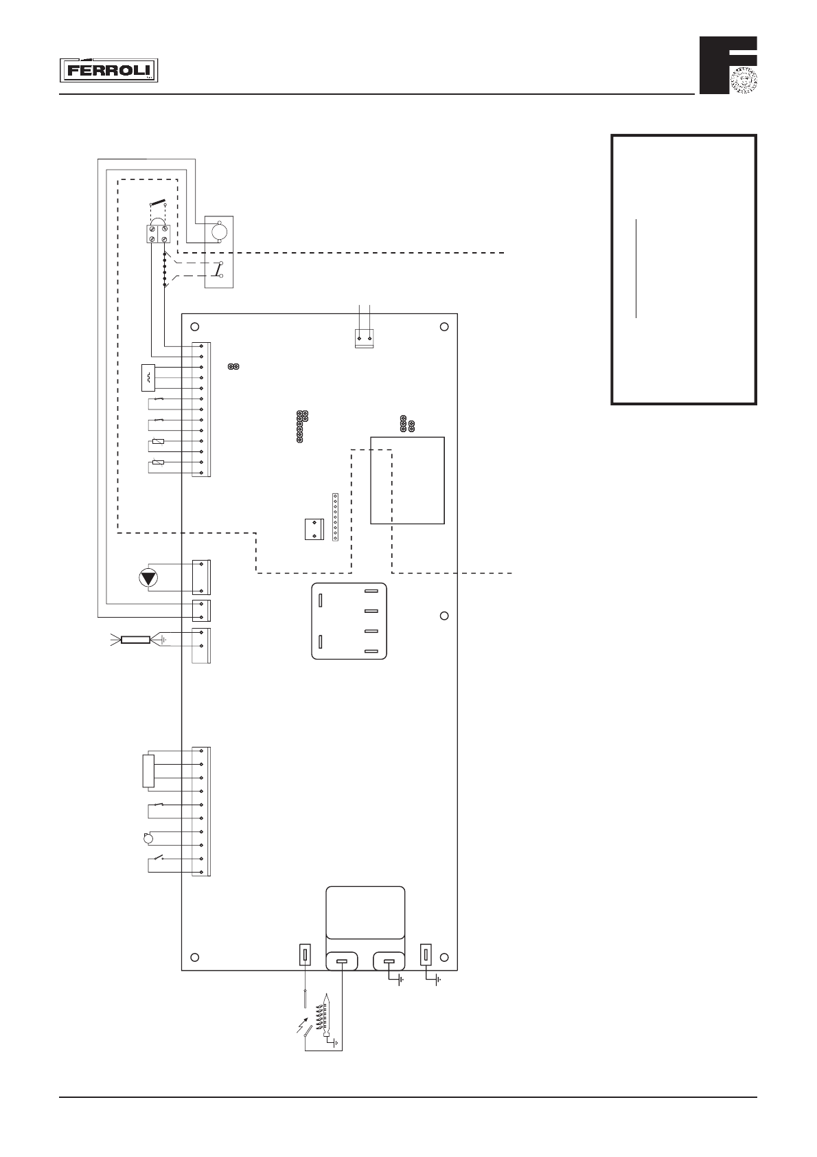
3.13 ú‘›¤◊—À·›Ã¤œ„ Ãˇ›flœ
X6
X1
X2
X3
X4
1
21
21
3
1
2
3
4
5
6
7
8
9
10
1
2
3
4
5
6
7
8
9
10
11
12
13
2
1
X5
TEST
-+
X12
1
2
1
2
3
4
5
6
7
8
9
X10
W
O
V
R
X8
X7
81
82
MF03F
JP02
JP01
JP03
Nat/LPG
X1
1
230Õ
24Õ
230Õ
24Õ
3
5
2
1
M
62
72
4
3
BR
Blue
BR
Blue
BR
Blue
MV1
MV2
MV3
MV4
Blue
BR
Blue
BR
BL
BL
R
R
Blue
Blue
O
O
Blue
BR
G
BL
W
BL
BL
BL
Y/G
Y/G
BL
98
136
50
11
4
42
34
32
44
49
16
43
230V
50fi˚
”¬ÓÙ˝Í¸¯˝Ê¯
16
Õ¯˝ÚÊÔ˛ÚÓÏ
32
‚ÍÁÓÁ ˚¯˝ÚÏÍÔÒ˝Ó˘Ó ÓÚÓÎÔ¯˝Ê˛
34
’Íڸʈ Ú¯˙ίÏÍÚÈϘ ÁÊÁÚ¯˙˜ ÓÚÓÎÔ¯˝Ê˛
42
’Íڸʈ Ú¯˙ίÏÍÚÈϘ ÁÊÁÚ¯˙˜ fiÕÃ
43
’Íڸʈ ÍËÔ¯˝Ê˛ ËÓÙȉÍ
44
fiÍÙÓ˘ı
ˆÔÍÎÍ˝
49
◊¯Ï˙ÓÁÚÍÚ
¬¯ÙÓÎÍÁ˝ÓÁÚÊ
50
–ϯ¯ÔÒ˝˜ı Ú¯Ï˙ÓÁÚÍÚ ÓÚÓÎÔ¯˝Ê˛
62
◊Íı˙¯Ï (˝¯ ÎÓÁÚÍËÔ˛¯ÚÁ˛)
Здравствуйте! Для котла Domitop HF24E мною приобретен ИБП ( онлайн ). При работе от ИБП и при наличии сети 220 в. котел исправно работает. При отключении сетевого напряжения ИБП переходит в режим работы от АКБ при этом котел продолжает работать 6-10 сек и переходит в аварийный режим. В момент перехода с сети на работу от АКБ контроль тестером не показывает никаких изменений. Буду признателен за помощь с вашей стороны в разрешении моего вопроса. С уважением Сергей Анатольевич.