Котел Ferroli Domitop F24 - инструкция пользователя по применению, эксплуатации и установке на русском языке. Мы надеемся, она поможет вам решить возникшие у вас вопросы при эксплуатации техники.
Если остались вопросы, задайте их в комментариях после инструкции.
"Загружаем инструкцию", означает, что нужно подождать пока файл загрузится и можно будет его читать онлайн. Некоторые инструкции очень большие и время их появления зависит от вашей скорости интернета.

DOMITOP F 24 E
14
—ÊÁ. 12
A=L+(85-90)˙˙
2
1
Dıtail du montage du coude
25-30 ˙˙
60
2
1
1=100 2=60
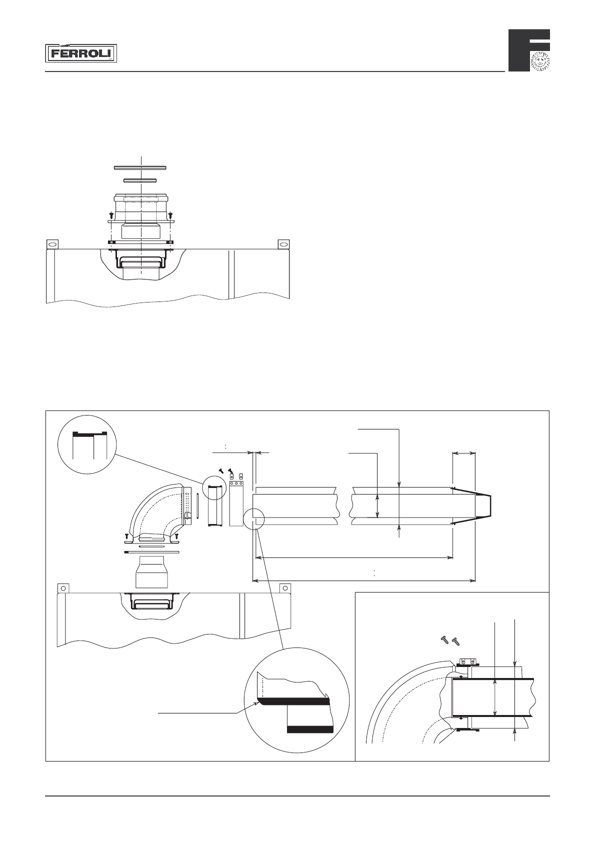
3.05 կω˝Êı ÓÚËÓ ˜˙Ó˘‰ ˘ÍÙÓË, ˆÓ˝˚¯˝ÚÏʸ¯ÁˆÊı ˜˙Ó‰Ó
3.05.1 Õ¯ÏÚʈÍÔÒ˝Ó¯ ˆÓ˝˚¯˝ÚÏʸ¯ÁˆÓ¯ ÎÓˆÔ√¸¯˝Ê¯
…ÍÁˆÍ Ë˝ÈÚϯ˝˝¯ı ÚÏȬ˜
flÓ˝ÚÍ≈ ÎÓËÓÏÓÚÍ
Õ¯ÏÚʈÍÔÒ˝Í˛ ÁÓ¯Ê˝ÊÚ¯ÔÒ˝Í˛ ËÁÚÍËˆÍ ˙Ó≈¯Ú
Î Ó Á Ú Í Ë Ô ˛ Ú Ò Á ˛ Ô ˛ ˜ ˙ Ó ‰ Ó Í Á ˆ Ó ˝ ˚ ¯ ˝ Ú Ï Ê ¸ ¯ Á -
ˆÊ˙Ê ÚÏȬÍ˙Ê.
– Ï Ó Á Ú Ó Ú Í ˙ Ó ˝ Ú Í ≈ Í Ê Ê Á Î Ó Ô Ò Ù Ó Ë Í ˝ Ê ¯ Ë È ‰ -
ÁÚÓÏÓ˝˝Ê‰ ÈÎÔÓÚ˝ÊÚ¯Ô¯ı ˝Í ÁÚ˜ˆÍ‰ ¯ÔÍ¯Ú ùÚÓÚ
ËÍÏÊÍ˝Ú ˜˙Ó‰ÓÍ ÎÏÓÁÚ˜˙ Ê ¬¯ÙÓÎÍÁ˝˜˙.
¤Ó˝˚¯˝ÚÏʸ¯ÁˆÓ¯
Õ¯ÏÚʈÍÔÒ˝Ó¯
–ÓÁÓ¯Ê˝¯˝Ê¯
–ÓËÓÏÓÚ 90∞ (ÏÊÁ. 20) ˙Ó≈¯Ú ÎÓÁÚÍËÔ˛ÚÒÁ˛ Ô˛ ˘ÓÏÊÙÓ˝ÚÍÔÒ˝Ó˘Ó ÎÓˆÔ√¸¯˝Ê˛ ËÓÙȉÓ- Ê
˜˙Ó‰ÓÓË. –ÓËÓÏÓÚ ˙Ó≈˝Ó ÏÍÁÎÓÔÓ≈ÊÚ ÎÓ ÓÚ˝Ó̯˝Ê√ ˆ ÁÚ¯˝¯ ÎÓ È˘ÔÓ˙ 45∞.
”
/
”
/
”
\
”
\
Здравствуйте! Для котла Domitop HF24E мною приобретен ИБП ( онлайн ). При работе от ИБП и при наличии сети 220 в. котел исправно работает. При отключении сетевого напряжения ИБП переходит в режим работы от АКБ при этом котел продолжает работать 6-10 сек и переходит в аварийный режим. В момент перехода с сети на работу от АКБ контроль тестером не показывает никаких изменений. Буду признателен за помощь с вашей стороны в разрешении моего вопроса. С уважением Сергей Анатольевич.