Котел Ferroli Domiproject F24 - инструкция пользователя по применению, эксплуатации и установке на русском языке. Мы надеемся, она поможет вам решить возникшие у вас вопросы при эксплуатации техники.
Если остались вопросы, задайте их в комментариях после инструкции.
"Загружаем инструкцию", означает, что нужно подождать пока файл загрузится и можно будет его читать онлайн. Некоторые инструкции очень большие и время их появления зависит от вашей скорости интернета.

DOMIproject F 24
88
RU
4.
Характеристики
и
технические
данные
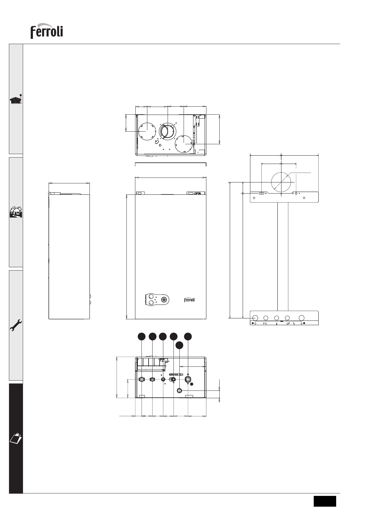
4.1
Габаритные
размеры
и
подключения
рис
. 19 -
Габаритные
размеры
и
подключения
1 =
Подача
воды
в
систему
отопления
2 =
Выход
воды
ГВС
3 =
Подвод
газа
4 =
Подвод
воды
для
контура
ГВС
5 =
Возврат
из
системы
отопления
6 =
Слив
предохранительного
клапана
700
400
95
166
67
115
91
127
151
103
80,5
59
61
60
36,5
230
104
230
41
1
2 3
4
6
5
175
211
110
85
763,5
700,5
63
Ø110 ÷ 120