Котел Ferroli Domiproject F24 - инструкция пользователя по применению, эксплуатации и установке на русском языке. Мы надеемся, она поможет вам решить возникшие у вас вопросы при эксплуатации техники.
Если остались вопросы, задайте их в комментариях после инструкции.
"Загружаем инструкцию", означает, что нужно подождать пока файл загрузится и можно будет его читать онлайн. Некоторые инструкции очень большие и время их появления зависит от вашей скорости интернета.

DOMIproject F 24
82
RU
Подсоединение
к
коллективным
дымоходам
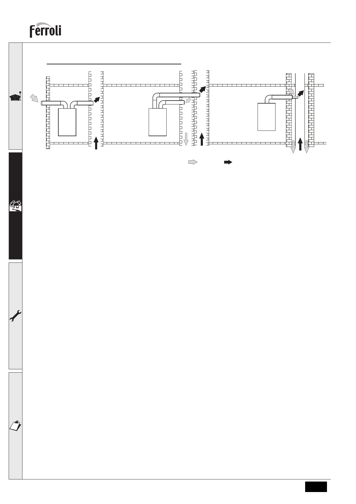
рис
. 14 -
Примеры
подсоединения
к
дымоходам
(
=
Воздух
/
=
Продукты
сгорания
)
Поэтому
,
если
Вы
хотите
подсоединить
котел
DOMIproject F 24
к
коллективному
дымоходу
или
к
отдельному
дымоходу
с
естественной
тягой
,
необходимым
условием
является
,
чтобы
эти
дымоходы
были
спроектированы
квалифицированными
специалистами
в
соответствии
с
действующими
нормами
и
подходили
для
агрегатов
с
закрытой
камерой
сгорания
,
оборудованных
вентилятором
.
В
частности
,
такие
дымоходы
должны
иметь
следующие
характеристики
:
•
Иметь
размеры
,
рассчитанные
в
соответствии
с
действующими
нормами
.
•
Обеспечивать
герметичность
и
отсутствие
утечек
продуктов
сгорания
,
быть
устойчивыми
к
воздействию
продуктов
сгорания
и
температуры
,
быть
непроницаемыми
для
конденсата
.
•
Иметь
круглое
или
квадратное
сечение
,
быть
проложенным
вертикально
и
не
иметь
узостей
.
•
Обеспечивать
достаточную
дистанцию
горячих
продуктов
сгорания
от
огнеопасных
материалов
или
их
изоляцию
от
них
.
•
Быть
подсоединенными
не
более
,
чем
к
одному
агрегату
на
каждом
этаже
.
•
Быть
подсоединенными
к
агрегатам
только
одного
типа
(
все
они
должны
быть
либо
с
принудительной
тягой
либо
с
естественной
тягой
).
•
Не
иметь
механических
средств
всасывания
в
основных
воздуховодах
.
•
Иметь
разрежение
давления
по
всей
длине
в
условиях
стационарной
работы
.
•
Иметь
в
своем
основании
камеру
для
сбора
твердых
остатков
или
конденсата
,
снабженную
герметично
закрывающимся
металлическим
смотровым
люком
.
C
82
C
42
C
42