Котел Ferroli Atlas 32 - инструкция пользователя по применению, эксплуатации и установке на русском языке. Мы надеемся, она поможет вам решить возникшие у вас вопросы при эксплуатации техники.
Если остались вопросы, задайте их в комментариях после инструкции.
"Загружаем инструкцию", означает, что нужно подождать пока файл загрузится и можно будет его читать онлайн. Некоторые инструкции очень большие и время их появления зависит от вашей скорости интернета.

ATLAS
5
IT
cod. 3540S123 - 07/2010 (Rev. 00)
6
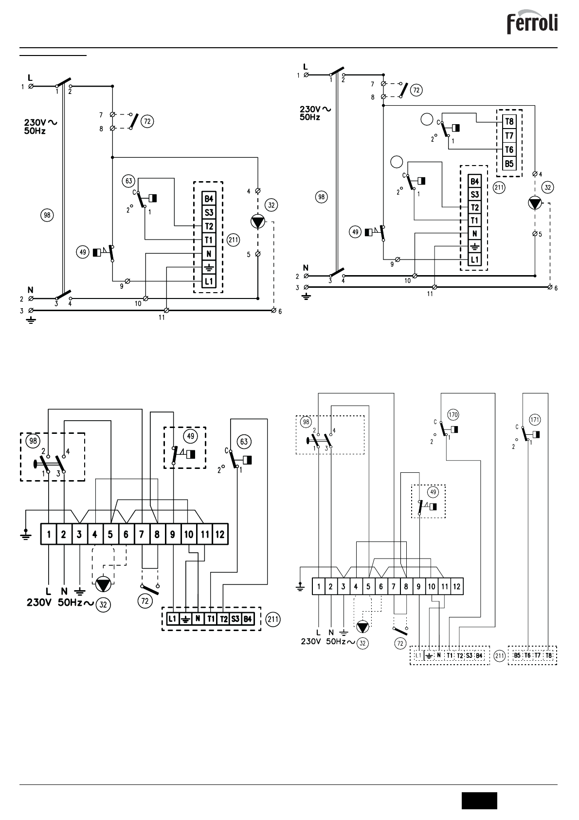
5.4 Schema elettrico
Schema elettrico di principio ATLAS 32-78
fig. 7 - Schema elettrico di principio ATLAS 32-78
Legenda fig. 7 e fig. 8
32
Circolatore riscaldamento (non fornito)
49
Termostato di sicurezza
72
Termostato ambiente (non fornito)
63
Termostato di regolazione caldaia
98
Interruttore
211
Connettore bruciatore (non fornito)
Schema elettrico di allacciamento ATLAS 32-78
fig. 8 - Schema elettrico di allacciamento ATLAS 32-78
Schema elettrico di principio ATLAS 95
fig. 9 - Schema elettrico di principio ATLAS 95
Legenda fig. 9 e fig. 10
32
Circolatore riscaldamento (non fornito)
49
Termostato di sicurezza
72
Termostato ambiente (non fornito)
98
Interruttore
170
Termostato di regolazione caldaia 1° Stadio
171
Termostato di regolazione caldaia 2° Stadio
211
Connettore bruciatore (non fornito)
Schema elettrico di allacciamento ATLAS 95
fig. 10 - Schema elettrico di allacciamento ATLAS 95
1
c
1
c
170
171
1
c
1
c