Котел Ferroli Atlas 32 - инструкция пользователя по применению, эксплуатации и установке на русском языке. Мы надеемся, она поможет вам решить возникшие у вас вопросы при эксплуатации техники.
Если остались вопросы, задайте их в комментариях после инструкции.
"Загружаем инструкцию", означает, что нужно подождать пока файл загрузится и можно будет его читать онлайн. Некоторые инструкции очень большие и время их появления зависит от вашей скорости интернета.

ATLAS
20
EN
cod. 3540S123 - 07/2010 (Rev. 00)
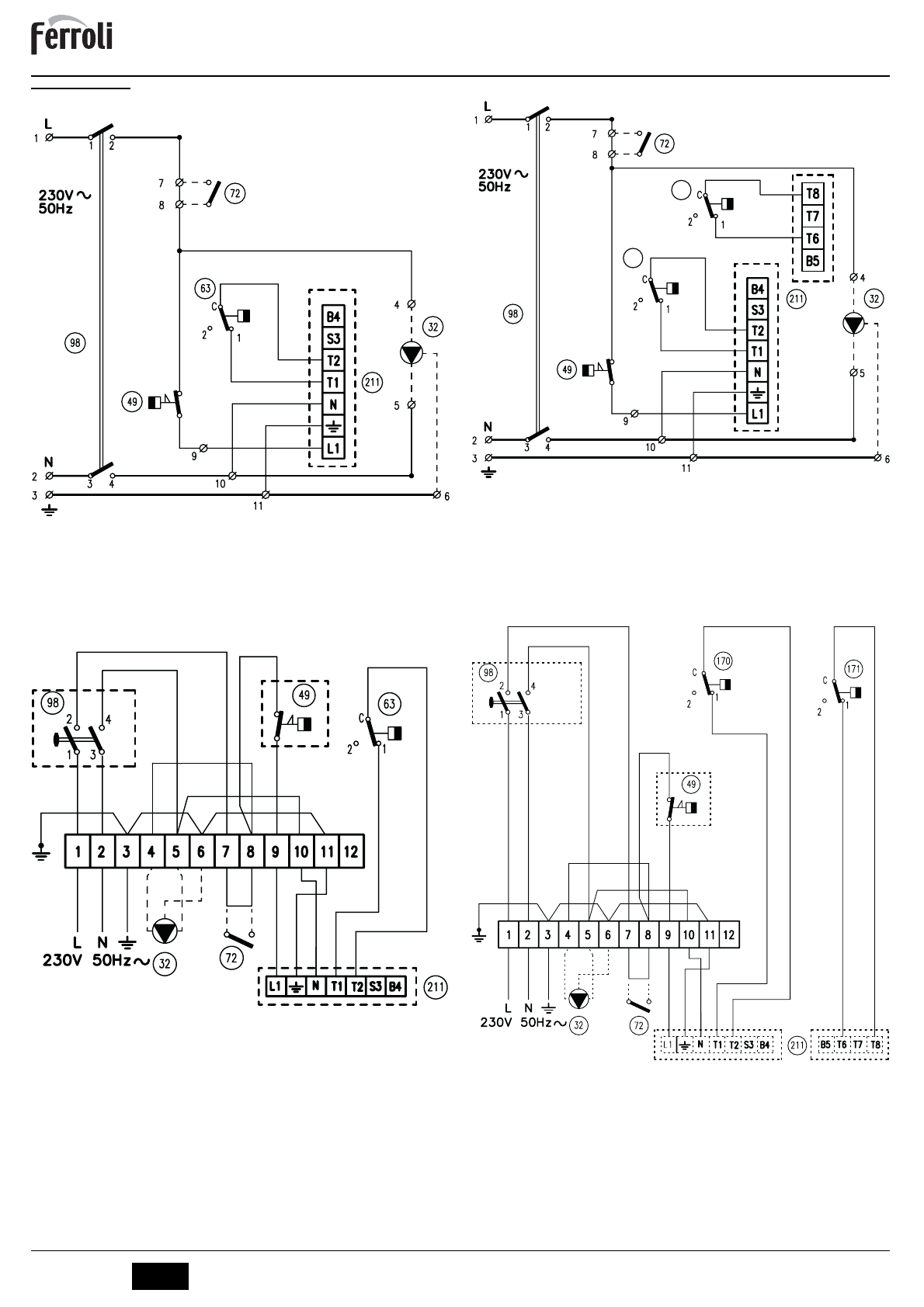
5.4 Wiring diagram
Main wiring diagram ATLAS 32-78
fig. 7 - Main wiring diagram ATLAS 32-78
Key fig. 7 and fig. 8
32
Heating circulating pump (not supplied)
49
Safety thermostat
72
Room thermostat (not supplied)
63
Boiler control thermostat
98
Switch
211
Burner connector (not supplied)
Electrical connection diagram ATLAS 32-78
fig. 8 - Electrical connection diagram ATLAS 32-78
Main wiring diagram ATLAS 95
fig. 9 - Main wiring diagram ATLAS 95
Key fig. 9 and fig. 10
32
Heating circulating pump (not supplied)
49
Safety thermostat
72
Room thermostat (not supplied)
98
Switch
170
1st Stage boiler control thermostat
171
2nd Stage boiler control thermostat
211
Burner connector (not supplied)
Electrical connection diagram ATLAS 95
fig. 10 - Electrical connection diagram ATLAS 95
1
c
1
c
170
171
1
c
1
c