Bosch ZSA 24-2 K 7716010218 - Инструкция по эксплуатации - Страница 10

Котел Bosch ZSA 24-2 K 7716010218 - инструкция пользователя по применению, эксплуатации и установке на русском языке. Мы надеемся, она поможет вам решить возникшие у вас вопросы при эксплуатации техники.

Если остались вопросы, задайте их в комментариях после инструкции.

"Загружаем инструкцию", означает, что нужно подождать пока файл загрузится и можно будет его читать онлайн. Некоторые инструкции очень большие и время их появления зависит от вашей скорости интернета.
Страница:
/ 61
Загружаем инструкцию
background image

Сведения о приборе

 | 

9

RU

6 720 647 408 (2011/01)

Copyright (optional information)

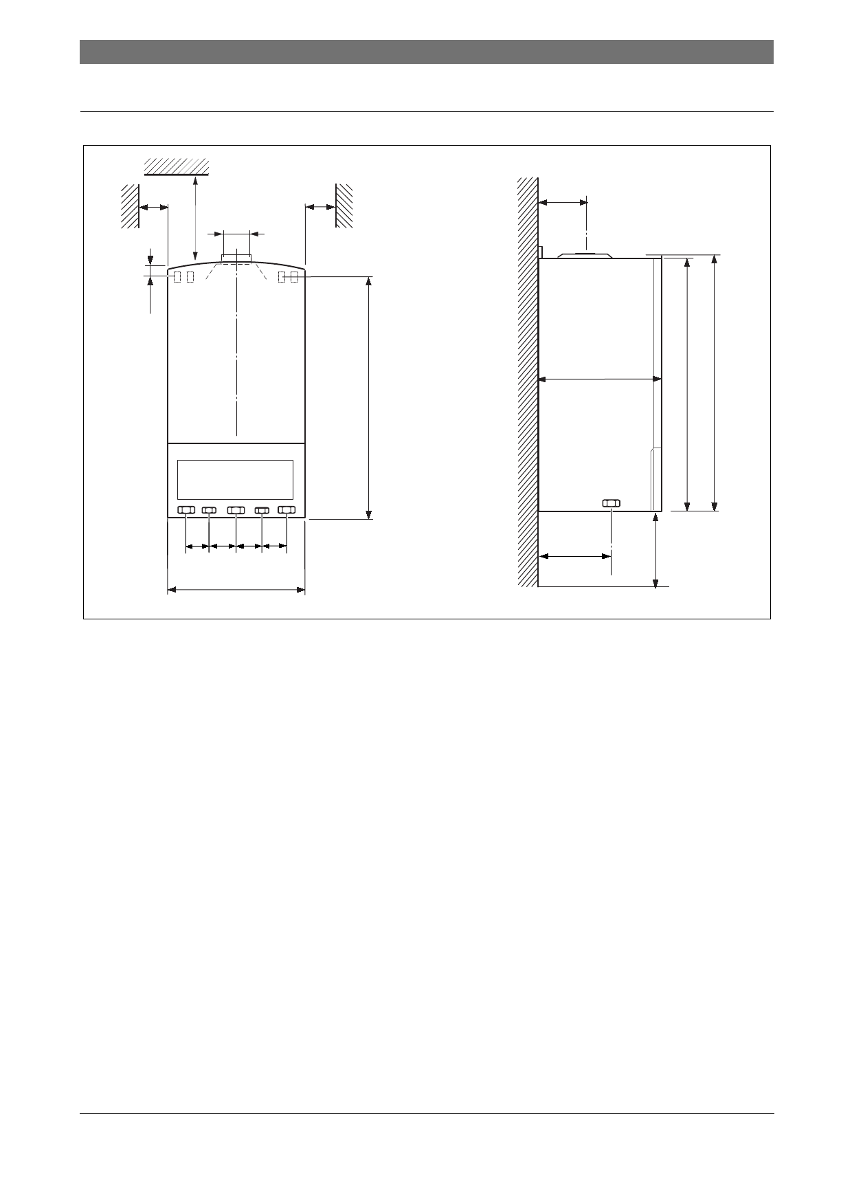
3.7

Габаритные размеры и минимальные расстояния

Рис 2

355

740

176

750

 

220

6 720 613 645-02.1O

min.

10

min.

10

min. 300

130

25

715

400

218

65

65

65

65

R

3

/

4

R

1

/

2

R

3

/

4

R

1

/

2

R

3

/

4

Полезные видео

Характеристики

Оцените статью
tehnopanorama.ru
Остались вопросы?

Не нашли свой ответ в руководстве или возникли другие проблемы? Задайте свой вопрос в форме ниже с подробным описанием вашей ситуации, чтобы другие люди и специалисты смогли дать на него ответ. Если вы знаете как решить проблему другого человека, пожалуйста, подскажите ему :)

Задать вопрос

Часто задаваемые вопросы
Как посмотреть инструкцию к Bosch ZSA 24-2 K 7716010218?
Необходимо подождать полной загрузки инструкции в сером окне на данной странице
Руководство на русском языке?
Все наши руководства представлены на русском языке или схематично, поэтому вы без труда сможете разобраться с вашей моделью
Как скопировать текст из PDF?
Чтобы скопировать текст со страницы инструкции воспользуйтесь вкладкой "HTML"