Котел Beretta NOVELLA MAXIMA 194N RAI - инструкция пользователя по применению, эксплуатации и установке на русском языке. Мы надеемся, она поможет вам решить возникшие у вас вопросы при эксплуатации техники.
Если остались вопросы, задайте их в комментариях после инструкции.
"Загружаем инструкцию", означает, что нужно подождать пока файл загрузится и можно будет его читать онлайн. Некоторые инструкции очень большие и время их появления зависит от вашей скорости интернета.

21
2
1
2
3
4
2
5
2
6
7
2
2
1
2
MI
RI
MANDATE IMPIANTO
RITORNI IMPIANTO
110
825
A
MI
RI
B
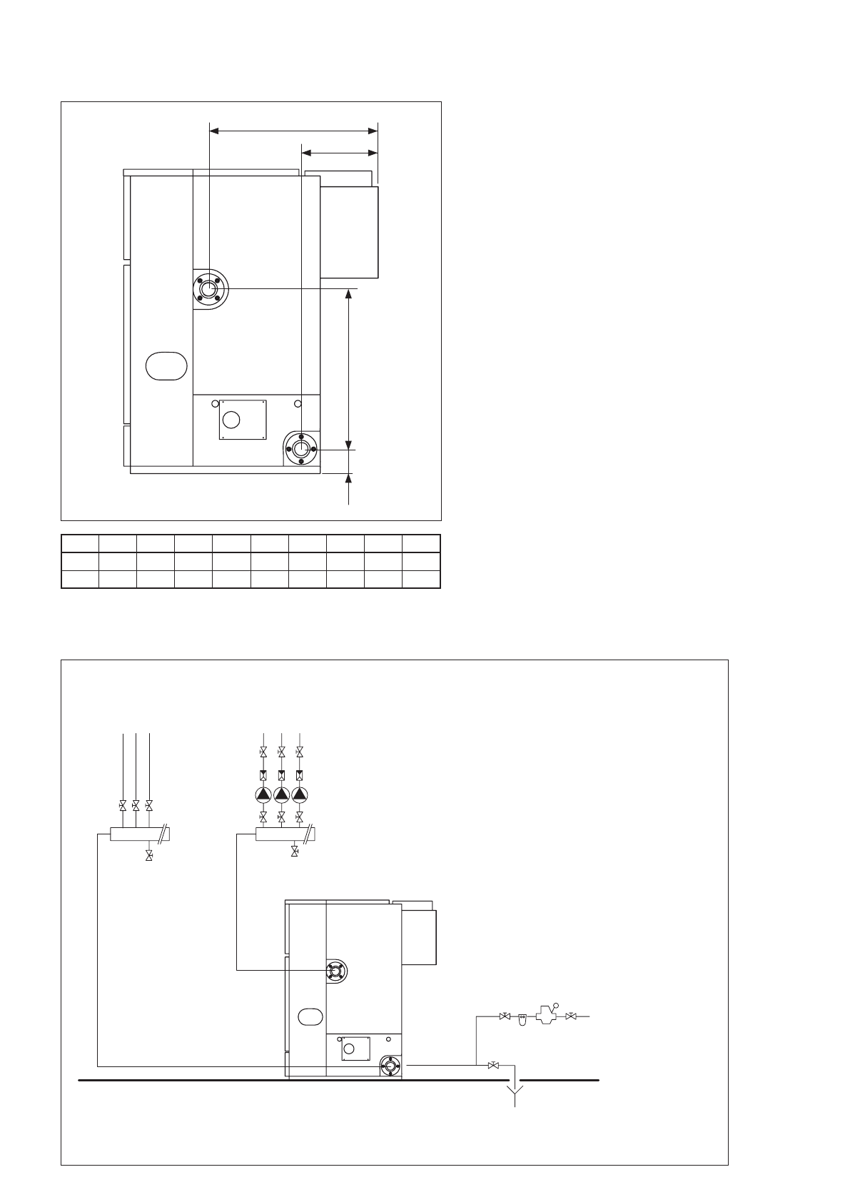
3.2
Гидравлические подключе
-
ния
Котлы Novella MAXIMA
предназначены
для установки в системы отопления, а
также для производства горячей сантех-
нической воды при их подключении к соот-
ветствующему оборудованию.
Присоединительные размеры для подклю-
чения воды:
MI - Подача в систему 2" M
(наружная резьба)
RI - Возврат из системы 2" M
(наружная резьба)
b
Слив из предохранительного клапан
котла должен соединяться с системой
дренажа и отвода воды.
Производитель котла не несёт ответ-
ственности за ущерб, причинённый
срабатыванием предохранительного
клапана
b
Если система отопления залита анти-
ф р и з о м , н е о б х о д и м о у с т а н о в и т ь
гидравлический разъединитель.
b
Выбор и монтаж компонентов гидрав-
лической системы должен произво-
диться монтажником, который дол-
жен действовать в соответствии с
действующими нормами и правилами.
Принципиальная схема
Pис. 3.11
Pис. 3.12
1 - Коллекторы системы
2 - Отсечные клапаны
3 - Циркуляционные насосы
системы отопления
4 - Обратные клапаны
5 - Кран слива котла (на
противоположной стороне)
6 - редукционный клапан
7 - система водоподготовки
129 151 172 194 215 237
258
279
A
730
730
730
760
760
810
810
810
mm
B
315
315
315
345
345
395
395
395
mm