Котел Beretta NOVELLA MAXIMA 151N RAI - инструкция пользователя по применению, эксплуатации и установке на русском языке. Мы надеемся, она поможет вам решить возникшие у вас вопросы при эксплуатации техники.
Если остались вопросы, задайте их в комментариях после инструкции.
"Загружаем инструкцию", означает, что нужно подождать пока файл загрузится и можно будет его читать онлайн. Некоторые инструкции очень большие и время их появления зависит от вашей скорости интернета.

25
3.7
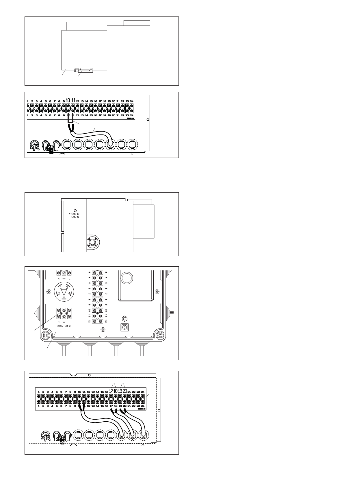
Электрическое подключение
Котлы Novella MAXIMA необходимо под-
ключать к линии электропитания и к
устройствам, установленным в системе.
Для этого:
- Проложите провода, идущие снаружи
внутрь котла, к панели и щитку, исполь-
зуя кабельные сальники (1, Pис. 3.22) в
задней части щитка и панели.
- Подключите линию электропитания к
клеммной колодке (2), расположенной во
втором электрическом щитке (3) (Pис. 3.23).
- Подключите насос системы (Pi) к клем-
мам 19 и 20 клеммной колодки котла
(МС), которая находится внутри главной
панели управления (Pис. 3.24).
- Подключите насос бойлера (PВ) к клем-
мам 17 и 18 клеммной колодки котла
(МС), которая находится внутри главной
панели управления (Pис. 3.24).
- После того как все подключения будут
выполнены, снова закройте крышки пане-
ли управления и электрического щитка.
b
Обязательно:
- установите комбинированный (маг-
нитотермический) автоматический
выключатель на все полюса, раз-
мыкатель цепи, соответствующий
стандартам CEI-EN (с размыканием
контактов не менее 3 мм);
- соблюдайте полярности L1 (фаза) –
(N) нейтраль»;
- используйте кабели с сечением
жилы и характеристиками изоля-
ции, соответствующими требовани-
ям действующих стандартов монта-
жа (сечение не менее 1,5 мм
2
);
- производите все соединения соглас-
но схемам, приведенным в настоя-
щем Руководстве, при выполнении
любых электрических работ;
- надежно заземлите котел.
a
З а п р е щ е н о и с п о л ь з о в а т ь т р у б о -
провод газа и/или воды в качестве
заземлителей для электрооборудо-
вания. Изготовитель не несет ответ-
ственности за ущерб, вызванный
неправильным заземлением котла.
1
2
3
Pис. 3.20
Pис. 3.21
- Закрепите баллончик термостата дымо-
вых газов (4) на дымосборной камере (5),
используя два отверстия, которые уже
проделаны в дымосборной камере (Pис.
3.20).
- Проденьте провод (6) в кабельный саль-
ник в задней части щитка и подключите
его к клеммам 10 и 11, но предваритель-
но уберите с этих клемм перемычку (7)
(Pис. 3.21).
4
5
6
7
PB Pi
MC
Pис. 3.22
Pис. 3.23
Pис. 3.24