Котел Beretta BOILER 28 B S I - инструкция пользователя по применению, эксплуатации и установке на русском языке. Мы надеемся, она поможет вам решить возникшие у вас вопросы при эксплуатации техники.
Если остались вопросы, задайте их в комментариях после инструкции.
"Загружаем инструкцию", означает, что нужно подождать пока файл загрузится и можно будет его читать онлайн. Некоторые инструкции очень большие и время их появления зависит от вашей скорости интернета.

Н
Н
А
А
С
С
Т
Т
Е
Е
Н
Н
Н
Н
Ы
Ы
Е
Е
Г
Г
А
А
З
З
О
О
В
В
Ы
Ы
Е
Е
К
К
О
О
Т
Т
Л
Л
Ы
Ы
B
B
O
O
I
I
L
L
E
E
R
R
ЗАКРЫТАЯ
КАМЕРА
СГОРАНИЯ
Система
удаления
дымовых
газов
и
подачи
воздуха
для
горения
может
быть
организована
посредством
системы
коаксиальных
дымоотводов
/
воздуховодов
или
раздельных
дымоотводов
и
воздуховодов
.
Воздух
,
необходимый
для
горения
,
может
поступать
непосредственно
с
улицы
или
из
смежного
помещения
(
герметичного
по
отношению
к
помещению
,
где
установлен
котел
)
оснащенного
приточной
вентиляцией
.
Дымовые
газы
могут
удаляться
через
раздельные
дымоотводы
или
коаксиальные
дымоотводы
/
воздуховоды
непосредственно
на
улицу
через
наружную
стену
или
крышу
.
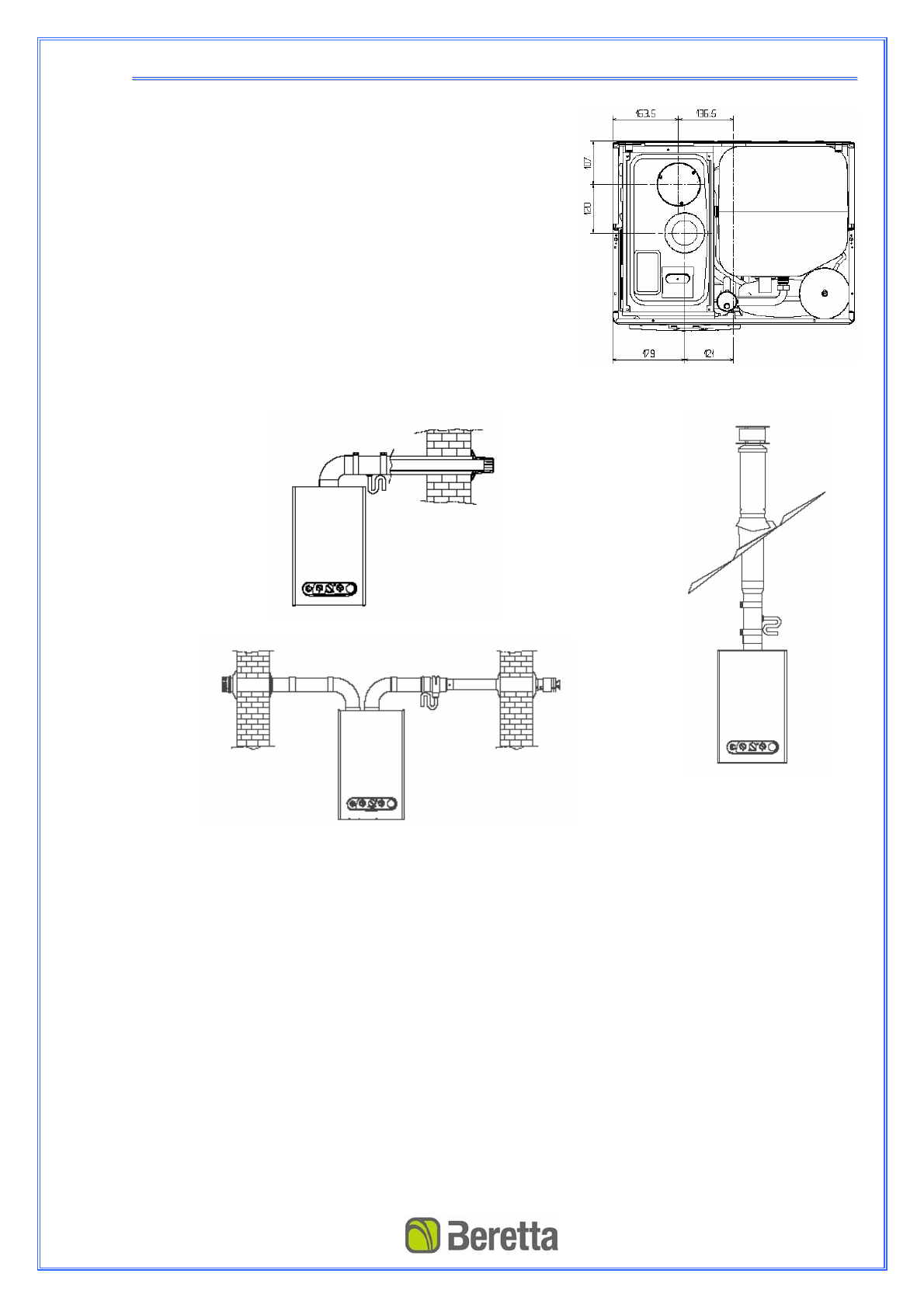
На
рисунке
изображен
вид
котла
сверху
с
присоединительными
размерами
.
Коаксиальный
дымоотвод
/
воздуховод
(
вывод
через
наружную
стену
)
Раздельные
дымоотвод
и
воздуховод
(
вывод
через
наружную
стену
)
Коаксиальный
дымоотвод
/
воздуховод
(
вывод
через
крышу
)
Эффективная
и
безопасная
работа
котла
гарантируется
только
в
случае
использования
оригинальных
элементов
дымоотводов
и
воздуховодов
,
предназначенных
для
котлов
с
закрытой
камерой
сгорания
.
Данное
оборудование
не
входит
в
стандартную
комплектацию
котла
и
поставляется
по
отдельному
заказу
.