Котел Baxi LUNA 240 / 280 / 310 - инструкция пользователя по применению, эксплуатации и установке на русском языке. Мы надеемся, она поможет вам решить возникшие у вас вопросы при эксплуатации техники.
Если остались вопросы, задайте их в комментариях после инструкции.
"Загружаем инструкцию", означает, что нужно подождать пока файл загрузится и можно будет его читать онлайн. Некоторые инструкции очень большие и время их появления зависит от вашей скорости интернета.

LUNA
руководство
для
технического
персонала
12
газовые
настенные
котлы
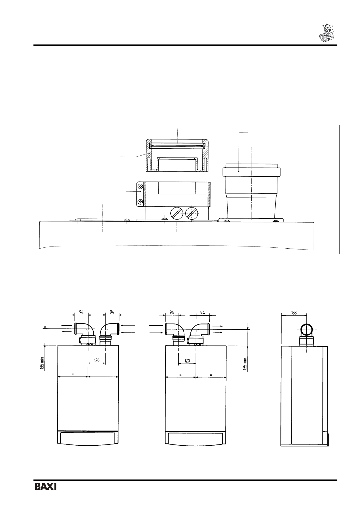
6.2
Система
забора
воздуха
и
отвода
продуктов
сгорания
по
двум
отдельным
трубам
Этот
тип
установки
позволяет
отводить
продукты
сгорания
,
как
через
стену
,
так
и
в
коллективный
дымоход
.
Приток
воздуха
для
сгорания
может
осуществляться
также
с
другой
стороны
,
чем
та
,
куда
выходит
дымоход
.
Разделительный
комплект
состоит
из
дымоходного
переходника
(100/80)
и
переходника
для
воздуховода
;
последний
можно
разместить
слева
или
справа
от
дымоходного
переходника
в
зависимости
от
требований
установки
.
Переходник
для
воздуховода
закрепите
винтами
с
уплотнителями
,
вынутыми
ранее
из
дымового
колпака
.
При
установке
дымоотводящей
системы
по
двум
отдельным
трубам
имеющуюся
диафрагму
(
ограничитель
)
следует
удалить
.
Колено
90°
позволяет
подсоединять
котел
к
дымоходу
в
любом
направлении
,
поскольку
оно
может
поворачиваться
на
360°.
Кроме
того
,
колено
90°
может
использоваться
в
качестве
дополнительного
в
сочетании
с
дополнительной
трубой
или
с
коленом
45°.
Колено
90°
сокращает
максимально
возможную
длину
труб
на
0,5
м
.
Колено
45°
сокращает
максимально
возможную
длину
труб
на
0,25
м
.
переходник
воздуховода
(
трубы
подачи
воздуха
)
переходник
дымохода
зажим












