Котел Ariston Unobloc G 38 RI MET - инструкция пользователя по применению, эксплуатации и установке на русском языке. Мы надеемся, она поможет вам решить возникшие у вас вопросы при эксплуатации техники.
Если остались вопросы, задайте их в комментариях после инструкции.
"Загружаем инструкцию", означает, что нужно подождать пока файл загрузится и можно будет его читать онлайн. Некоторые инструкции очень большие и время их появления зависит от вашей скорости интернета.

�
� � � �� �
ɢ
� �� �
��
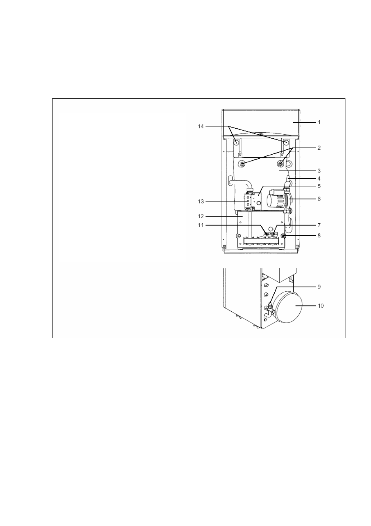
ɉɚɧɟɥɶ ɭɩɪɚɜɥɟɧɢɹ
�
��
и
ɞɥɹ ɞɚɬɱɢɤɨɜ
��
Ʉɨɪɩɭɫ ɤɨɬɥɚ
��
ɉɪɟɫɫɨɫɬɚɬ
��
ɗɥɟɤɬɪɨɧɧɵɣ
о
ɪɨɡɠɢɝɚ ɢ ɤɨɧɬɪɨɥɹ
ɩɥɚɦɟɧɢ
�
��
ɐɢɪɤɭɥɹɰɢɨɧɧɵɣ
н
ɚɫɨɫ
�
��
ɗɥɟɤɬɪɨɞ ɪɨɡɠɢɝɚ
�
��
Ʉɪɚɧ ɫɥɢɜɚ
�
��
о но
ɤɥɚɩɚɧ
�
��
Ɋɚɫɲɢɪɢɬɟɥɶɧɵɣ ɛɚɤ
�
��
ɗɥɟɤɬɪɨɞ
он о я
ɩɥɚɦɟɧɢ
�
��
Ƚɨɪɟɥɤɚ
�
��
Ƚɚɡɨɜɵɣ ɤɥɚɩɚɧ
�
��
ɉɨɞɴɟɦɧɵɟ ɤɪɨɧɲɬɟɣɧɵ













