Котел Ariston Unobloc G 38 RI MET - инструкция пользователя по применению, эксплуатации и установке на русском языке. Мы надеемся, она поможет вам решить возникшие у вас вопросы при эксплуатации техники.
Если остались вопросы, задайте их в комментариях после инструкции.
"Загружаем инструкцию", означает, что нужно подождать пока файл загрузится и можно будет его читать онлайн. Некоторые инструкции очень большие и время их появления зависит от вашей скорости интернета.

�
ɉɨɞɤɥɸɱɟɧɢɟ ɤɨɬɥɨɜ
�
ɤ ɨɩɪɟɞɟɥɟɧɧɨɦɭ ɬɢɩɭ ɝɚɡɚ
�
ɛɭɞɶ ɬɨ
��
ɢɥɢ
�� �
�
ɞɨɥɠɧɨ
ɨɫɭɳɟɫɬɜɥɹɬɶɫɹ ɜ ɫɨɨɬɜɟɬɫɬɜɢɢ ɫ ɫɭɳɟɫɬɜɭɸɳɢɦɢ ɦɨɧɬɚɠɧɵɦɢ ɧɨɪɦɚɦɢ
�
ɉɟɪɟɞ ɩɨɞɤɥɸɱɟɧɢɟɦ ɧɟɨɛɯɨɞɢɦɨ ɭɛɟɞɢɬɶɫɹ
�
�
ɱɬɨɛɵ ɬɢɩ ɝɚɡɚ ɫɨɨɬɜɟɬɫɬɜɨɜɚɥ ɬɢɩɭ
�
ɭɤɚɡɚɧɧɨɦɭ ɧɚ ɫɩɟɰɢɮɢɤɚɰɢɢ ɤ ɤɨɬɥɭ
�
�
ɬɪɭɛɵ ɛɵɥɢ ɬɳɚɬɟɥɶɧɨ ɩɪɨɱɢɳɟɧɵ
�
Ɋɟɤɨɦɟɧɞɭɟɬɫɹ ɩɨɫɬɚɜɢɬɶ ɧɚ ɝɚɡɨɫɧɚɛɠɟɧɢɟ ɮɢɥɶɬɪ ɫɨɨɬɜɟɬɫɬɜɭɸɳɢɯ ɪɚɡɦɟɪɨɜ
�
ɬ ɤ
�
ɩɪɢ
ɩɨɞɚɱɟ ɝɚɡɚ ɦɨɝɭɬ ɩɨɩɚɞɚɬɶɫɹ ɬɜɟɪɞɵɟ ɱɚɫɬɢɰɵ
�
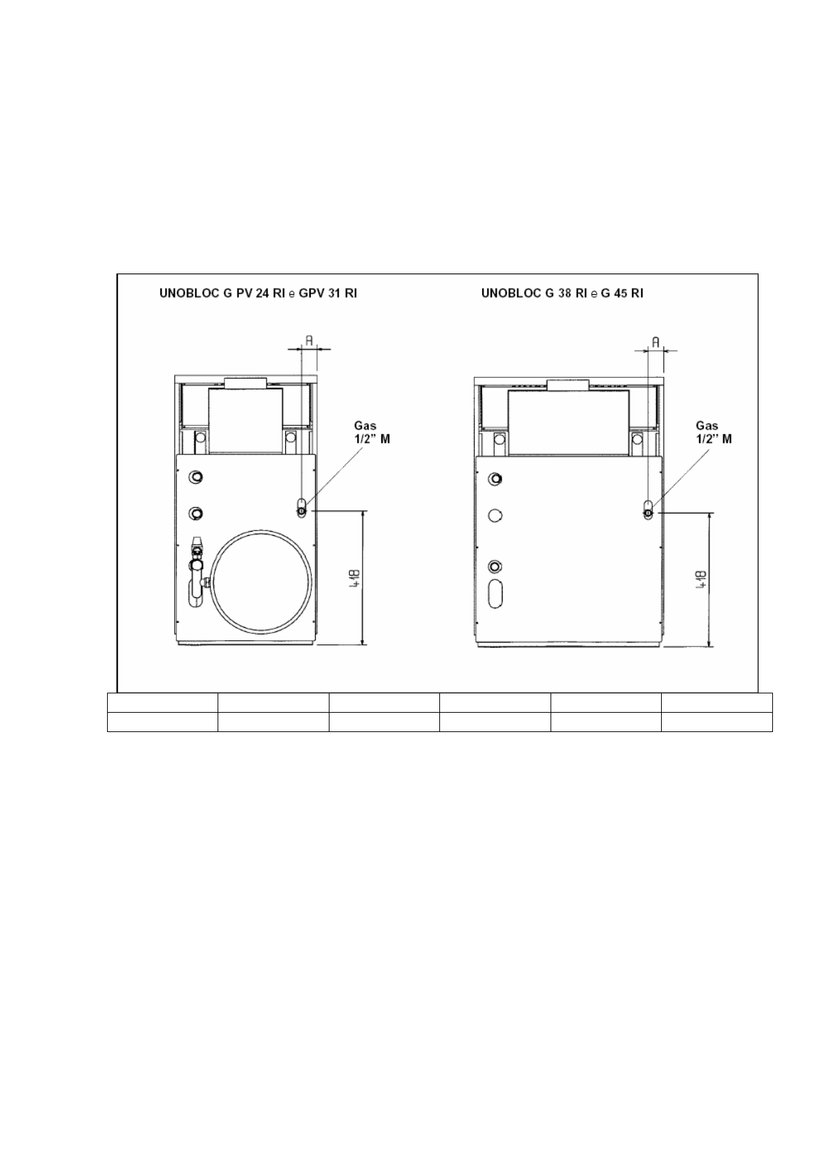
Ɉɩɢɫɚɧɢɟ
�� ��
�����
���o
���o
Ⱥ
��
��
ɦɦ
ɍɫɬɪɨɣɫɬɜɨ ɝɚɡɨɫɧɚɛɠɟɧɢɹ ɞɨɥɠɧɨ ɫɨɨɬɜɟɬɫɬɜɨɜɚɬɶ ɦɨɳɧɨɫɬɢ ɤɨɬɥɚ ɢ ɛɵɬɶ ɨɫɧɚɳɟɧɨ ɜɫɟɦɢ
ɭɫɬɪɨɣɫɬɜɚɦɢ ɛɟɡɨɩɚɫɧɨɫɬɢ
�
ɩɪɟɞɭɫɦɨɬɪɟɧɧɵɦɢ ɞɟɣɫɬɜɭɸɳɢɦɢ ɧɨɪɦɚɬɢɜɚɦɢ
�
ɉɨɫɥɟ
ɩɨɞɤɥɸɱɟɧɢɹ ɧɟɨɛɯɨɞɢɦɨ ɩɪɨɜɟɪɢɬɶ ɝɟɪɦɟɬɢɱɧɨɫɬɶ ɝɚɡɨɜɵɯ ɫɨɟɞɢɧɟɧɢɣ
�
Ⱦɵɦɨɯɨɞ ɢ ɫɨɟɞɢɧɟɧɢɟ ɫ ɞɵɦɨɯɨɞɨɦ ɞɨɥɠɧɵ ɫɨɨɬɜɟɬɫɬɜɨɜɚɬɶ ɫɭɳɟɫɬɜɭɸɳɢɦ ɧɨɪɦɚɦ
ɭɫɬɚɧɨɜɤɢ
�
Ɉɛɹɡɚɬɟɥɶɧɵɦ ɹɜɥɹɟɬɫɹ ɢɫɩɨɥɶɡɨɜɚɧɢɟ ɰɟɥɵɯ ɜɥɚɝɨɫɬɨɣɤɢɯ
�
ɬɟɪɦɨɫɬɨɣɤɢɯ ɢ
ɝɟɪɦɟɬɢɱɧɵɯ ɬɪɭɛ ɢ ɫɨɟɞɢɧɟɧɢɣ
�
�
�
�
�
�
�
�
�
�
�
�
�
�
�
�
�













