Кондиционеры Daikin FXDQ-A - инструкция пользователя по применению, эксплуатации и установке на русском языке. Мы надеемся, она поможет вам решить возникшие у вас вопросы при эксплуатации техники.
Если остались вопросы, задайте их в комментариях после инструкции.
"Загружаем инструкцию", означает, что нужно подождать пока файл загрузится и можно будет его читать онлайн. Некоторые инструкции очень большие и время их появления зависит от вашей скорости интернета.

5
русский
4.
ПОДГОТОВКА
К
МОНТАЖУ
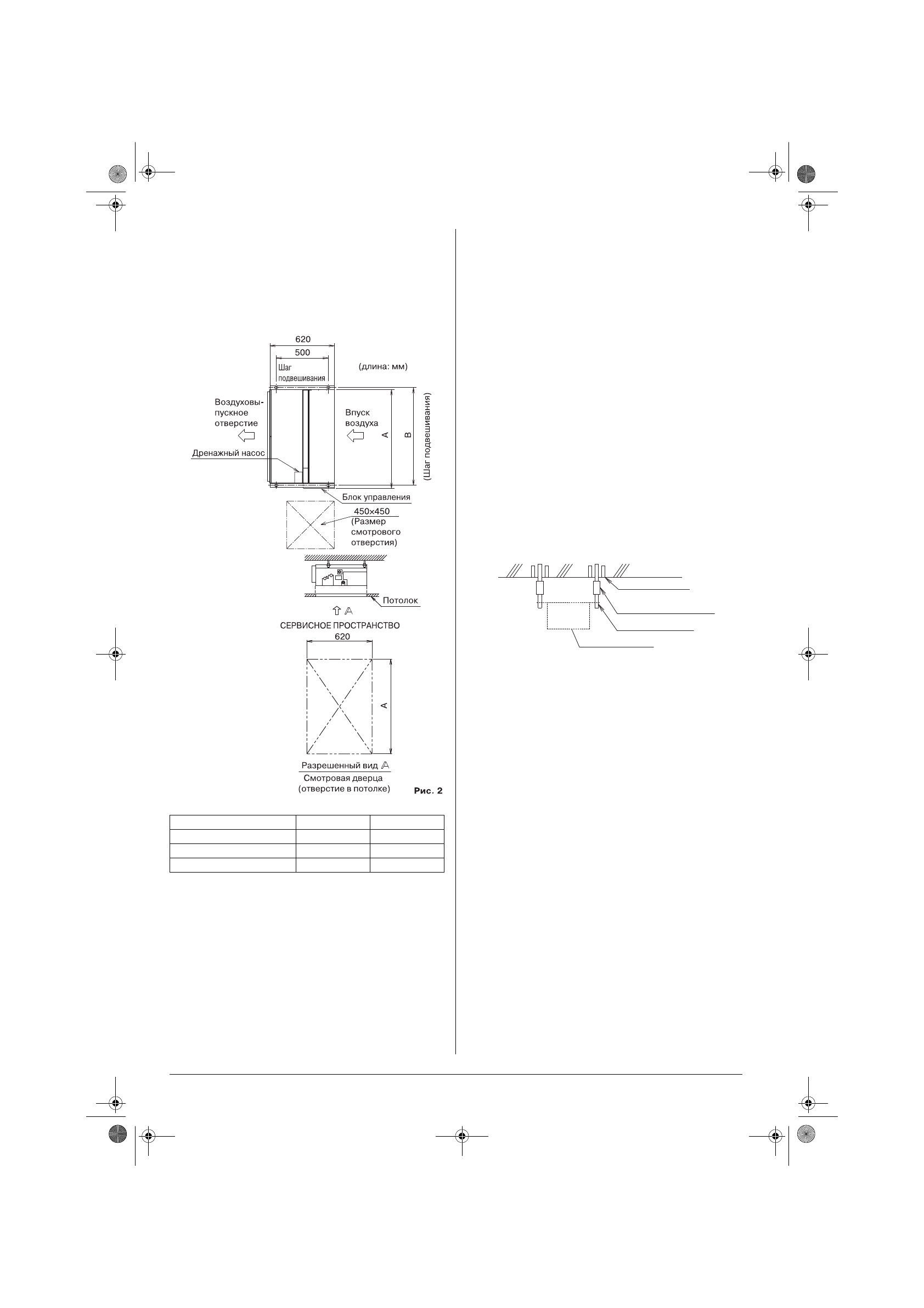
(1)
Удостоверьтесь
в
позиционном
соотношении
блока
и
подвесных
болтов
. (
См
.
рис
. 2)
•
Установите
смотровое
отверстие
на
той
стороне
блока
управления
,
с
которой
легко
обеспечить
техобслуживание
и
осмотр
блока
управления
и
дренажного
насоса
.
Также
устанавливайте
смотровое
отверстие
в
нижней
части
блока
.
(
длина
:
мм
)
(2)
Убедитесь
в
том
,
что
диапазон
внешнего
статического
давления
блока
не
превышен
.
(
Информация
о
диапазоне
значений
внешнего
статического
давления
приведена
в
технической
документации
.)
(3)
Откройте
монтажное
отверстие
. (
Заранее
подготовленные
потолки
)
•
После
открытия
монтажного
отверстия
в
потолке
,
в
котором
будет
установлен
блок
,
проложите
трубопровод
для
хладагента
,
дренажный
трубопровод
,
проводку
цепи
передачи
и
проводку
удаленного
контроллера
(
нет
необходимости
при
использовании
беспроводного
удаленного
контроллера
)
к
отверстиям
блока
для
трубопроводов
и
электропроводки
.
См
.
разделы
“6.
РАБОТА
С
ТРУБОПРОВОДОМ
ДЛЯ
ХЛАДАГЕНТА
”
,
“7.
РАБОТА
С
ДРЕНАЖНЫМ
ТРУБОПРОВОДОМ
”
и
“10.
ПРИМЕР
ЭЛЕКТРИЧЕСКОЙ
ПРОВОДКИ
”
.
•
После
открытия
отверстия
в
потолке
,
при
необходимости
,
убедитесь
в
том
,
что
потолок
ровный
.
Может
понадобиться
усиление
рамы
потолка
для
предотвращения
вибрации
.
Проконсультируйтесь
с
архитектором
или
столяром
.
(4)
Установите
подвесные
болты
.
(
Используйте
подвесные
болты
размером
от
W3/8
до
M10.)
Для
укрепления
потолка
в
расчете
на
вес
блока
пользуйтесь
встраиваемым
в
отверстие
анкером
для
имеющихся
потолков
и
утапливаемой
вставкой
,
утапливаемым
анкером
или
другими
приобретаемыми
на
месте
деталями
для
новых
потолков
.
(
См
.
рис
. 3)
(5)
При
заборе
воздуха
снизу
.
(1)
Снимите
крышку
камеры
. (7
мест
)
(2)
Установите
на
место
снятую
крышку
камеры
в положении
,
показанном
на
рис
. 4 (7
мест
).
(3)
Прикрепите
воздушный
фильтр
(
дополнительная
принадлежность
),
как
показано
на
рисунке
.
Четыре
отверстия
,
которые
не
могут
быть
закрыты
воздушным
фильтром
,
необходимо
закрыть
имеющейся
в
продаже
лентой
.
Модель
A
B
15-20-25-32
тип
750
740
40-50
тип
950
940
63
тип
1150
1140
Ïðèìå÷àíèå: Âñå óêàçàííûå âûøå êîìïîíåíòû
ïðèîáðåòàþòñÿ íà ìåñòå.
Ïîäâåñíîé áîëò
Äëèííàÿ ãàå÷íàÿ èëè
âèíòîâàÿ ñòÿæêà
Àíêåðíûé áîëò
Êîìíàòíûé áëîê
Ïàíåëü ïåðåêðûòèÿ
Ðèñ. 3
4PRU325876-1D.book Page 5 Thursday, September 3, 2015 1:55 PM