Кондиционеры Daikin FXDQ-A - инструкция пользователя по применению, эксплуатации и установке на русском языке. Мы надеемся, она поможет вам решить возникшие у вас вопросы при эксплуатации техники.
Если остались вопросы, задайте их в комментариях после инструкции.
"Загружаем инструкцию", означает, что нужно подождать пока файл загрузится и можно будет его читать онлайн. Некоторые инструкции очень большие и время их появления зависит от вашей скорости интернета.

русский
4
3.
ВЫБОР
МЕСТА
УСТАНОВКИ
ПРЕДОСТЕРЕЖЕНИЕ
•
При
перемещении
блока
или
после
распаковки
обязательно
поднимайте
его
,
держась
за
подъемные
скобы
.
Не
прилагайте
давления
к
другим
частям
,
в
особенности
,
к
трубопроводу
для
хладагента
,
дренажному
трубопроводу
и
деталям
фланцев
.
•
Если
Вы
считаете
,
что
влажность
внутри
потолка
может
превысить
30°C
и
80%
относительной
влажности
,
усильте
изоляцию
корпуса
блока
.
Используйте
стекловату
или
полиэтиленовую
пену
в
качестве
изоляции
,
чтобы
она
не
была
толще
10
мм
и
проходила
через
отверстие
в
потолке
.
(1)
Выберите
для
установки
такое
место
,
где
соблюдаются
указанные
ниже
условия
и
удовлетворяются
требования
пользователя
.
•
С
обеспечением
оптимального
распределения
воздуха
.
•
С
отсутствием
препятствий
прохождению
воздуха
.
•
С
возможностью
надлежащего
дренажа
конденсата
.
•
Где
прочность
потолка
достаточно
высока
для
того
,
чтобы
выдержать
вес
комнатного
блока
.
•
С
отсутствием
видимого
перекоса
подвесного
потолка
.
•
Где
отсутствует
риск
утечки
воспламеняемого
газа
.
•
С
наличием
свободного
пространства
,
достаточного
для
технического
и
сервисного
обслуживания
.
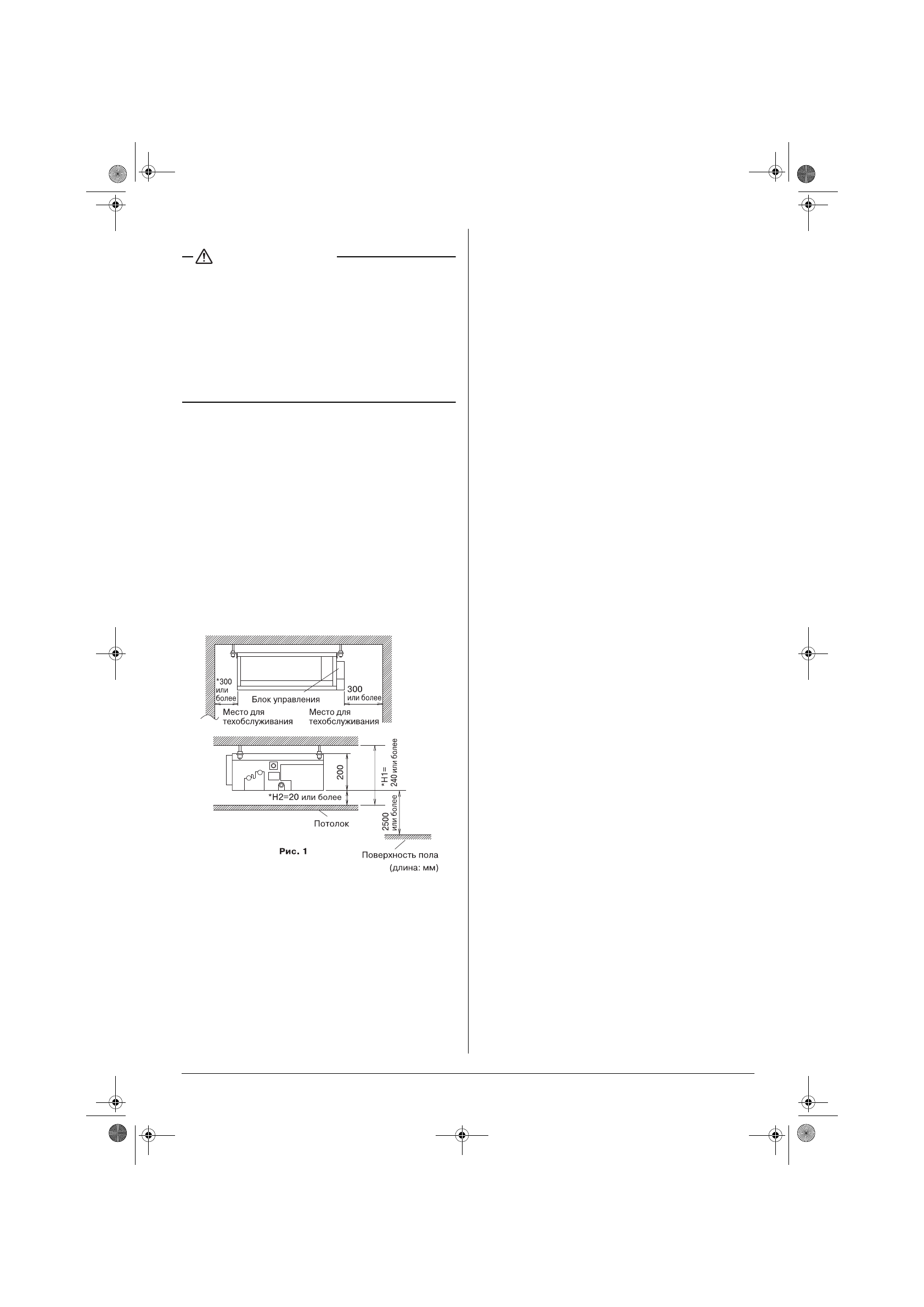
(
См
.
рис
. 1)
•
С
возможностью
соблюдения
допусков
на
прокладку
труб
между
комнатным
и
наружным
блоками
. (
См
.
руководство
по
монтажу
для
наружного
блока
.)
•
Не
допускается
эксплуатация
оборудования
во
взрывоопасной
среде
.
•
Размер
*H1
означает
минимальную
высоту
блока
.
•
Выберите
размер
*H1, *H2,
чтобы
обеспечить
уклон
вниз
,
по
меньшей
мере
,
в
соотношении
1/100,
как
указано
в
разделе
“7.
РАБОТА
С
ДРЕНАЖНЫМ
ТРУБОПРОВОДОМ
”
.
•
Пространство
для
технического
обслуживания
с
отметкой
“*”
необходимо
,
когда
используется
монтажная
коробка
для
адаптера
печатной
платы
(KRP1BA101),
приобретаемого
отдельно
.
[
МЕРЫ
ПРЕДОСТОРОЖНОСТИ
]
•
Устанавливайте
комнатный
и
наружный
блоки
,
располагайте
проводку
источника
питания
и
соединительные
провода
на
удалении
не
менее
1
м
от
телевизионной
или
радиоаппаратуры
с
целью
предотвращения
искажения
изображений
или
шумов
. (
В
зависимости
от
радиоволн
удаление
в
1
м
может
оказаться
недостаточным
для
защиты
от
шумов
.)
•
При
установке
беспроводного
комплекта
в
помещении
с
освещением
электронными
люминесцентными
лампами
(
инверторными
или
с
ускоренным
запуском
)
дальность
передачи
до
удаленного
контроллера
может
быть
сокращена
.
Устанавливайте
комнатные
блоки
на
возможно
большем
удалении
от
люминесцентных
ламп
.
(2)
Пользуйтесь
для
установки
подвесными
болтами
.
Проконтролируйте
,
является
ли
прочность
потолка
достаточной
для
того
,
чтобы
выдержать
вес
блока
.
Если
существует
риск
,
перед
установкой
блока
укрепите
потолок
.
•
Во
избежание
контакта
с
вентилятором
необходимо
предпринять
одну
из
следующих
мер
предосторожности
:
-
Агрегат
устанавливается
как
можно
выше
с
минимальной
высотой
до
низа
2,7
м
.
-
Агрегат
устанавливается
как
можно
выше
с
минимальной
высотой
до
низа
2,5
м
в
случае
,
если
вентилятор
имеет
внешнее
ограждение
из
деталей
,
не
снимаемых
без
помощи
инструментов
(
напр
.
ложная
герметизация
,
решетка
...).
-
Агрегат
устанавливается
с
воздуховодом
и
решеткой
,
которые
снимаются
только
при
помощи
инструментов
.
Он
должен
устанавливаться
таким
образом
,
чтобы
иметь
адекватную
защиту
от
касания
вентилятора
.
Если
в
воздуховоде
имеется
пульт
обслуживания
,
то
необходимо
,
чтобы
он
снимался
только
при
помощи
инструментов
во
избежание
контакта
с
вентилятором
.
Защита
должна
осуществляться
согласно
соответствующему
европейскому
и
местному
законодательству
.
На высоту
установки
ограничений
нет
.
4PRU325876-1D.book Page 4 Thursday, September 3, 2015 1:55 PM