Кондиционеры Daikin FXDQ-A - инструкция пользователя по применению, эксплуатации и установке на русском языке. Мы надеемся, она поможет вам решить возникшие у вас вопросы при эксплуатации техники.
Если остались вопросы, задайте их в комментариях после инструкции.
"Загружаем инструкцию", означает, что нужно подождать пока файл загрузится и можно будет его читать онлайн. Некоторые инструкции очень большие и время их появления зависит от вашей скорости интернета.

11
русский
9.
РАБОТА
С
ЭЛЕКТРИЧЕСКОЙ
ПРОВОДКОЙ
9-1
ОБЩИЕ
УКАЗАНИЯ
•
Отключите
питание
перед
проведением
каких
-
либо
работ
.
•
Все
поставляемые
на
местном
уровне
детали
и
материалы
и
выполняемые
электрические
работы
должны
соответствовать
местным
законам
.
•
Используйте
только
медные
провода
.
•
При
выполнении
электропроводки
также
см
. “
Плату
со
схемой
электромонтажа
”,
прикрепленную
к
крышке
блока
управления
.
•
Дополнительная
информация
об
установке
удаленного
контроллера
приводится
в
“
РУКОВОДСТВЕ
ПО
МОНТАЖУ
УДАЛЕННОГО
КОНТРОЛЛЕРА
”.
•
Выполнение
любых
работ
по
электрическому
имонтажу
следует
доверять
только
электрику
с
соответствующим
допуском
.
•
Данная
система
содержит
множество
комнатных
блоков
.
Обозначьте
каждый
из
комнатных
блоков
в
качестве
блока
А
,
блока
В
,…
и
проследите
за
тем
,
чтобы
подключаемые
к
контактной
колодке
провода
для
наружного
блока
и
блока
BS
согласовывались
между
собой
.
Если
характеристики
электрической
проводки
и
трубопроводов
между
наружным
блоком
и
комнатным
блоком
не
согласуются
между
собой
,
возможен
выход
системы
из
строя
.
•
Необходимо
устанавливать
выключатель
,
обеспечивающий
отключение
питания
от
всей
системы
.
•
Сортамент
электрических
проводов
источника
питания
,
подключаемых
к
наружному
блоку
,
пропускная
способность
выключателя
и
переключателя
и
инструкции
по
электрическому
монтажу
приведены
в руководстве
по
монтажу
,
прилагаемом
к
наружному
блоку
.
•
Кондиционер
необходимо
заземлять
.
•
Следите
за
тем
,
чтобы
заземляющий
провод
не
касался
газовых
труб
,
водопроводных
труб
,
молниеотводов
или
проводов
телефонного
заземления
.
•
Газовые
трубы
:
утечка
газа
может
привести
к
взрывам
и
пожару
.
•
Водопроводные
трубы
:
если
используются
трубы
из
жесткого
винила
,
их
заземлить
нельзя
.
•
Провода
телефонного
заземления
и
молниеотводы
:
чрезвычайно
высокий
потенциал
заземления
при
ударе
молнии
.
•
Во
избежание
короткого
заземления
провода
источника
питания
,
обязательно
пользуйтесь
заизолированными
клеммами
.
•
Не
включайте
источник
питания
(
автоматический
прерыватель
или
прерыватель
утечки
на
землю
)
до
завершения
всех
других
работ
.
9-2
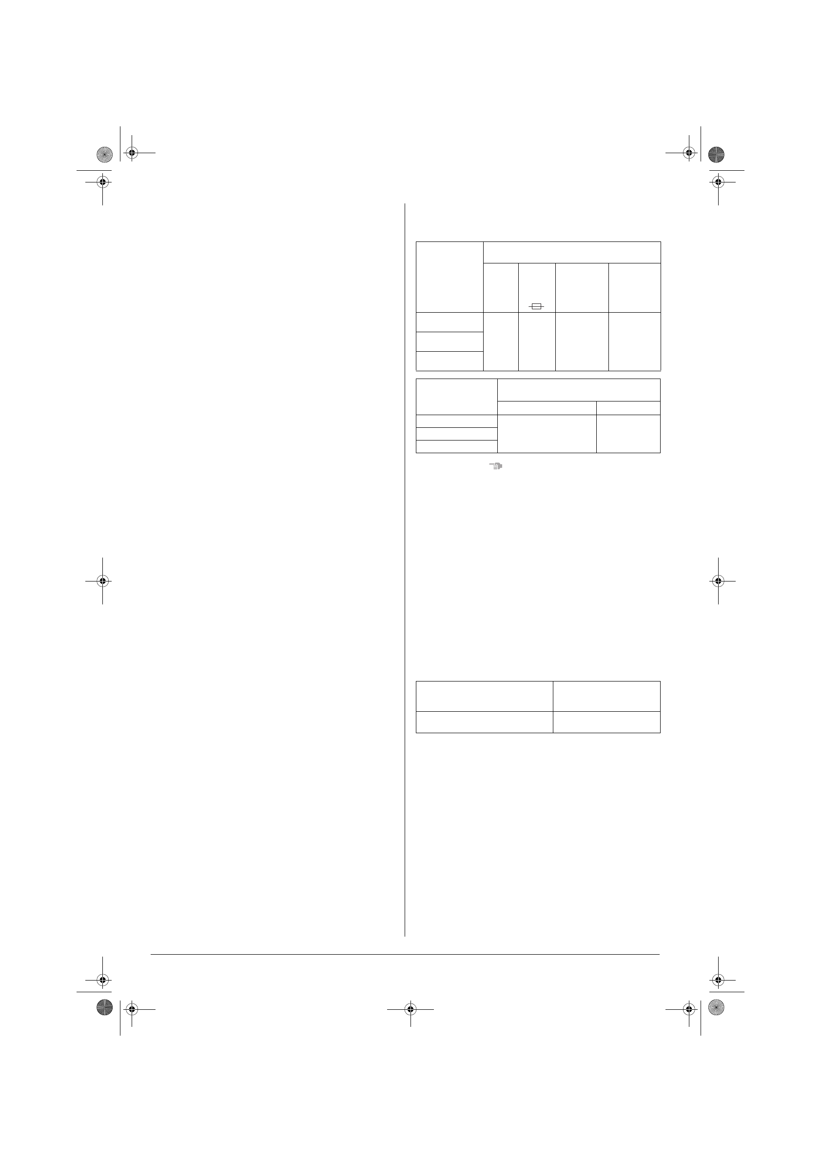
СПЕЦИФИКАЦИИ
ПРЕДОХРАНИТЕЛЕЙ
И
ПРОВОДОВ
МЕСТНОЙ
ПОСТАВКИ
Относятся
к
питанию
ПРИМЕЧАНИЯ
1.
Отображается
только
в
случае
защищенных
труб
.
При
отсутствии
защиты
используйте
H07RN-F.
2.
Толщина
изоляции
: 1
мм
или
более
.
3.
Если
проводка
осуществляется
в
таком
месте
,
где
люди
могут
к
ней
легко
прикоснуться
,
установите
прерыватель
утечки
на
землю
для
предотвращения
поражения
электрическим
током
.
4.
При
использовании
прерывателя
утечки
на
землю
обязательно
выберите
такой
прерыватель
,
чтобы
он
мог
также
защитить
от
избыточного
тока
и
короткого
замыкания
.
При
использовании
прерывателя
утечки
на
землю
только
для
заземления
устройства
,
обязательно
используйте
его
с
прерывателем
проводки
.
•
Длиной
проводки
цепи
передачи
и
электрической
проводки
удаленного
контроллера
является
следующая
длина
.
Длина
проводки
цепи
передачи
и
электрической
проводки
удаленного
контроллера
Модель
Проводка
источника
питания
(
включая
провод
заземления
)
Количеств
о
блоков
Предохра
-
нители
местной
поставки
Провод
Диаметр
15 · 20 · 25 · 32
тип
1
16A
H05VV-U3G
(
ПРИМЕЧАНИЕ
1)
Габариты
должны
соответств
-
овать
местным
нормативам
40 · 50
тип
63
тип
Модель
Проводка
цепи
передачи
Проводка
удаленного
контроллера
Провод
Диаметр
(
мм
2
)
15 · 20 · 25 · 32
тип
Виниловый
шнур
в
оболочке
или
кабель
(2-
проводный
)
(
ПРИМЕЧАНИЕ
1)
0,75 - 1,25
40 · 50
тип
63
тип
Наружный
блок
–
Комнатный
блок
Макс
. 1000
м
(
Общая
длина
проводки
:
2000
м
)
Комнатный
блок
–
Удаленный
контроллер
Макс
. 500
м
4PRU325876-1D.book Page 11 Thursday, September 3, 2015 1:55 PM