Кондиционеры Daikin FHQ-C - инструкция пользователя по применению, эксплуатации и установке на русском языке. Мы надеемся, она поможет вам решить возникшие у вас вопросы при эксплуатации техники.
Если остались вопросы, задайте их в комментариях после инструкции.
"Загружаем инструкцию", означает, что нужно подождать пока файл загрузится и можно будет его читать онлайн. Некоторые инструкции очень большие и время их появления зависит от вашей скорости интернета.

39
Русский
3D079559-1A
FHQ35 • 50 • 60 • 71 • 100 • 125 • 140CAVEB
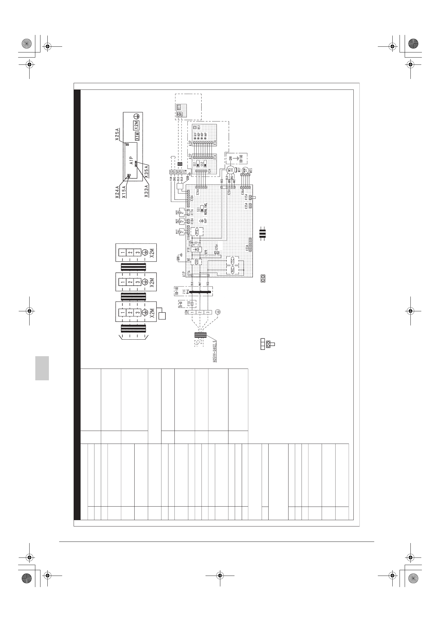
A1P
C105
F1U
HAP
KPR
M1F
M1S
R1T
R2T·R3T
SS1
V1R
X1M
X2M
Z1F
Z1C
PS
RC
TC
R1T
ТЕРМИСТОР (ВОЗДУХ)
A2P
A3P
BS1
H1P
H2P
H3P
ПЕЧАТНАЯ ПЛАТА
ПЕЧАТНАЯ ПЛАТА
НАЖИМНАЯ КНОПКА (ВКЛ/ВЫКЛ)
КОНТРОЛЬНАЯ ЛАМПА
(ВКЛ - КРАСНЫЙ)
КОНТРОЛЬНАЯ ЛАМПА
(ТАЙМЕР - ЗЕЛЕНЫЙ)
КОНТРОЛЬНАЯ ЛАМПА
(ЗНАК ФИЛЬТРА - КРАСНЫЙ)
X15A
X24A
X25A
X33A
X35A
РАЗЪЕМ (
ПОПЛАВКОВОЕ
РЕЛЕ УРОВНЯ
)
РАЗЪЕМ (БЕСПРОВОДНОЙ
ПУЛЬТ ДИСТАНЦИОННОГО
УПРАВЛЕНИЯ)
РАЗЪЕМ
(ДРЕНАЖНАЯ ТРУБА)
РАЗЪЕМ (ПЕРЕХОДНИК
ДЛЯ ЭЛЕКТРИЧЕСКОЙ
ПРОВОДКИ)
РАЗЪЕМ
(АДАПТЕР ГРУППОВОГО
УПРАВЛЕНИЯ)
ПЕЧАТНАЯ ПЛАТА
КОНДЕНСАТОР (M1F)
ПРЕДОХРАНИТЕЛЬ (F, 5A, 250
В
)
МИГАЮЩАЯ ЛАМПА (МОНИТОР
ОБСЛУЖИВАНИЯ ЗЕЛЕНЫЙ)
МАГНИТНОЕ РЕЛЕНЫЙ
(ДРЕНАЖНАЯ ТРУБА)
ДВИГАТЕЛЬ (ВНУТРЕННИЙ
BEHTИЛЯТОР)
ДВИГАТЕЛЬ
(ПОВОРАЧИВАЮЩЕЕСЯ ЛЕЗВИЕ)
ТЕРМИСТОР (ВОЗДУХ)
ТЕРМИСТОР (ЗМЕЕВИК)
СЕЛЕКТОРНЫЙ ПЕРЕКЛЮЧАТЕЛЬ
(АВАРИЙНЫЙ СИГНАЛ)
ДИОДНЫЙ МОСТ
КЛЕММНАЯ КОЛОДКА
КЛЕММНАЯ КОЛОДКА
ФИЛЬТР ШУМА
ФЕРРИТОВЫЙ СЕРДЕЧНИК
(ФИЛЬТР ШУМА)
СХЕМА ЭЛЕКТРОПИТАНИЯ
ЦЕПЬ ПРИЕМНИКА СИГНАЛА
ЦЕПЬ ПЕРЕДАЧИ СИГНАЛА
2. В СЛУЧАЕ ОДНОВРЕМЕННОЙ РАБОТЫ СИСТЕМЫ ВНУТРЕННЕГО БЛОКА.
СМ. ТОЛЬКО ПРОВОДКУ ВНУТРЕННЕГО БЛОКА.
3. ДЛЯ ПОЛУЧЕНИЯ ПОДРОБНОЙ ИНФОРМАЦИИ СМ. СХЕМУ ПРОВОДКИ, ПРИКРЕПЛЕННУЮ К НАРУЖНОМУ БЛОКУ.
4. В СЛУЧАЕ ИСПОЛЬЗОВАНИЯ ЦЕНТРАЛЬНОГО ПУЛЬТА ДИСТАНЦИОННОГО УПРАВЛЕНИЯ ПОДСОЕДИНИТЕ ЕГО К
БЛОКУ В СООТВЕТСТВИИ С ПРИЛАГАЕМЫМ РУКОВОДСТВОМ ПО УСТАНОВКЕ.
5. X15A, X25A ПОДСОЕДИНЯЮТСЯ ПРИ ИСПОЛЬЗОВАНИИ КОМПЛЕКТА ПОДЪЕМА ДРЕНАЖА.
В СООТВЕТСТВИИ С ПРИКРЕПЛЕННЫМ РУКОВОДСТВОМ ПО МОНТАЖУ.
6. В СЛУЧАЕ ИЗМЕНЕНИЯ ПОДСОЕДИНЯЕМЫХ БЛОКОВ В ЗАВИСИМОСТИ ОТ СОСТАВА СИСТЕМЫ.
ПЕРЕД ПОДКЛЮЧЕНИЕМ СВЕРЬТЕСЬ С ТЕХНИЧЕСКОЙ ДОКУМЕНТАЦИЕЙ И КАТАЛОГАМИ.
7. В СЛУЧАЕ ПЕРЕКЛЮЧЕНИЯ ГЛАВНОГО/ВСПОМОГАТЕЛЬНОГО ПУЛЬТА.
СМ. РУКОВОДСТВО ПО МОНТАЖУ, ПРИКРЕПЛЕННОЕ К ПУЛЬТУ ДИСТАНЦИОННОГО УПРАВЛЕНИЯ.
8. СИМВОЛЫ ОБОЗНАЧАЮТСЯ СЛЕДУЮЩИМ ОБРАЗОМ: BLK: ЧЕРНЫЙ RED: КРАСНЫЙ BLU: СИНИЙ WHT: БЕЛЫЙ
YLW: ЖЕЛТЫЙ GRN: ЗЕЛЕНЫЙ ORG: ОРАНЖЕВЫЙ BRN: KOPИЧНEBЫЙ.
9. ОТОБРАЖАЕТСЯ ТОЛЬКО В СЛУЧАЕ ЗАЩИЩЕННЫХ ТРУБ.ПРИ ОТСУТСТВИИ ЗАЩИТЫ ИСПОЛЬЗУЙТЕ Н07RN-F.
ВНУТРЕННИЙ БЛОК
ЗАМОНТИРОВАННЫЙ
УДАЛЕННЫЙ КОНТРОЛЛЕР
БЕСПРОВОДНОЙ ПУЛЬТ
ДИСТАНЦИОННОГО УПРАВЛЕНИЯ
(БЛОК ПРИЕМНИКА/ДИСПЛЕЯ)
РАЗЪЕМ ДЛЯ
ДОПОЛНИТЕЛЬНЫХ ДЕТАЛЕЙ
H4P
SS1
SS2
КОНТРОЛЬНАЯ ЛАМПА
(РАЗМОРАЖИВАНИЕ -
ОРАНЖЕВЫЙ)
СЕЛЕКТОРНЫЙ
ПЕРЕКЛЮЧАТЕЛЬ
(ОСНОВНОЙ/СУББЛОК)
СЕЛЕКТОРНЫЙ
ПЕРЕКЛЮЧАТЕЛЬ
(НАСТРОЙКА
БЕСПРОВОДНОГО АДРЕСА)
: КЛЕММНАЯ КОЛОДКА
1.
ПРИМЕЧАНИЯ
: РАЗЪЕМ
: МЕСТНАЯ ПРОВОДКА
: РАЗЪЕМ ЦЕПИ КОРОТКОГО ЗАМЫКАНИЯ
14
13
10
9
11
11
1
2
15
15
3
4
5
6
7
8
12
15
СХЕМА ЭЛЕКТРИЧЕСКОГО МОНТАЖА
рис
. 40
09_RU_3P249378-6L.fm Page 39 Sunday, September 30, 2012 3:17 PM
Содержание
- 2 ПРЕДУПРЕЖДЕНИЕ
- 9 Размеры б
- 13 Моментный ключ
- 15 Русский
- 18 Правильно
- 20 Воздуховыпускное отверстие
- 21 ОБЩИЕ; Винт
- 26 Спаренный тип; Наружный блок; Одновременно работающая система; Источник питания
- 27 Групповое управление
- 28 Управление с помощью 2 пультов дистанционного управления
- 34 BRC1E; Однокр
- 35 ПРИМЕЧАНИЕ; КОД; AF; AJ
- 36 EA
- 37 JC
- 38 UC
- 40 СХЕМА ЭЛЕКТРИЧЕСКОГО МОНТАЖА; рис