Кондиционеры Daikin EKHWS-B3V3 - инструкция пользователя по применению, эксплуатации и установке на русском языке. Мы надеемся, она поможет вам решить возникшие у вас вопросы при эксплуатации техники.
Если остались вопросы, задайте их в комментариях после инструкции.
"Загружаем инструкцию", означает, что нужно подождать пока файл загрузится и можно будет его читать онлайн. Некоторые инструкции очень большие и время их появления зависит от вашей скорости интернета.

Installation manual
9
EKUHWBB + EKUHW2WB + EKHWSU150-300B3V3
Domestic hot water tank with option kit for air to water heat pump
system
4P344370-1 – 2013.03
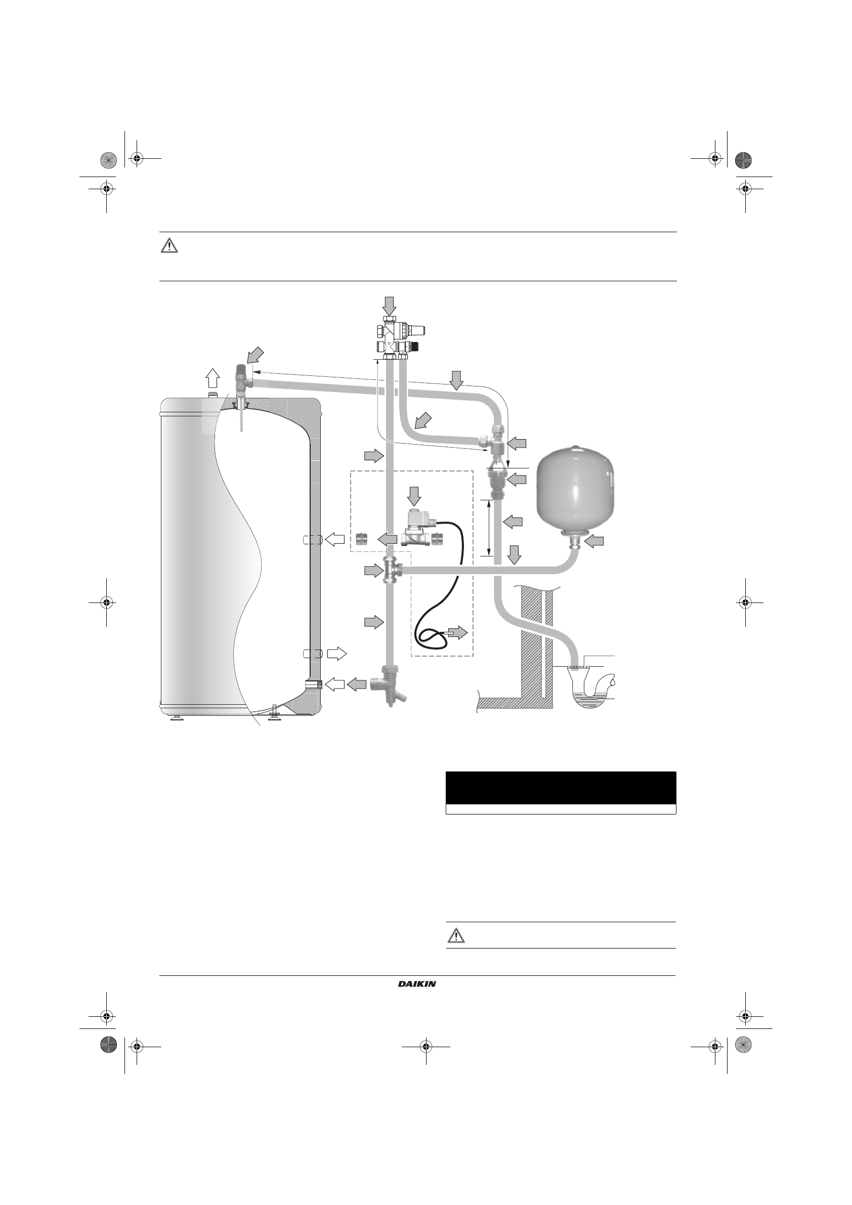
Installation of the option kit on the domestic hot water tank
Piping requirements
Tundish
The tundish should be vertical, located in the same space as the
domestic hot water tank and be fitted as close as possible to, but
lower than the temperature and pressure relief valve on the
domestic hot water tank and the expansion relief valve included
in the option kit, with no more than 600 mm of pipe between the
valve outlet and the tundish. The tundish must be visible.
Tundish pipework
Tundish pipework must be 22 mm metal pipe with a minimum
vertical length of 300 mm below the tundish before any elbows
or bends in the pipework. All pipework must have a continuous
fall of at least 1 in 200 thereafter. Maximum permitted
(equivalent) length of 22 mm pipework is 9 m. Each bend or
elbow is equivalent to 0.8 m of pipework.
Sizing of copper discharge pipe D2 for common temperature
relief valve outlet sizes
Requirements to discharges
Discharge piping, tundish, drain valves, etc. must be
positioned away from any electrical components.
The discharge pipe away from the tundish must terminate in
a safe, visible position without forming any risk to persons in
the vicinity.
If in any doubt, refer to Building Regulation G3.
All pipework and fittings must be flushed free of all flux and debris prior to the fitting of controls of this option kit. Failure to do this
may cause irreparable damage to the controls. Flush the system by opening the hot water tap.
All cautions as under chapter
"Installation of the EKHWSU domestic hot water tank" on page 2
remain of extreme importance and
are equally valid in this chapter.
H
C
R
F
5
600 mm
>300 mm
D1
D1
D2
Fixed grating
Trapped
effluent water
10
8
9
6
6
6
11
7
12
13
3
12
600 mm
2
4
EKUHW2WB
6
Valve
outlet
size
Discharge
pipe size D1
Discharge
pipe size D2
from tundish
Maximum
resistance
(a)
(a) The maximum allowed resistance is expressed as a length of straight pipe
(i.e. no ellbows or bends)
Resistance
created by
each elbow
or bend
15 mm
15 mm
22 mm
up to 9 m
0.8 m
Do not install any valves between the domestic hot
water tank and relief valves/expansion vessel.
4P344370-1.book Page 9 Tuesday, April 2, 2013 2:32 PM