Кондиционеры Daikin DCM601A51 - инструкция пользователя по применению, эксплуатации и установке на русском языке. Мы надеемся, она поможет вам решить возникшие у вас вопросы при эксплуатации техники.
Если остались вопросы, задайте их в комментариях после инструкции.
"Загружаем инструкцию", означает, что нужно подождать пока файл загрузится и можно будет его читать онлайн. Некоторые инструкции очень большие и время их появления зависит от вашей скорости интернета.

Инструкция
по
монтажу
3P291714-1
DCM601A51 intelligent Touch Manager
21
Русский
2.3.1
Расположение
клемм
и
принципиальная
схема
подключения
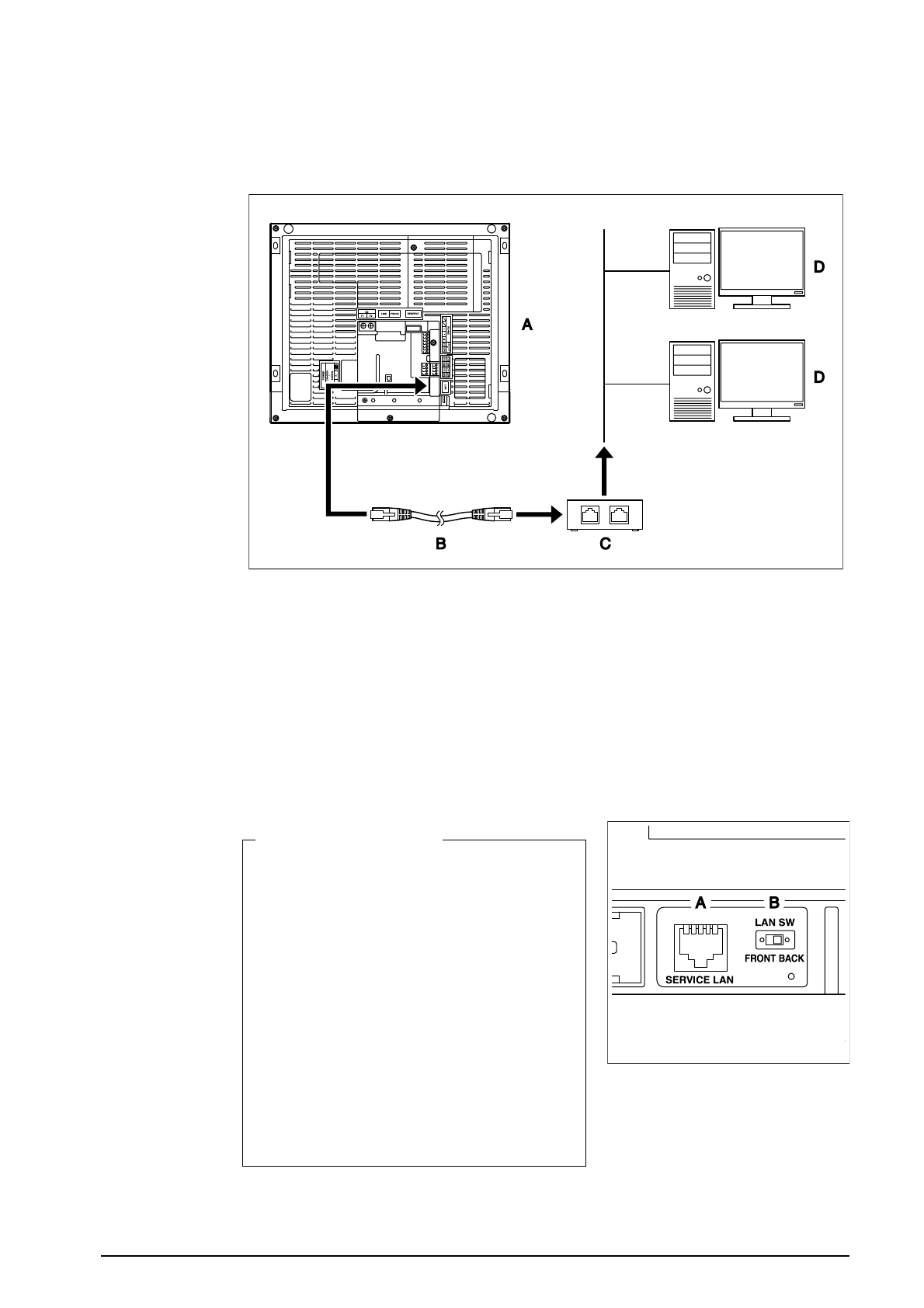
Соедините
гнездо
для
подключения
к
локальной
сети
с
концентратором
сети
с
помощью
сетевого
кабеля
.
<
Принципиальная
схема
подключения
к
локальной
сети
>
A
Задняя
поверхность
пульта
intelligent Touch Manager
B
Сетевой
кабель
C
Концентратор
D
Компьютер
2.3.2
Обязательные
требования
•
Стандарт
кабеля
: 100Base-TX
или
10Base-T
•
Стандарт
штекера
: RJ-45
<
Гнездо
SERVICE LAN
и
переключатель
LAN SW>
ОБРАТИТЕ
ВНИМАНИЕ
•
Для
временного
подключения
к
локальной
сети
в
целях
проведения
монтажных
работ
или
технического
обслуживания
следует
использовать
гнездо
SERVICE LAN,
расположенное
на
передней
поверхности
.
Гнездо
SERVICE LAN
активируется
(
включается
)
установкой
переключателя
LAN SW
в
положение
FRONT.
•
Когда
переключатель
находится
в
положе
-
нии
FRONT,
соответствующем
активации
переднего
гнезда
,
закрыть
крышку
невозможно
.
Чтобы
закрыть
крышку
,
пере
-
ключатель
необходимо
установить
в
поло
-
жение
BACK,
соответствующее
активации
заднего
гнезда
.
A
Гнездо
SERVICE LAN
B
Переключатель
LAN SW
Содержание
- 4 ПРЕДУПРЕЖДЕНИЕ
- 5 ВНИМАНИЕ
- 6 Содержание; Перед
- 8 Проверка; Принадлежности
- 9 Внешние; intelligent Touch Manager
- 11 Расположение; intelligent Touch; Задняя; iTM
- 12 intelligent Touch Manager.; Передняя
- 13 Боковая
- 14 Прокладка
- 15 Выбор; Пространство
- 16 Подключение; intelligent; Снятие
- 17 DIII
- 19 ОБРАТИТЕ; DAIKIN
- 20 Переключатель; intelligent Touch Manager (
- 21 Гнездо
- 22 CPEV
- 23 Назначение; Шинный
- 26 Принципиальная
- 27 Обязательные
- 28 Способы; Монтаж; Используемые
- 29 Порядок; intelligent Touch Manager,; Установка
- 31 Крепление
- 35 Выключатель; NET
- 36 Страница; Locale Settings
- 37 Time Zone Settings
- 41 Шаг
- 47 Краткое