Кондиционеры Daikin DCM601A51 - инструкция пользователя по применению, эксплуатации и установке на русском языке. Мы надеемся, она поможет вам решить возникшие у вас вопросы при эксплуатации техники.
Если остались вопросы, задайте их в комментариях после инструкции.
"Загружаем инструкцию", означает, что нужно подождать пока файл загрузится и можно будет его читать онлайн. Некоторые инструкции очень большие и время их появления зависит от вашей скорости интернета.

10
Инструкция
по
монтажу
3P291714-1
DCM601A51 intelligent Touch Manager
Русский
•
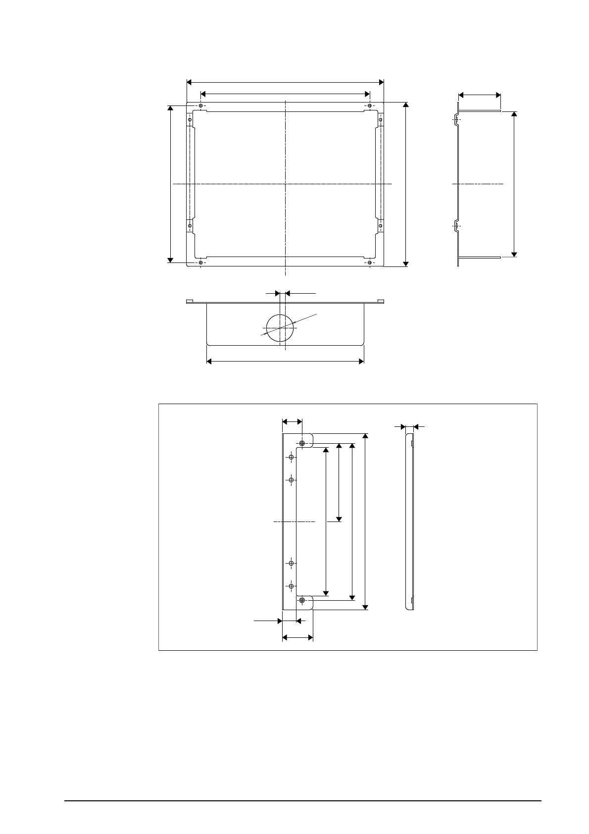
Рамочный
кронштейн
281,4
мм
207,7
мм
61,6
мм
Φ38,5
241
мм
224,6
мм
224
мм
7,5
мм
234,4
мм
Толщина
1,6
мм
•
Угловой
кронштейн
251,5
мм
224
мм
112,15
мм
211,5
мм
28,2
мм
20
мм
43,7
мм
11,6
мм
Толщина
1,6
мм
Содержание
- 4 ПРЕДУПРЕЖДЕНИЕ
- 5 ВНИМАНИЕ
- 6 Содержание; Перед
- 8 Проверка; Принадлежности
- 9 Внешние; intelligent Touch Manager
- 11 Расположение; intelligent Touch; Задняя; iTM
- 12 intelligent Touch Manager.; Передняя
- 13 Боковая
- 14 Прокладка
- 15 Выбор; Пространство
- 16 Подключение; intelligent; Снятие
- 17 DIII
- 19 ОБРАТИТЕ; DAIKIN
- 20 Переключатель; intelligent Touch Manager (
- 21 Гнездо
- 22 CPEV
- 23 Назначение; Шинный
- 26 Принципиальная
- 27 Обязательные
- 28 Способы; Монтаж; Используемые
- 29 Порядок; intelligent Touch Manager,; Установка
- 31 Крепление
- 35 Выключатель; NET
- 36 Страница; Locale Settings
- 37 Time Zone Settings
- 41 Шаг
- 47 Краткое