×èëëåð ATS ÑSW 11 100528901 - Инструкция по эксплуатации - Страница 15

Кондиционеры ×èëëåð ATS ÑSW 11 100528901 - инструкция пользователя по применению, эксплуатации и установке на русском языке. Мы надеемся, она поможет вам решить возникшие у вас вопросы при эксплуатации техники.

Если остались вопросы, задайте их в комментариях после инструкции.

"Загружаем инструкцию", означает, что нужно подождать пока файл загрузится и можно будет его читать онлайн. Некоторые инструкции очень большие и время их появления зависит от вашей скорости интернета.
Страница:
/ 39
Загружаем инструкцию
background image

 

 

Рук

-

во

 

по

 

эксплуатации

 

и

 

ТО

ред

. 00 

от

 25.07.2017 

стр

15

 

из

 

39

 

А

TS 

А

ir Treatment Solutions s.r.l.

 - 

'

 

+39.0442.629219 - 

*

 

info@atsairsolutions.com 

8

 

www.atsairsolutions.com 

Sede legale e operativa: Via 

Е

. Ferrari n°4 - 37045 S. Pietro di Legnago (VR) - ltalia - C.F. P.lVA n° 04307390239

 

 

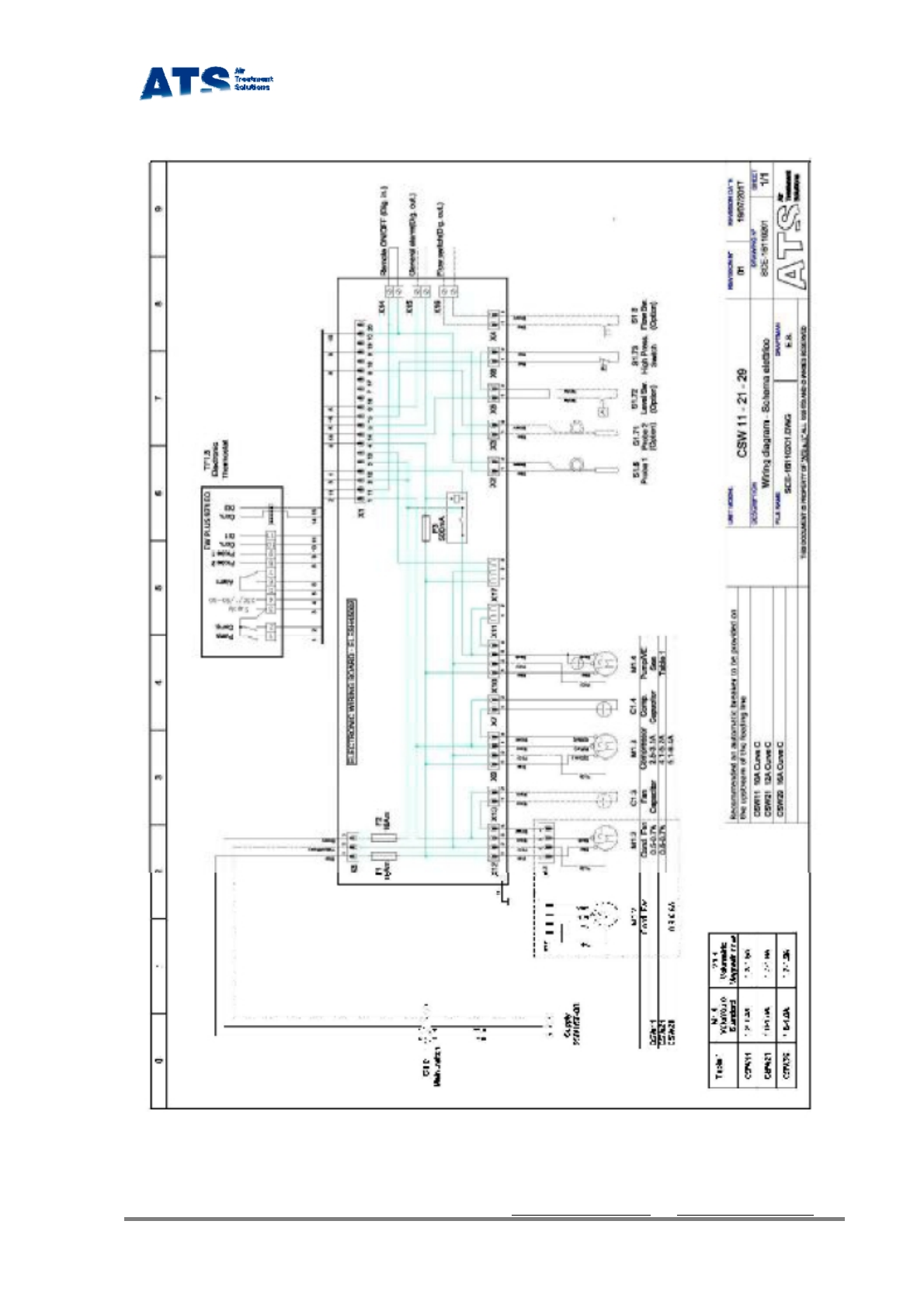
6.3 

Электрическая

 

система

 

 

 

 

Полезные видео

Характеристики

Оцените статью
tehnopanorama.ru
Остались вопросы?

Не нашли свой ответ в руководстве или возникли другие проблемы? Задайте свой вопрос в форме ниже с подробным описанием вашей ситуации, чтобы другие люди и специалисты смогли дать на него ответ. Если вы знаете как решить проблему другого человека, пожалуйста, подскажите ему :)

Задать вопрос

Часто задаваемые вопросы
Как посмотреть инструкцию к ×èëëåð ATS ÑSW 11 100528901?
Необходимо подождать полной загрузки инструкции в сером окне на данной странице
Руководство на русском языке?
Все наши руководства представлены на русском языке или схематично, поэтому вы без труда сможете разобраться с вашей моделью
Как скопировать текст из PDF?
Чтобы скопировать текст со страницы инструкции воспользуйтесь вкладкой "HTML"