Компрессоры COMPRAG F-0710 11410202 - инструкция пользователя по применению, эксплуатации и установке на русском языке. Мы надеемся, она поможет вам решить возникшие у вас вопросы при эксплуатации техники.
Если остались вопросы, задайте их в комментариях после инструкции.
"Загружаем инструкцию", означает, что нужно подождать пока файл загрузится и можно будет его читать онлайн. Некоторые инструкции очень большие и время их появления зависит от вашей скорости интернета.

11
COMPRAG Screw air compressor F-Series
2.2 General description
The F-Series oil-filled screw compressor series is designed for uninterrupted and efficient
compressed-air production.
The F-Series compressor is an electric motor-operated, intake-regulated, belt-driven and air-
cooled compressor, enclosed in a sound-insulated canopy. An electronic controller t-Log with
an LCD indicator panel is provided, including start and stop buttons and an emergency stop
button. Pressure and temperature relays are used for system control and protection.
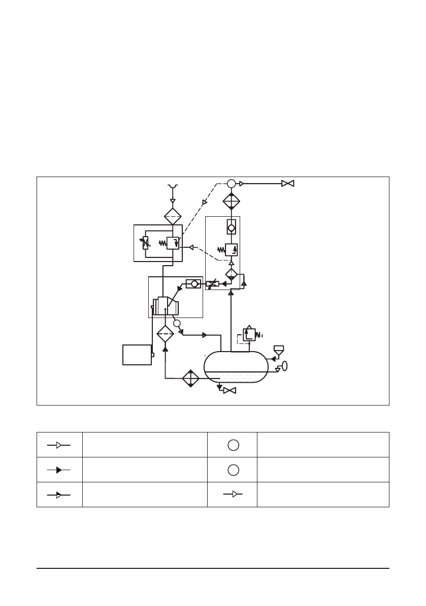
2.3 Function diagram and main components
Т
Р
Air flow
Т
Р
Temperature sensor
Т
Р
Oil flow
Т
Р
Pressure sensor
Т
Р
Air/Oil mix flow
Т
Р
Pneumatic control line
Fig. 2.3.1 Function diagram F 05..-F22.
M
1
2
3
6
7
8
11
12
9
10
13
20
4
5
18
14
16
17
19
P
T
к потребителю
to the user
Содержание
- 75 COMPRAG Компрессор воздушный винтовой F-Серия; Содержание
- 76 Правила техники безопасности; Общие правила безопасности
- 77 Меры безопасности при вводе в эксплуатацию
- 78 Меры безопасности при эксплуатации
- 79 Меры безопасности при обслуживании и ремонте
- 81 Технические данные
- 85 Система регулировки
- 86 Схема электрическая принципиальная
- 87 Ввод в эксплуатацию; Такелажные работы
- 88 Габаритные размеры
- 90 Подготовка помещения
- 91 Подсоединение к линии сжатого воздуха
- 92 Подключение к электропитанию
- 93 Панель управления
- 102 Выключение компрессора; Настройка и сервисное обслуживание; График технического обслуживания
- 103 Проверка уровня масла; Проверка приводных ремней
- 104 Замена масла и масляного фильтра
- 105 Замена воздушного фильтра
- 107 Очистка радиатора; Проверка всасывающего клапана
- 108 Устранение неисправностей; Возможные неисправности; Хранение и утилизация













