Источники бесперебойного питания APC (SY100) - инструкция пользователя по применению, эксплуатации и установке на русском языке. Мы надеемся, она поможет вам решить возникшие у вас вопросы при эксплуатации техники.
Если остались вопросы, задайте их в комментариях после инструкции.
"Загружаем инструкцию", означает, что нужно подождать пока файл загрузится и можно будет его читать онлайн. Некоторые инструкции очень большие и время их появления зависит от вашей скорости интернета.

250/500 kW 400/480 V
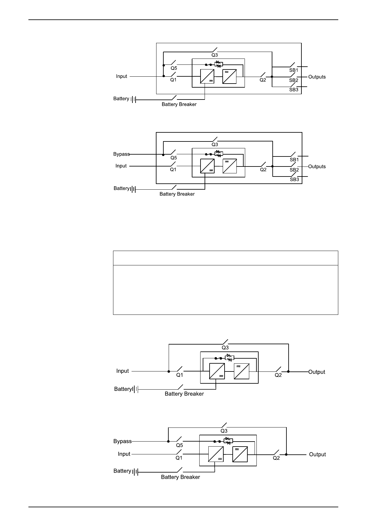
Single Utility/Mains with Maintenance Bypass
Dual Utility/Mains with Maintenance Bypass
Overview of Systems without Maintenance Bypass
Single Configurations
NOTICE
HAZARD OF EQUIPMENT DAMAGE
The neutral connection to utility/mains must not be disconnected even in battery
operation. Therefore 4–pole disconnectors/switches must not be used on the
bypass.
Failure to follow these instructions can result in equipment damage.
Single Utility/Mains without Maintenance Bypass
Dual Utility/Mains without Maintenance Bypass
26
990-3880G-001
Характеристики
Остались вопросы?Не нашли свой ответ в руководстве или возникли другие проблемы? Задайте свой вопрос в форме ниже с подробным описанием вашей ситуации, чтобы другие люди и специалисты смогли дать на него ответ. Если вы знаете как решить проблему другого человека, пожалуйста, подскажите ему :)