Холодильник Haier CEF537A - инструкция пользователя по применению, эксплуатации и установке на русском языке. Мы надеемся, она поможет вам решить возникшие у вас вопросы при эксплуатации техники.
Если остались вопросы, задайте их в комментариях после инструкции.
"Загружаем инструкцию", означает, что нужно подождать пока файл загрузится и можно будет его читать онлайн. Некоторые инструкции очень большие и время их появления зависит от вашей скорости интернета.

4
RUS
ПЕРЕД ИСПОЛЬЗОВАНИЕМ
*CEF537AWG / CEF537ASG / CEF537AGG / CEF537ACG /
CEF537AWD / CEF537ASD
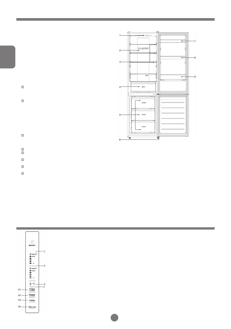
Описание
Эта схема может немного отличаться от комплектации холодильника, который вы приобрели.*
Место размещения
Правила и условия монтажа:
Выберите наилучшее место для установки холо
-
дильника: место куда не падает прямой солнечный свет,
где есть ровный пол, где можно легко и удобно открывать
дверцы холодильника.
Холодильник должен быть установлен на ровной
и твердой поверхности. Если холодильник находится в
наклонном положении, возможны неполадки в работе
внутренней системы охлаждения. Если холодильник по
-
мещается на неровную поверхность, в качестве подставки
должны использоваться ровные прочные и огнестойкие
материалы. Если холодильник слегка неустойчив, вы мо
-
жете удлинить или укоротить настраиваемые ножки холо
-
дильника, поворачивая их по часовой или против часовой
стрелки.
Если холодильник помещается на неровную поверх
-
ность, в качестве подставки должны использоваться
ФУНКЦИИ
1) LED освещение
2) Total No Frost
3) Полка
4) Ящик для овощей и фруктов
5)Ящики морозильной камеры
6) Регулируемые ножки
7) Верхний держатель бутылок
8) Средний держатель бутылок
9) Большой держатель бутылок
ровные прочные и огнестойкие материалы. Если холодильник слегка неустойчив, вы можете удлинить или укоротить настраивае
-
мые ножки холодильника, поворачивая их по часовой или против часовой стрелки.
Обратите внимание на рисунке на размеры пространства для установки холодильника.
Для обеспечения правильного закрытия двери холодильник слегка наклонен назад - конструктивная особенность.
Правила хранения и транспортировка:
Упакованный холодильник должен храниться при относительной влажности не более 80% в закрытых помещениях с естествен
-
ной вентиляцией в вертикальном положении.
При отключенном холодильнике из сети на длительное время, вынуть все продукты, разморозить морозильную камеру и произ
-
вести уборку камер. Двери после уборки оставить немного приоткрытыми, чтобы в камерах не появился неприятный запах.
Транспортировать холодильник необходимо в вертикальном положении, любым видом крытого транспорта, надежно закрепив
его, чтобы исключить любые возможные удары, перемещения и падения внутри транспортного средства.
Реализация:
Условия реализации производится в соответствии с местным законодательством страны
Подготовка перед использованием
Удалите упаковку, основание из пенопласта и клейкую ленту, фиксирующую аксессуары. Проверьте сопроводительную докумен
-
тацию и аксессуары. В случае расхождения в комплектации обратитесь в магазин в течение 14 дней с момента покупки. Передвиньте
холодильник в соответствующее место - смотрите раздел «Место размещения». Рекомендуется почистить корпус перед использова
-
нием. Почистите наружную и внутреннюю часть холодильника влажной мягкой ветошью перед тем, как разместить в нем продукты
питания. После выравнивания и очистки прибора, дайте ему постоять в нерабочем состоянии не менее 6 часов перед тем, как включить
его, чтобы обеспечить его нормальную работу. После подключения холодильника к электроснабжению, температура холодильной и
морозильной камеры автоматически устанавливается на 5 °C и -18 °C соответственно. Отделение My Zone работает в режиме холодиль
-
ного устройства. Ручная настройка режима: можно задать температуру нажатием кнопки «настройка температуры» (смотрите раздел
«Функций» данного руководства). Загрузите холодильник продуктами питания после того как он некоторое время поработал и отсек
холодильника достаточно охладился.
Панель управления
Управление дисплеем и функция блокировки
Экран дисплея выключается и блокируется (загорается индикатор F) автоматически через 30 секунд после
окончания операции. Он загорается при открытии дверцы холодильника или при нажатии любой кнопки. (При
предупредительном сигнале экран дисплея не загорается). Функция блокировки: Нажимайте и удерживайте
кнопку А4 в течение 3 секунд пока не загорится индикатор F, экран дисплея блокируется. Функция разблоки
-
ровки: Нажимайте и удерживайте кнопку А4 в течение 3 секунд пока не погаснет индикатор F, экран дисплея
разблокируется.
Настройка температуры холодильника (Super-Cool)
Для выбора необходимой температуры, нажимайте кнопку А1 при этом температура будет циклично изме
-
няться от Min до Max на индикаторе С, выберите необходимую вам температуру. Диапазон температур холо
-
дильника варьирует от минимального значения 2°C до максимального значения 8°C. Несколько раз нажмите А1
пока не загорится индикатор C; нажмите А2, чтобы подтвердить установленную температуру, либо нажмите А4.
Настройка температуры морозильной камеры (Super-Frz)
Для выбора необходимой температуры, нажимайте кнопку А2 при этом температура будет циклично изме
-
няться от Min до Max на индикаторе D, выберите необходимую вам температур. Диапазон температур холодиль
-
ника варьирует от минимального значения -24°C до максимального значения -16°C.
Сильное охлаждение (Super-Cool)
Для активации функции удерживайте кнопку А1 в течение 3 секунд пока не загорится индикатор C. Для выхода
из режима сильное охлаждение необходимо удерживать кнопку А1 до момента отключения индикатора С. Эта
функция автоматически отключится, когда температура упадет ниже минимального уровня.
Содержание
- 4 ПЕРЕД ИСПОЛЬЗОВАНИЕМ; Описание; Место размещения; ФУНКЦИИ; Подготовка перед использованием; Панель управления; Управление дисплеем и функция блокировки
- 5 Настройка высоты полок; Память в случае отключения электроэнергии; Большой объем хранения; Настройка температуры холодильника; Функция выходные; Рекомендованное хранение для разных продуктов; ОБСЛУЖИВАНИЕ; Очистка
- 6 Размораживание морозильной камеры; ОБНАРУЖЕНИЕ И УСТРАНЕНИЕ НЕИСПРАВНОСТЕЙ
- 7 ГАРАНТИЙНОЕ И ПОСЛЕГАРАНТИЙНОЕ СЕРВИСНОЕ
- 28 бесплатный звонов из регионов России; БЕСПЛАТНАЯ ГОРЯЧАЯ ЛИНИЯ
Характеристики
Остались вопросы?Не нашли свой ответ в руководстве или возникли другие проблемы? Задайте свой вопрос в форме ниже с подробным описанием вашей ситуации, чтобы другие люди и специалисты смогли дать на него ответ. Если вы знаете как решить проблему другого человека, пожалуйста, подскажите ему :)