Холодильник Haier CEF537A - инструкция пользователя по применению, эксплуатации и установке на русском языке. Мы надеемся, она поможет вам решить возникшие у вас вопросы при эксплуатации техники.
Если остались вопросы, задайте их в комментариях после инструкции.
"Загружаем инструкцию", означает, что нужно подождать пока файл загрузится и можно будет его читать онлайн. Некоторые инструкции очень большие и время их появления зависит от вашей скорости интернета.

KZ
10
ПАЙДАЛАНАР АЛДЫНДА
*CEF537AWG / CEF537ASG / CEF537AGG / CEF537ACG /
CEF537AWD / CEF537ASD
Сипаты
Бұл схема сіз сатып алған тоңазытқыштың жинақтамасынан біршама ерекшеленуі мүмкін.*
Орналастыру орны
Монтаждау ережелері мен шарттары:
Тоңазытқышты орнатуға ыңғайлы орынды таңдап
алыңыз: су құбырына қол жеткізуге ыңғайлы, тікелей күн
сәулесі түспейтін, едені тегіс (немесе тегіс дерлік) жер.
Тоңазытқыштың есіктерін оңай әрі ыңғайлы етіп ашуға бо
-
латын жерді таңдаңыз.
Тоңазытқыш тегіс және қатты жерге орнатылуы тиіс.
Егер тоңазытқыш еңіс қалыпта тұрса, ішкі суыту жүйе
-
лерінің жұмысында ақау болуы мүмкін. Егер тоңазытқыш
тегіс емес жерге орнатылса, астына қоятын зат ретінде
тегіс берік және отқа төзімді материалдарды пайдалану
керек. Егер тоңазытқыш аздап шайалып тұратын бола, сіз
тоңазытқыштың аяқтарын сағат тілімен немесе сағат тіліне
қарсы бұру арқылы бапталатын аяқтарын ұзарта немесе
қысқарта аласыз
ФУНКЦИЯЛАРЫ
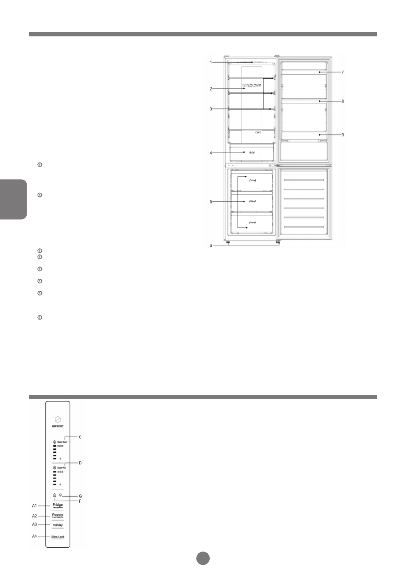
1) LED освещение
2) Total No Frost
3) Полка
4) Ящик для овощей и фруктов
5)Ящики морозильной камеры
6) Регулируемые ножки
7) Верхний держатель бутылок
8) Средний держатель бутылок
9) Большой держатель бутылок
Суретте тоңазытқышты орнатуға арналған кеңістік мөлшеріне көңіл аударыңыз.
Есігінің дұрыс жабылуын қамтамасыз ету үшін, тоңазытқыш аздап артқа еңкейіп тұрады – конструкциялық ерекшелігі.
Сақтау ережелері және тасымалдау:
Қапталған тоңазытқыш тік қалпында 80%-дан аспайтын салыстырмалы ылғалдылықта, табиғи желдетілетін жабық бөлмеде
сақталуы тиіс.
Тоңазытқыш ұзақ уақыт желіден ажыратулы тұрған кезде, ішіндегі азық-түлікті алып тастап, камераны тазалаңыз. Камераларда
жағымсыз иістің пайда болмауы үшін, тазалап болған соң, есіктерін аздап ашып қойыңыз.
Тоңазытқышты көлік құралының ішінде ықтимал соққы алуын, жылжуы мен құлап түсуін болдырмау үшін, сенімді етіп бекітіп, кез
келген жабық көлік түрінде тік күйінде тасымалдау керек.
Өткізу:
Өткізу шарттары елдің жергілікті заңнамасына сәйкес жүргізіледі.
Пайдалану алдындағы дайындық
Қаптаманы, көбікпласт негізді және аксессуарларды бекітетін жабысқақ таспаны алып тастаңыз. Ілеспе құжаттама мен аксессу
-
арларды тексеріңіз. Жинақтамада алшақтық болған жағдайда, сатып алған сәттен бастап 14 күн ішінде дүкенге хабарласыңыз. Тоңа
-
зытқышты тиісті орынға жылжытыңыз – «Орналастыру орны» тарауын қараңыз. Пайдаланар алдында корпусты тазалап алыңыз. Ішіне
азық-түлікті салудан бұрын, ылғал жұмсақ шүберекпен тоңазытқыштың сыртқы және ішкі бетін тазалаңыз. Аспапты теңестіріп және
тазалап алғаннан кейін, оның қалыпты жұмыс істеуін қамтамасыз ету үшін, тоңазытқышты қосудан бұрын, ол кемінде 6 сағат жұмыс
істемей тұруы тиіс. Тоңазытқышты электр қорегіне қосқан соң, тоңазыту және мұздату камераларының температурасы автоматты түрде
сәйкес ретте 5 °C және -18 °C етіп белгіленеді. My Zone бөлімі тоңазыту құрылғысы режимінде жұмыс істейді. Режимді қолмен бап
-
тау: «температураны баптау» батырмасын басу арқылы температураны беруге болады (осы нұсқаулықтың «Функкциялар» тарауын
қараңыз). Тоңазытқыш біршама уақыт жұмыс істеп, тоңазытқыштың бөлігі жеткілікті шамада суыған соң, тоңазытқышқа азық-түлікті
салуға болады.
Басқару панелі
Дисплейді басқару және бұғаттау функциясы
Жұмыс аяқталғаннан кейін дисплей экраны өшіп, құлыпталады (F индикаторы жанады). Тоңазытқыштың
есігін ашқан кезде немесе кез келген түймені басқан кезде жанады. (Дабыл кезінде ескерту экраны жанбайды).
Құлыптау функциясы: A индикаторы жанғанша, дисплей экраны құлыптанғанша A4 түймесін 3 секунд басып
тұрыңыз. Құлыпты ашу функциясы: F индикаторы сөнгенше, дисплей экраны құлыптанғанша A4 түймесін 3 се
-
кунд басып тұрыңыз.
Тоңазытқыштың температурасын баптау (Super-Cool)
Қажетті температураны таңдау үшін, А1 батырмасын басыңыз. Бұл кезде температура С индикаторында
Min-нен Max-ке дейін циклдық өзгеріске ұшырайды, өзіңізге қажетті температураны таңдап алыңыз. Тоңа
-
зытқыштың температуралар диапазоны 2°C минималл мәннен 8°C максималл мәнге дейін құбылып отырады
.
Мұздату камерасының температурасын баптау (Super-Frz)
Қажетті температураны таңдау үшін, А2 батырмасын басыңыз. Бұл кезде температура D индикаторында
Min-нен Max-ке дейін циклдық өзгеріске ұшырайды, өзіңізге қажетті температураны таңдап алыңыз. Тоңа
-
зытқыштың температуралар диапазоны -24°C минималл мәннен -16°C максмалл мәнге дейін құбылып оты
-
рады.
Қатты суыту (Super-Cool)
Функцияны белсендіру үшін, С индикаторы жанғанға дейін А1 батырмасын 3 секунд ұстап тұрыңыз. Қатты
суыту режимінен шығу үшін, С индикаторы ажыратылғанға дейін А1 батырмасын ұстап тұрыңыз. Бұл функция
температура ең төмен деңгейден төмен түскенде, автоматты түрде өшеді.
Содержание
- 4 ПЕРЕД ИСПОЛЬЗОВАНИЕМ; Описание; Место размещения; ФУНКЦИИ; Подготовка перед использованием; Панель управления; Управление дисплеем и функция блокировки
- 5 Настройка высоты полок; Память в случае отключения электроэнергии; Большой объем хранения; Настройка температуры холодильника; Функция выходные; Рекомендованное хранение для разных продуктов; ОБСЛУЖИВАНИЕ; Очистка
- 6 Размораживание морозильной камеры; ОБНАРУЖЕНИЕ И УСТРАНЕНИЕ НЕИСПРАВНОСТЕЙ
- 7 ГАРАНТИЙНОЕ И ПОСЛЕГАРАНТИЙНОЕ СЕРВИСНОЕ
- 28 бесплатный звонов из регионов России; БЕСПЛАТНАЯ ГОРЯЧАЯ ЛИНИЯ
Характеристики
Остались вопросы?Не нашли свой ответ в руководстве или возникли другие проблемы? Задайте свой вопрос в форме ниже с подробным описанием вашей ситуации, чтобы другие люди и специалисты смогли дать на него ответ. Если вы знаете как решить проблему другого человека, пожалуйста, подскажите ему :)