Холодильник Haier CEF537A - инструкция пользователя по применению, эксплуатации и установке на русском языке. Мы надеемся, она поможет вам решить возникшие у вас вопросы при эксплуатации техники.
Если остались вопросы, задайте их в комментариях после инструкции.
"Загружаем инструкцию", означает, что нужно подождать пока файл загрузится и можно будет его читать онлайн. Некоторые инструкции очень большие и время их появления зависит от вашей скорости интернета.

UA
16
ПЕРЕД ВИКОРИСТАННЯМ
*CEF537AWG / CEF537ASG / CEF537AGG / CEF537ACG /
CEF537AWD / CEF537ASD
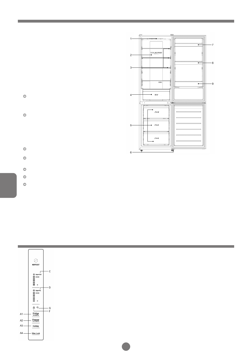
Опис
Ця схема може дещо відрізнятись від комплектації холодильника, який ви придбали.*
Місце розміщення
Правила та умови монтажу:
Виберіть найкраще місце для встановлення холо
-
дильника: місце зі зручним доступом до водопроводу, куди
не падає пряме сонячне світло, де підлога рівна (або майже
рівна). Виберіть місце, де можна легко і зручно відкривати
дверцята холодильника.
Холодильник повинен бути встановлений на рівній
і твердій поверхні. Якщо холодильник знаходиться в по
-
хилому положенні, можливі неполадки в роботі системи
охолодження. Якщо холодильник встановлений на нерівній
поверхні, в якості підставки необхідно використовувати
рівні, міцні і вогнестійкі матеріали. Якщо холодильник
злегка хиткий, можна подовжити або вкоротити ніжки
холодильника, повертаючи їх за годинниковою або проти
годинникової стрілки.
Зверніть увагу на вказані на малюнку розміри місця
для встановлення холодильника.
ФУНКЦІЇ
1) LED освещение
2) Total No Frost
3) Полка
4) Ящик для овощей и фруктов
5)Ящики морозильной камеры
6) Регулируемые ножки
7) Верхний держатель бутылок
8) Средний держатель бутылок
9) Большой держатель бутылок
Для забезпечення правильного закривання дверей холодильник повинене бути злегка нахилений назад – конструктивна особ
-
ливість.
Правила зберігання і транспортування:
Упакований холодильник повинен зберігатися при відносній вологості не більше 80% в закритих приміщеннях з природною вен
-
тиляцією у вертикальному положенні.
Якщо холодильник відключений від мережі на тривалий час, необхідно вийняти всі продукти, розморозити морозильну камеру
і зробити прибирання камер. Дверцята після прибирання залишити трохи відкритими, щоб в камерах не з’явився неприємний запах.
Транспортувати холодильник необхідно у вертикальному положенні будь-яким видом критого транспорту, надійно закріпивши
його, щоб виключити будь-які можливі удари, переміщення і падіння всередині транспортного засобу.
Реалізація:
реалізація здійснюється згідно місцевого законодавства країни.
Підготовка до використання
Зніміть упаковку, підставку з пінопласту і клейку стрічку, що фіксує аксесуари. Перевірте супровідну документацію та аксесуари.
У разі розбіжності в комплектації зверніться в магазин протягом 14 днів з моменту покупки. Пересуньте холодильник у відповідне
місце – дивіться розділ «Місце розміщення». Рекомендується почистити корпус перед використанням. Протріть зовнішню і внутрішню
частину холодильника вологою м’якою ганчіркою перед розміщенням в ньому продуктів харчування. Після вирівнювання і очищення
приладу, дайте йому постояти в неробочому стані не менше 6 годин перед включенням, щоб забезпечити його нормальну роботу. Після
підключення холодильника до електромережі, температура холодильної та морозильної камери автоматично встановлюється на 5°C і
-18°C відповідно. Відділення My Zone працює в режимі холодильного пристрою. Ручна настройка режиму: можна задати температуру
натисканням кнопки «налаштування температури» (дивіться розділ «Функції» цього керівництва). Завантажте холодильник продуктами
харчування після того, як він деякий час попрацював і відділення холодильника достатньо охолодилося.
Панель управління
Управління дисплеєм і функція блокування
Дисплей вимикається і блокується (загоряється індикатор F) автоматично через 30 секунд після закінчення
операції. Він загоряється при відкритті дверцят холодильника або при натисканні будь-якої кнопки. (При попе
-
реджувальному сигналі дисплей не спалахує). Функція блокування: натисніть і утримуйте кнопку А4 протягом
3 секунд, поки не загориться індикатор F, дисплей заблокується. Функція розблокування: натисніть і утримуйте
кнопку А4 протягом 3 секунд, поки не згасне індикатор Н, дисплей розблокується.
Налаштування температури холодильника (Super-Cool)
Для вибору необхідної температури, натискайте кнопку А1 при цьому температура буде циклічно змінюва
-
тися від Min до Max на індикаторі С, виберіть необхідну вам температуру. Діапазон температур холодильника
варіюється від мінімального значення 2°C до максимального значення 8°C.
Налаштування температури морозильної камери (Super-Frz)
Для вибору необхідної температури, натискайте кнопку А2 при цьому температура буде циклічно зміню
-
ватися від Min до Max на індикаторі D, виберіть необхідну вам температур. Діапазон температур морозильної
камери варіюється від мінімального значення -24°C до максимального значення -16 °C.
Сильне охолодження (Super-Cool)
Для активації функції утримуйте кнопку А1 протягом 3 секунд, поки не загориться індикатор C. Для виходу
з режиму «Сильне охолодження» необхідно утримувати кнопку А1 до моменту відключення індикатора С. Ця
функція автоматично вимикається, коли температура падає нижче мінімального рівня.
Содержание
- 4 ПЕРЕД ИСПОЛЬЗОВАНИЕМ; Описание; Место размещения; ФУНКЦИИ; Подготовка перед использованием; Панель управления; Управление дисплеем и функция блокировки
- 5 Настройка высоты полок; Память в случае отключения электроэнергии; Большой объем хранения; Настройка температуры холодильника; Функция выходные; Рекомендованное хранение для разных продуктов; ОБСЛУЖИВАНИЕ; Очистка
- 6 Размораживание морозильной камеры; ОБНАРУЖЕНИЕ И УСТРАНЕНИЕ НЕИСПРАВНОСТЕЙ
- 7 ГАРАНТИЙНОЕ И ПОСЛЕГАРАНТИЙНОЕ СЕРВИСНОЕ
- 28 бесплатный звонов из регионов России; БЕСПЛАТНАЯ ГОРЯЧАЯ ЛИНИЯ
Характеристики
Остались вопросы?Не нашли свой ответ в руководстве или возникли другие проблемы? Задайте свой вопрос в форме ниже с подробным описанием вашей ситуации, чтобы другие люди и специалисты смогли дать на него ответ. Если вы знаете как решить проблему другого человека, пожалуйста, подскажите ему :)