Страница 2 - РУКОВОДСТВО ПО УСТАНОВКЕ
СПЛИТ-СИСТЕМЫ КОНДИЦИОНИРОВАНИЯ С ВНУТРЕННИМ БЛОКОМ КАНАЛЬНОГО ТИПА (R410A) РУКОВОДСТВО ПО УСТАНОВКЕ И ЭКСПЛУАТАЦИИ МОДЕЛИ: FGR20/BNa-MFGR25/CNa-MFGR30/BNa-MFGR40/BNa-M Пожалуйста, перед началом работы внимательно изучите данное руководство
Страница 3 - РУКОВОДСТВО ПО УСТАНОВКЕ И ЭКСПЛУАТАЦИИ; СОДЕРЖАНИЕ; Подключение кабелей электропитания и межблочных
2 РУКОВОДСТВО ПО УСТАНОВКЕ И ЭКСПЛУАТАЦИИ СОДЕРЖАНИЕ 1. Назначение кондиционера ..................................................................... 3 2. Требования безопасности ..................................................................... 3 3. Технические данные ..............................
Страница 4 - НАЗНАЧЕНИЕ КОНДИЦИОНЕРА; Кондиционер осуществляет:; Общие указания; листами в соответствии с действующими нормативными правилами.; ТРЕБОВАНИЯ БЕЗОПАСНОСТИ
3 РУКОВОДСТВО ПО УСТАНОВКЕ И ЭКСПЛУАТАЦИИ 1. НАЗНАЧЕНИЕ КОНДИЦИОНЕРА Канальный кондиционер предназначен д ля создания благоприятных температурно-влажностных условий в жилых и слу жебных помещениях (офисах, кафе и т.п.). Кондиционер осуществляет: – ох лаж дение, нагрев, осушение возду ха в помещении ...
Страница 5 - ТЕХНИЧЕСКИЕ ДАННЫЕ; Общие требования безопасности; не вставляйте пальцы и другие предметы в решетки.; причинению вреда жизни и здоровью.; ние технических характеристик и состава действующих моделей.
4 РУКОВОДСТВО ПО УСТАНОВКЕ И ЭКСПЛУАТАЦИИ 3. ТЕХНИЧЕСКИЕ ДАННЫЕ 2.2 Общие требования безопасности • Кондиционер должен быть установлен таким образом, чтобы обеспечить сво- бодный вход и выход возду ха через вентиляционные жалюзи блоков, а так же сво-бодный доступ персонала при эксплуатации и сервисн...
Страница 8 - УСТРОЙСТВО И ПРИНЦИП РАБОТЫ КОНДИЦИОНЕРА; Состав кондиционера; в соответствии с рисунком 4.1
7 РУКОВОДСТВО ПО УСТАНОВКЕ И ЭКСПЛУАТАЦИИ 4. УСТРОЙСТВО И ПРИНЦИП РАБОТЫ КОНДИЦИОНЕРА 4.1 Состав кондиционера в соответствии с рисунком 4.1 Канальный кондиционер состоит из внутреннего блока, наружного блока, соединительноготрубопровода, проводного пульта управления, кабеля управления и электрически...
Страница 9 - УПРАВЛЕНИЕ КОНДИЦИОНЕРОМ; Максимальная д лина провода может быть 20 м.
8 РУКОВОДСТВО ПО УСТАНОВКЕ И ЭКСПЛУАТАЦИИ 5. УПРАВЛЕНИЕ КОНДИЦИОНЕРОМ Управление кондиционером производится при помощи проводного пульта управления (п. 5.1), который входит в комплект поставки. Длина провода от пульта до вну треннего блока в стандартной поставке 8м. Максимальная д лина провода может...
Страница 12 - — Ох лаж дение COOLING
11 РУКОВОДСТВО ПО УСТАНОВКЕ И ЭКСПЛУАТАЦИИ 5.2 Порядок управления с проводного пульта5.2.1 При подаче электропитания на кондиционер на проводном пульте загора- ется индикация температуры см. рис. 5.4 (а). 5.2.1.1 При вк лючении кондиционера в работу кнопками ON/OFF автоматически на жк-дисплее высвеч...
Страница 13 - димое время вык лючения и нажать кнопк у TIMER д ля подтверж дения.
12 РУКОВОДСТВО ПО УСТАНОВКЕ И ЭКСПЛУАТАЦИИ 5.2.4 Установка функции таймера (рис. 5.7).5.2.4.1 Функция таймера (Timer) позволяет запрограммировать вк лючение или вык лючение кондиционера с заданными параметрами через установленный про-меж у ток времени. 5.2.4.2 Диапазон вк лючения или вык лючения по ...
Страница 16 - Save, то параметры температуры определяются режимом AUTO.; Save; одновременно и удерживайте в течение 5 сек. д ля вызова меню.
15 РУКОВОДСТВО ПО УСТАНОВКЕ И ЭКСПЛУАТАЦИИ 5.2.6.4 Если вк лючен режим кондиционера AUTO с установленной функцией Save, то параметры температуры определяются режимом AUTO. 5.2.6.5 При сбое электропитания и последующего восстановления значение функции сохраняются. 5.2.6.6 Если при вк люченной функции...
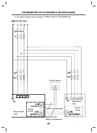
Страница 19 - Центральный пульт управления с недельным таймером; К одному центральному пульту может
18 РУКОВОДСТВО ПО УСТАНОВКЕ И ЭКСПЛУАТАЦИИ 6. Центральный пульт управления с недельным таймером 6.1 В качестве опции может использоваться пульт централизованного управле- ния со встроенным недельным таймером. (Рис. 6.1) 6.2 К одному центральному пульту может быть подк лючено до 16 кондиционеров данн...
Страница 20 - Схема подк лючения пульта централизованного управления
19 РУКОВОДСТВО ПО УСТАНОВКЕ И ЭКСПЛУАТАЦИИ 6.6 Схема подк лючения пульта централизованного управления Рис. 6.2 Пульт управления Max 16 шт Телефонныйразъём Телефонныйразъём Телефонный разъём Максимальная длина 1200 м Телефонныйразъём Пульт управления
Страница 21 - УКАЗАНИЯ ПО ЭКСПЛУАТАЦИИ
20 РУКОВОДСТВО ПО УСТАНОВКЕ И ЭКСПЛУАТАЦИИ 7. УКАЗАНИЯ ПО ЭКСПЛУАТАЦИИ 7.1 Эксплуатацию кондиционера производить в соответствие с требованиями настоящей инструкции. 7.2 Температурный диапазон эксплуатации в соответствие таблицей 7.1 Таблица 7.1 Вну три помещения,(DB/ WB) °С Снару жи помещения, (DB/ ...
Страница 22 - Установочные размеры вну тренних блоков; ГАБАРИТНЫЕ И УСТАНОВОЧНЫЕ РЗМЕРЫ БЛОКОВ; Модель блока
21 РУКОВОДСТВО ПО УСТАНОВКЕ И ЭКСПЛУАТАЦИИ 9.1 Установочные размеры вну тренних блоков Модель блока a b c d e f FG(R)20/ BNa -M(I) 1353 632 992 1150 192 343 FG(R)25/ СNa -M(I) 1560 910 331 1194 292 342 FG(R)30/ BNa -M(I) 1560 910 1194 1194 292 342 FG(R)40/ BNa -M(I) 1780 1040 868 1450 347 555 Рис. 9...
Страница 24 - Регулировка ремня привода вентилятора; Дренажная труба должна быть установлена с уклоном по ходу слива.
23 РУКОВОДСТВО ПО УСТАНОВКЕ И ЭКСПЛУАТАЦИИ 9.3.3 Монтаж дренажного шланга 9.3.4 Регулировка ремня привода вентилятора • Для организации слива конденсата из внутреннего блока необходимо через муфту кдренажному отводу подключить дренажный шланг или трубу. • Дренажная труба должна быть установлена с ук...
Страница 25 - Регулировка натяжения ремня привода
24 РУКОВОДСТВО ПО УСТАНОВКЕ И ЭКСПЛУАТАЦИИ Регулировка натяжения ремня привода • Сила натяжения ремня проверяется тензометром в соответствии с рисунком . • Значение величины отклонения ( ∆ ) определяется по формуле: ∆ = L/64, где L — общая длина ремня. Схема измерения натяжения ремня привода вентиля...
Страница 26 - Диаметр малого
25 РУКОВОДСТВО ПО УСТАНОВКЕ И ЭКСПЛУАТАЦИИ Значение натяжения ремня при этом должно соответствовать таблице. Таблица 9.1 Диаметр малого шкива, мм Обозначение марки ремня Сила натяжения при , (Н) Запрещается запускать кондиционер без подключенных вентиляционных каналов. • Проектирование и монтаж вент...
Страница 27 - 0 МОНТАЖ ФРЕОНОВЫХ ТРУБОК; Не допускается замятие трубки в сечении.
26 РУКОВОДСТВО ПО УСТАНОВКЕ И ЭКСПЛУАТАЦИИ 10 МОНТАЖ ФРЕОНОВЫХ ТРУБОК • Все операции по монтажу трубок должны проводиться с использованием специальныхинструментов и приспособлений. • Перед началом монтажа необходимо проверить размер трубок и тщательно просчитатьдлину трассы. • Внутренняя поверхность...
Страница 28 - Монтажное отверстие в стене
27 РУКОВОДСТВО ПО УСТАНОВКЕ И ЭКСПЛУАТАЦИИ • При необходимос ти проделайте отверс тие в с тене для прокладывания трассымежблочного соединения в соответствии с рисунком 10.1. Монтажное отверстие в стене • Для удобства подключения соединительных трубок используются специальныеотводы (фитинги) • При по...
Страница 29 - трубка должны быть оберну ты монтажной липкой лентой; 1 Подключение кабелей электропитания
28 РУКОВОДСТВО ПО УСТАНОВКЕ И ЭКСПЛУАТАЦИИ Модель FGR20/BNa-M FGR25/СNa-M FGR30/BNa-M FGR40/BNa-M Количество фре-она д ля доза-правки, г/м 54 54 110 170 • Если наружный блок установлен выше внутреннего, то при перепаде высот междублоками более 7 м, необходимо через каждые 6 м на газовой трубе устана...
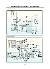
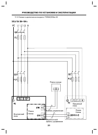
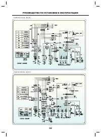
Страница 33 - 2 СХЕМЫ ЭЛЕКТРИЧЕСКИЕ БЛОКОВ
32 РУКОВОДСТВО ПО УСТАНОВКЕ И ЭКСПЛУАТАЦИИ 12 СХЕМЫ ЭЛЕКТРИЧЕСКИЕ БЛОКОВ F G ( R ) 2 0 /B N a - M ( I ) ~3ф/380-415В/50Гц F G ( R ) 2 5 /C N a - M ( I ) , F G ( R ) 3 0 /B N a - M ( I ) ~3ф/380-415В/50Гц