Генераторы Hyundai DHY 34KSE - инструкция пользователя по применению, эксплуатации и установке на русском языке. Мы надеемся, она поможет вам решить возникшие у вас вопросы при эксплуатации техники.
Если остались вопросы, задайте их в комментариях после инструкции.
"Загружаем инструкцию", означает, что нужно подождать пока файл загрузится и можно будет его читать онлайн. Некоторые инструкции очень большие и время их появления зависит от вашей скорости интернета.

П
Р
И
Л
О
Ж
Е
Н
И
Е
А
Г
Е
Н
ЕР
А
Т
О
Р
Н
А
Я
У
С
Т
А
Н
О
В
К
А
Ф
У
Н
Д
А
М
Е
Н
Т
У
С
Т
А
Н
О
В
К
И
З
А
З
О
Р
У
Р
О
В
Е
Н
Ь
З
Е
М
Л
И
П
Е
С
Ч
А
Н
Ы
Й
С
Л
О
Й
И
Г
А
Л
Ь
К
А
200
М
М
П
Р
И
М
Е
Ч
А
Н
И
Я
:
Licensed by
Hyundai Corporation
Korea
П рилож ения
Licensed by
Hyundai Corporation
Korea
П рилож ения
64
Содержание
- 3 DHY; Р асш иф ровка обозначений:; Licensed by
- 4 HYUNDAI; Предисловие
- 5 Технические
- 9 Д лительная эксплуатация; H Y U N DA I; Аварийное питание
- 10 О бщ ий вид; П анель управления
- 12 С оставны е; бесщ еточны й тип генератора и вы сокое; С истем а охлаж дения; Д л я о хл а ж д е н и я д в и га те л я и с п о л ьзуе тс я; Э лектрическая систем а; Э лектрическая систем а двигателя – это 12 вольт,; С оединение; Д вигатель и генератор перем енного тока плотно
- 13 Д ви гате л ь и ге н е р ато р п е р е м е н н о го то ка
- 14 Д и зельная электр останц и я; (опционально для дизельной
- 15 Также кожух является ограждающей конструкцией.; Д ругие ф ункции; П о м и м о уп о м я н уты х в ы ш е ко м п о н е н то в ,
- 16 И нф орм ация
- 18 О писание
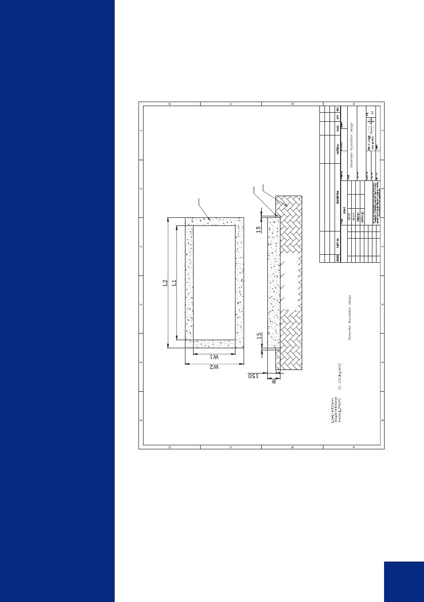
- 21 Установка; П равильная установка электростанции; Транспортировка; В о врем я поставки, необход им о обеспечить; К онструкция для ф ундам ента; Ф унд ам ент, и спользуем ы й д ля установки и
- 22 П ри заливке бетонного ф ундам ента необходим о
- 23 Установка генератора вы полняется в зависим ости
- 24 Генератор с кож ухом м ож ет работать на откры том; Установка дизельной электростанции; В ы бор м еста установки генератора
- 25 Д ля со зд ани я кр ы ш ки нап р авлени я п о то ка
- 26 П р и нор м альны х условиях, объем а возд уха,
- 27 П е р е гр узка п р о ти во д а вл е н и я в тр а кте
- 28 долж но бы ть как м ож но ближ е к дизель; Ум еньш ение ш ум а
- 29 О хлаж даю щ ая ж идкость
- 30 . З ам ена охлаж даю щ ей ж идкости
- 31 . З аполнение охлаж даю щ ей ж идкости
- 32 П рим ечание
- 33 CI – 4; Топливная систем а; . HYUNDAI POWER PRODUCTS
- 34 BOCLE
- 36 Установка топливного бака
- 37 Потребление топлива; Дизельное топливо играет значительную роль в; Система управления; Электростанция имеет панель управления. В
- 38 Стандартная конфигурация генератора включает
- 39 Электрическое подключение, обслуживание и
- 40 Рама генератора должна быть подключена к земле.; Система распределения мощности; В дизельном генераторе, для распределения
- 41 Р абота; П роверка перед началом работы; З апуск дизель генератора; П редварительны й разогрев
- 42 П редупреж дение; Р абота электростанции
- 43 Аварийная остановка; Р егулярное обслуж ивание электро-
- 45 Р абота с панелью управлениягенератора
- 46 В ведение в панель управления
- 47 . С и с те м а у п р а в л е н и я ге н е р а то р н о й; Д ля управления и м ониторинга генераторной; П ульт оператора
- 48 К нопки дисплея и элем енты управления
- 49 О сновны е ф ункции
- 50 D. Аварийное предупреж дение
- 51 С труктура окон и страниц дисплея; О то б р а ж а е м а я и н ф о р м а ц и я с тр уктур н о
- 55 П еред началом использования ATS вним ательно
- 56 Э тап 2
- 57 Автом атический статус работы .
- 58 Техническое
- 60 З апись; Р еглам ент техни ческого обслуж и -; осущ ествляется только после полной остановки!; П ри каж дом запуске и после каж ды х 8-м и
- 61 Ч ерез 50 первы х часов работы :
- 62 Каж ды е 500 часов работы (не реж е 1-го раза в
- 75 С ервисная












