Генераторы EuroPower EPS 113 TDE - инструкция пользователя по применению, эксплуатации и установке на русском языке. Мы надеемся, она поможет вам решить возникшие у вас вопросы при эксплуатации техники.
Если остались вопросы, задайте их в комментариях после инструкции.
"Загружаем инструкцию", означает, что нужно подождать пока файл загрузится и можно будет его читать онлайн. Некоторые инструкции очень большие и время их появления зависит от вашей скорости интернета.

50
27
32
80
329
220
90
1380
176
680
153
90
681
575
138
508
640
33,5
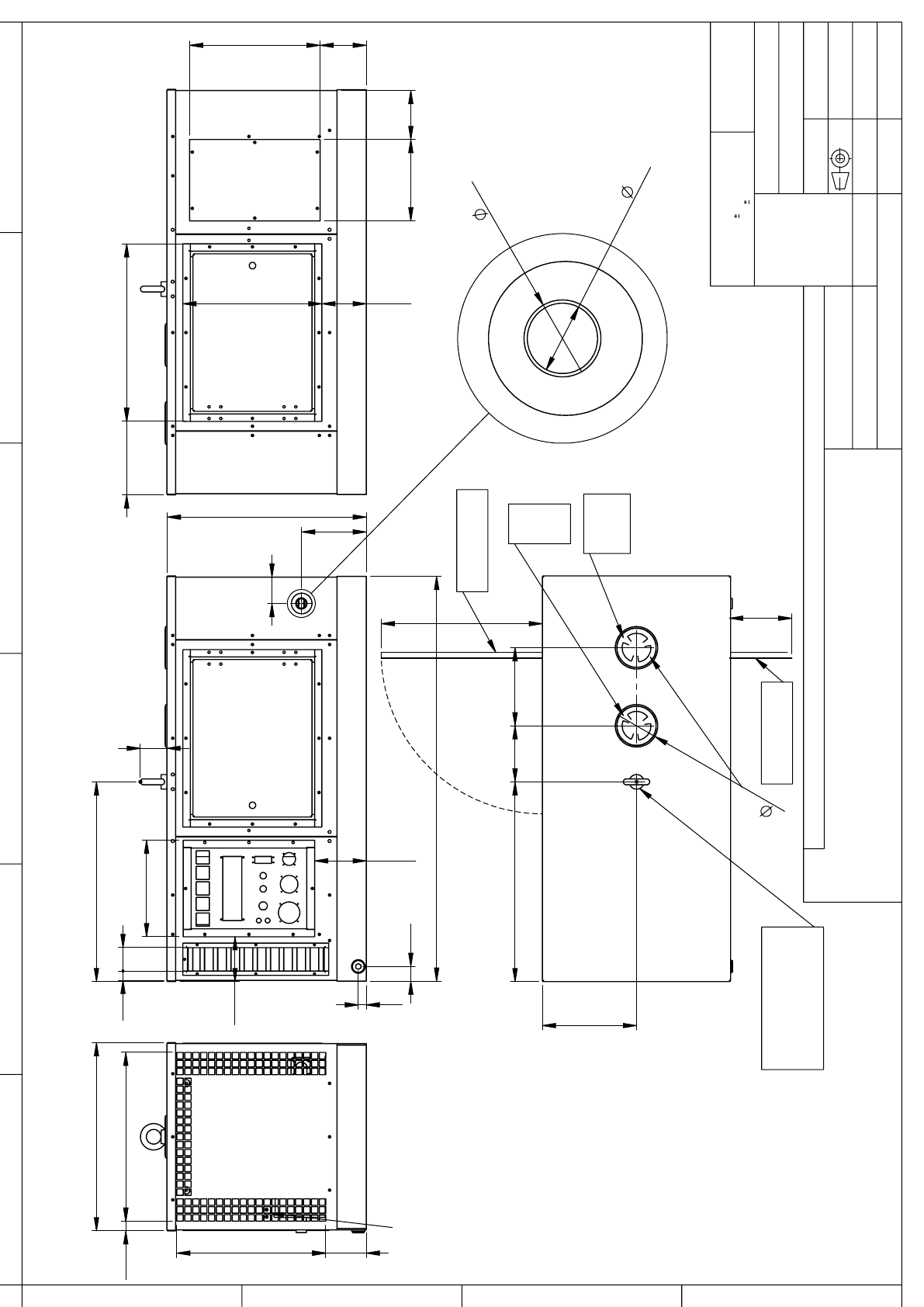
LUCHTUITLAATROOSTER GRILLE D'ÉVACUATION D'AIR AIR OUTLET GRID GITTER FÜR ABLUFT
266
320
144
681
191
550
550
WATER EAU WASSER
OLIE HUILE OIL ÖL
HIJSOOG OEILLET DE LEVAGE LIFTING EYE HEBEÖSE
DEUR / PORTE DOOR / TÜR
DEUR / PORTE DOOR / TÜR
605
151
474
167,5
277
157,5
445
251
d=
32
D=
35
DETAIL A SCALE 1 : 2
Maten in mm. / Dimensions in mm. / Maße in mm. / Dimens. en mm.
BOVENAANZICHT VUE DE DESSUS TOP VIEW ANSICHT VON OBEN
ZIJAANZICHT (ZIJDE DIESELPOMP) CÔTÉ POMPE D'ALIMENTATION SIDE VIEW (FUEL PUMP SIDE) SEITENANSICHT (SEITE DIESELPUMPE)
ZIJAANZICHT (UITLAATZIJDE) CÔTÉ D'ÉCHAPPEMENT SIDE VIEW (EXHAUST SIDE) SEITENANSICHT (AUSPUFFSEITE)
1mm
1°
REMARKS:
TOL. ANGULAR:
TOL. LINEAR:
951011313
ART.NR.:
EUROPOWER
Generators
CUSTOMER:
-
TITLE:
-
-
OD.NR.:
00
REV.NR.:
-
26/11/2008
SENT ON:
REVISED ON:
SH
MH
MH
DESIGN:
DRAWN:
REVISED:
APPV'D:
UNLESS OTHERWISE SPECIFIED: DIMENSIONS ARE IN MILLIMETERS
DEBUR AND BREAK SHARP EDGES
MATERIAL:
DIRECTORY:
SCALE:1:15
SHEET 1 OF 2
A4
4
1
3
2
A
B
C
D
5
6
EPS133TDE - EPS123DE NEW BOY (D902)
-
