Генераторы EuroPower EP 14 TDE - инструкция пользователя по применению, эксплуатации и установке на русском языке. Мы надеемся, она поможет вам решить возникшие у вас вопросы при эксплуатации техники.
Если остались вопросы, задайте их в комментариях после инструкции.
"Загружаем инструкцию", означает, что нужно подождать пока файл загрузится и можно будет его читать онлайн. Некоторые инструкции очень большие и время их появления зависит от вашей скорости интернета.

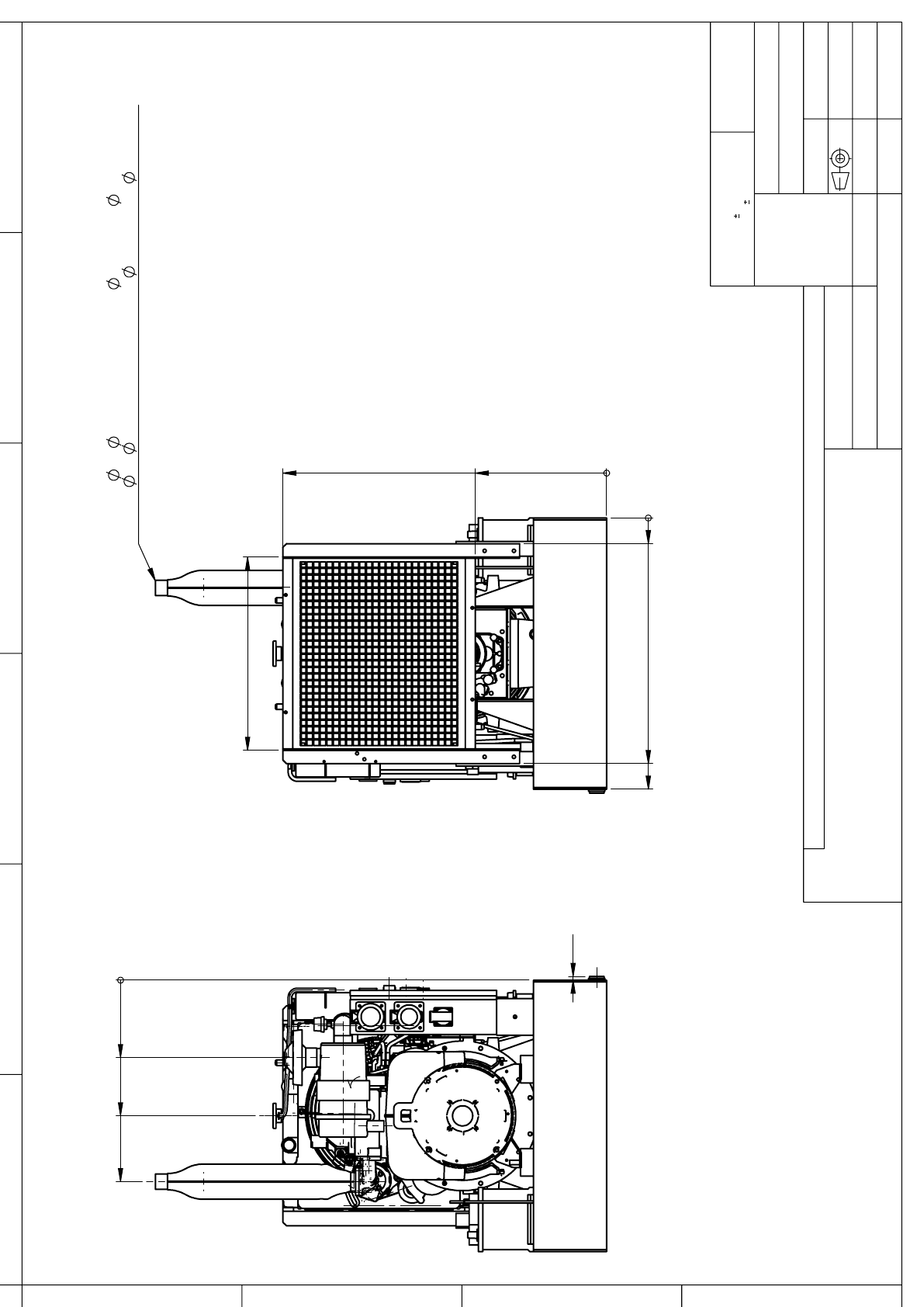
10
0
211,2
370
549,5
528
0
358,5
883,5
0
70
670
740
BINNEN
/
INTÉRIEUR / INSIDE
/ INNEN
= 37mm
BUITEN
/
EXTÉRIEUR / OUTSIDE
/ AUSSEN
= 43mm
1mm
1°
REMARKS:
TOL. ANGULAR:
TOL. LINEAR:
981112003
ART.NR.:
EUROPOWER
Generators
CUSTOMER:
-
TITLE:
-
-
OD.NR.:
04
REV.NR.:
-
25/05/2011
SENT ON:
REVISED ON:
VV/SH
MH
MH
HZ
DESIGN:
DRAWN:
REVISED:
APPV'D:
UNLESS OTHERWISE SPECIFIED: DIMENSIONS ARE IN MILLIMETERS
DEBUR AND BREAK SHARP EDGES
MATERIAL:
DIRECTORY:
SCALE:1:12
SHEET 3 OF 4
A4
4
1
3
2
A
B
C
D
5
6
INBOUWMATEN - DIMENSIONS
GENERALES - MAIN DIMENSIONS -
EINBAU-ABMESSUNGEN EP20TDE KU/LS
-
