Генераторы EuroPower EP 14 TDE - инструкция пользователя по применению, эксплуатации и установке на русском языке. Мы надеемся, она поможет вам решить возникшие у вас вопросы при эксплуатации техники.
Если остались вопросы, задайте их в комментариях после инструкции.
"Загружаем инструкцию", означает, что нужно подождать пока файл загрузится и можно будет его читать онлайн. Некоторые инструкции очень большие и время их появления зависит от вашей скорости интернета.

429
385
13
500
740
120
4 x
14
365
770
1500
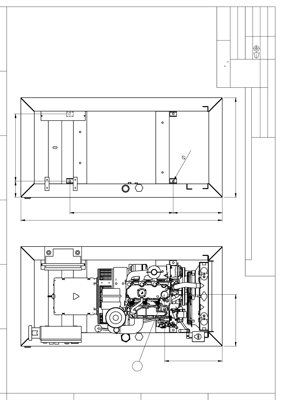
BEVESTIGINGSGATEN
TROUS DE FIXATION
FIXATION HOLES
BEVESTIGUNGSLÖCHER
1mm
1°
REMARKS:
TOL. ANGULAR:
TOL. LINEAR:
981111101
ART.NR.:
EUROPOWER
Generators
CUSTOMER:
-
TITLE:
-
-
OD.NR.:
00
REV.NR.:
-
03/11/2009
SENT ON:
REVISED ON:
SH/MH
-
DP
DP
DESIGN:
DRAWN:
REVISED:
APPV'D:
UNLESS OTHERWISE SPECIFIED: DIMENSIONS ARE IN MILLIMETERS
DEBUR AND BREAK SHARP EDGES
MATERIAL:
DIRECTORY:
SCALE:1:10
SHEET 4 OF 4
A4
4
1
3
2
A
B
C
D
5
6
INBOUWMATEN - DIMENSIONS
GÉNÉRALES - MAIN DIMENSIONS - EINBAU-ABMESSUNGEN EP11DE
-
