Фильтры для воды Аквафор Комплект повышения давления (100 GPD) - инструкция пользователя по применению, эксплуатации и установке на русском языке. Мы надеемся, она поможет вам решить возникшие у вас вопросы при эксплуатации техники.
Если остались вопросы, задайте их в комментариях после инструкции.
"Загружаем инструкцию", означает, что нужно подождать пока файл загрузится и можно будет его читать онлайн. Некоторые инструкции очень большие и время их появления зависит от вашей скорости интернета.
Загружаем инструкцию

9
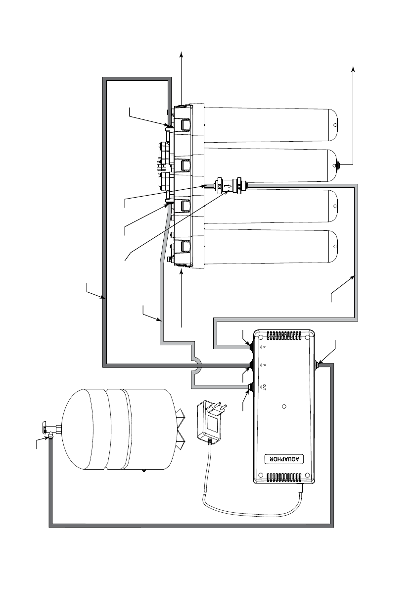
Рисунок 3. Сх
ема по
дклю
чения КПД к во
доо
чистит
елю Аквафор ОСМО Крист
алл
7
9
2в
2а
3
5
2б
1
6
8
11
10
Водопровод холодного водоснабжения
Дренаж
Чистая вода
Содержание
- 3 Меры предосторожности при использовании КПД с блоком питания; Определите удобное место расположения КПД.
- 4 ПОДКЛЮЧЕНИЕ КПД; углублении трубки JG система будет неработоспособна.; ПОДКЛЮЧЕНИЕ КПД К ВОДООЧИСТИТЕЛЮ
- 5 ВНИМАНИЕ! Все подсоединяемые трубки должны проходить без изло-; ПОДКЛЮЧЕНИЕ КПД К АВТОМАТУ ПИТЬЕВОЙ ВОДЫ
- 6 • Сбросьте давление в DWM в соответствии с паспортом на ваш DWM.
- 8 СРОКИ СЛУЖБЫ И ГАРАНТИИ; Изготовитель освобождается от ответственности в случаях:; ТАБЛИЦА НЕИСПРАВНОСТЕЙ
- 11 Рисунок 5. Схема подключения КПД
- 12 Рисунок 6. Схема подключения КПД
- 14 ема по
- 15 ТАЛОН НА ГАРАНТИЙНЫЙ РЕМОНТ; Комплект повышения давления; СРОК ГАРАНТИИ – 1 ГОД СО ДНЯ ПРОДАЖИ; СВИДЕТЕЛЬСТВО ОБ УСТАНОВКЕ
- 16 Сервис и поддержка покупателей
Характеристики
Остались вопросы?Не нашли свой ответ в руководстве или возникли другие проблемы? Задайте свой вопрос в форме ниже с подробным описанием вашей ситуации, чтобы другие люди и специалисты смогли дать на него ответ. Если вы знаете как решить проблему другого человека, пожалуйста, подскажите ему :)
Часто задаваемые вопросы
Как посмотреть инструкцию к Аквафор Комплект повышения давления (100 GPD)?
Необходимо подождать полной загрузки инструкции в сером окне на данной странице
Руководство на русском языке?
Все наши руководства представлены на русском языке или схематично, поэтому вы без труда сможете разобраться с вашей моделью
Как скопировать текст из PDF?
Чтобы скопировать текст со страницы инструкции воспользуйтесь вкладкой "HTML"