Ferroli Domiproject C24 D - Инструкция по эксплуатации

Ferroli Domiproject C24 D

Котел Ferroli Domiproject C24 D - инструкция пользователя по применению, эксплуатации и установке на русском языке. Мы надеемся, она поможет вам решить возникшие у вас вопросы при эксплуатации техники.

Если остались дополнительные вопросы — свяжитесь с нами через контактную форму.

1 Страница 1
2 Страница 2
3 Страница 3
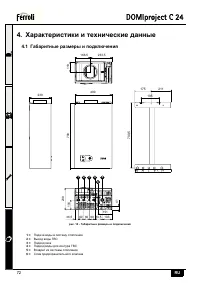
4 Страница 4
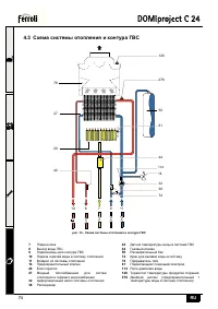
5 Страница 5
6 Страница 6
7 Страница 7
8 Страница 8
9 Страница 9
10 Страница 10
11 Страница 11
12 Страница 12
13 Страница 13
14 Страница 14
15 Страница 15
16 Страница 16
17 Страница 17
18 Страница 18
19 Страница 19
20 Страница 20
21 Страница 21
22 Страница 22
Страница: / 22
Загрузка инструкции

Инструкция
по эксплуатации

Газовый настенный котел Ferroli Domiproject C24 D

Цены на товар на сайте:

http://kotly.vseinstrumenti.ru/gazovye/nastennye/ferroli/domiproject__c24_d/

Отзывы и обсуждения товара на сайте:

http://kotly.vseinstrumenti.ru/gazovye/nastennye/ferroli/domiproject__c24_d/#tab-Responses

"Загрузка инструкции" означает, что нужно подождать пока файл загрузится и можно будет его читать онлайн. Некоторые инструкции очень большие и время их появления зависит от вашей скорости интернета.

Характеристики

Другие модели - Котлы Ferroli

Все котлы Ferroli