Ferroli DIVABEL 18 с закрытой камерой сгорания - Инструкция по эксплуатации

Ferroli DIVABEL 18 с закрытой камерой сгорания

Котел Ferroli DIVABEL 18 с закрытой камерой сгорания - инструкция пользователя по применению, эксплуатации и установке на русском языке. Мы надеемся, она поможет вам решить возникшие у вас вопросы при эксплуатации техники.

Если остались дополнительные вопросы — свяжитесь с нами через контактную форму.

1 Страница 1
2 Страница 2
3 Страница 3
4 Страница 4
5 Страница 5
6 Страница 6
7 Страница 7
8 Страница 8
9 Страница 9
10 Страница 10
11 Страница 11
12 Страница 12
13 Страница 13
14 Страница 14
15 Страница 15
16 Страница 16
Страница: / 16
Загрузка инструкции

DIVABEL F10/F13/F16/F18/F20/

F24

10/24

740

440

235

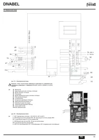
Габаритные размеры котлов

ТЕХНИЧЕСКИЙ ПАСПОРТ ИЗДЕЛИЯ. РУКОВОДСТВО

НАСТЕННЫЙ ГАЗОВЫЙ ДВУХКОНТУРНЫЙ КОТЕЛ

ПО МОНТАЖУ, ЭКСПЛУАТАЦИИ И ТЕХОБСЛУЖИВАНИЮ

eco/comfort

reset

2

75

С°

eco

3

4

1

0

DIVABEL 10/24

ДАТА ИЗГОТОВЛЕНИЯ

"Загрузка инструкции" означает, что нужно подождать пока файл загрузится и можно будет его читать онлайн. Некоторые инструкции очень большие и время их появления зависит от вашей скорости интернета.

Характеристики

Другие модели - Котлы Ferroli

Все котлы Ferroli