Эван В1-21 13172 - Инструкция по эксплуатации

Эван В1-21 13172

Водонагреватель Эван В1-21 13172 - инструкция пользователя по применению, эксплуатации и установке на русском языке. Мы надеемся, она поможет вам решить возникшие у вас вопросы при эксплуатации техники.

Если остались дополнительные вопросы — свяжитесь с нами через контактную форму.

1 Страница 1
2 Страница 2
3 Страница 3
4 Страница 4
5 Страница 5
6 Страница 6
7 Страница 7
8 Страница 8
9 Страница 9
10 Страница 10
Страница: / 10

Содержание:

  • Страница 2 – Наименование; Таблица 1; МПа
  • Страница 3 – водонагревателя; 4 Отметка о проведенных работах
  • Страница 4 – Устройство водонагревателя; сигнальной ламп
  • Страница 5 – аварийный несамовозвратный; TERMOSET; Для предотвращения попадания брызг на клеммник подключение
  • Страница 6 – РЕ; автоматического
  • Страница 7 – о р г а н и з а ц и и ,; Монтаж; 1 Свидетельство о приемке и продаже
  • Страница 8 – н е о бхо д и м о в п о м е щ е н и я х с; В соответствии с рисунком 1,; П о д к л ю ч е н и е; Принципиальная схема водопроводной сети; О б р а т и тс я в; 0 Возможные неисправности и методы их устранения*; Рисунок 3 - Вид сзади; Название; Таблица 4
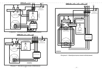
  • Страница 9 – Рисунок 5. Электрическая схема подключения; СЕТЬ
  • Страница 10 – Рисунок 6. Электрическая схема подключения; Рисунок 7. Электрическая схема подключения; ПАНЕЛЬ; Рисунок 8. Электрическая схема подключения; ПАНЕЛЬ
Загрузка инструкции

ЛИТЯ. 681951.003РЭ

1 Общие указания

1.1 Электрические проточные водонагреватели ЭВАН-В1 -6; -7,5; -9;

-12; -15; -18; -21; -24; -30 УХЛ4 ТУ 3468-002-97567311-06 (в дальнейшем
водонагреватель) предназначены для горячего водоснабжения жилых,
бытовых, производственных, сельскохозяйственных и других помещений.

Водонагреватель

предназначен для эксплуатации в помещениях

(объёмах)

0

при температуре окружающего воздуха от +35 до +1

С и

0

относительной влажности воздуха до 80 % при +25 С.

1.2 Конструкция водонагревателя постоянно совершенствуется, по-

этому возможны некоторые изменения, не отраженные в настоящем
Руководстве и не ухудшающие эксплуатационные качества водонагре-вателя.

1.3 Водонагреватель до подачи в торговый зал или к месту выдачи

покупки должен пройти предпродажную подготовку, которая включает:
распаковку водонагревателя, удаление с него заводской смазки, пыли;
о с м о т р в о д о н а г р е в а т е л я ; п р о в е р к у к о м п л е к т н о с т и , к а ч е с т в а
водонагревателя, наличия необходимой информации о водонагревателе и его
изготовителе.

1.4 По требованию потребителя он должен быть ознакомлен с уст-

ройством и действием водонагревателя, который должен демонстри-роваться
в собранном, технически исправном состоянии.

1.5 Лицо, осуществляющее продажу, по требованию потребителя

проверяет в его присут ствии внешний вид водонагревателя, его
комплектность, наличие относящегося к нему Руководства по эксплуатации,
правильность цены.

1.6 При передаче водонагревателя потребителю одновременно пере-

дается и его Руководство по эксплуатации (с указанием в нем даты и
места продажи).

Вместе с водонагревателем потребителю передается также товарный

чек, в котором указываются наименование водонагревателя и продавца,
дата продажи и цена водонагревателя, а также подпись лица, непос-
редственно осуществляющего продажу.

1.7 Продавец

обязан предоставить

потребителю

информацию об

организациях, выполняющих монтаж и подключение водонагревателя.
Монтаж и подключение водонагревателя производится за отдельную оплату.

2. Технические данные

2.1 По степени защиты от поражения электрическим током водо-

нагреватель соответствует 1 классу по ГОСТ

МЭК 60335-1.

2.2 Электропитание водонагревателя осуществляется от электри-

ческой сети переменного тока частотой 50 Гц, напряжением 380/220 В с
глухозаземленной нейтралью.

2.3 Основные технические данные водонагревателей приведены в

таблицах 1 и 2.

- 1 -

- 20 -

"Загрузка инструкции" означает, что нужно подождать пока файл загрузится и можно будет его читать онлайн. Некоторые инструкции очень большие и время их появления зависит от вашей скорости интернета.

Краткое содержание

Страница 2 - Наименование; Таблица 1; МПа

- 2 - - 19 - Характеристика выполненных работ Адрес, № лицензии , подпись и печать исполнителя Дата Наименование Ед.изм. Значение Номинальная производительность при разнице температур между 0 входом и выходом 35 С , не более: ЭВАН-В1-30 85 + 6 0,6 0,7+0,03 Номинальное давление воды в водонагре-вател...

Страница 3 - водонагревателя; 4 Отметка о проведенных работах

- 3 - - 18 - Характеристика выполненных работ Адрес, № лицензии , подпись и печать исполнителя Дата Продолжение таблицы 1 Наименование Ед.изм. Значение кВт 24 Расход электроэнергии за 1 час работы , не более: водонагревателя ЭВАН-В1 -30 кг Масса, не более: мм 650х255х180 Габаритные размеры, не более...

Страница 4 - Устройство водонагревателя; сигнальной ламп

- 4 - 4 Устройство водонагревателя 4.1 Для подключения водонагревателя и ремонтно-профилактических работ необходимо снять кожух согласно рис.1, 1а, 1б. Для этого следует утопить надавливанием до щелчка центральные части крепежных клипс (1) и извлечь их, извлечь панель управления (2) из окна, разверн...

Характеристики

Другие модели - Водонагреватели Эван

Все водонагреватели Эван