Эван В1-30 13180 - инструкции и руководства

model-name

Водонагреватель Эван В1-30 13180 - инструкции пользователя по применению, эксплуатации и установке на русском языке читайте онлайн в формате pdf

1 Page 1
2 Page 2
3 Page 3
4 Page 4
5 Page 5
6 Page 6
7 Page 7
8 Page 8
9 Page 9
10 Page 10

Краткое содержание

Страница 2 - Наименование; Таблица 1; МПа

- 2 - - 19 - Характеристика выполненных работ Адрес, № лицензии , подпись и печать исполнителя Дата Наименование Ед.изм. Значение Номинальная производительность при разнице температур между 0 входом и выходом 35 С , не более: ЭВАН-В1-30 85 + 6 0,6 0,7+0,03 Номинальное давление воды в водонагре-вател...

Страница 3 - водонагревателя; 4 Отметка о проведенных работах

- 3 - - 18 - Характеристика выполненных работ Адрес, № лицензии , подпись и печать исполнителя Дата Продолжение таблицы 1 Наименование Ед.изм. Значение кВт 24 Расход электроэнергии за 1 час работы , не более: водонагревателя ЭВАН-В1 -30 кг Масса, не более: мм 650х255х180 Габаритные размеры, не более...

Страница 4 - Устройство водонагревателя; сигнальной ламп

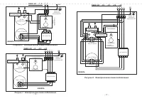
- 4 - 4 Устройство водонагревателя 4.1 Для подключения водонагревателя и ремонтно-профилактических работ необходимо снять кожух согласно рис.1, 1а, 1б. Для этого следует утопить надавливанием до щелчка центральные части крепежных клипс (1) и извлечь их, извлечь панель управления (2) из окна, разверн...

Эван Водонагреватели Инструкции