Страница 2 - Наименование; Таблица 1; МПа
- 2 - - 19 - Характеристика выполненных работ Адрес, № лицензии , подпись и печать исполнителя Дата Наименование Ед.изм. Значение Номинальная производительность при разнице температур между 0 входом и выходом 35 С , не более: ЭВАН-В1-30 85 + 6 0,6 0,7+0,03 Номинальное давление воды в водонагре-вател...
Страница 3 - водонагревателя; 4 Отметка о проведенных работах
- 3 - - 18 - Характеристика выполненных работ Адрес, № лицензии , подпись и печать исполнителя Дата Продолжение таблицы 1 Наименование Ед.изм. Значение кВт 24 Расход электроэнергии за 1 час работы , не более: водонагревателя ЭВАН-В1 -30 кг Масса, не более: мм 650х255х180 Габаритные размеры, не более...
Страница 4 - Устройство водонагревателя; сигнальной ламп
- 4 - 4 Устройство водонагревателя 4.1 Для подключения водонагревателя и ремонтно-профилактических работ необходимо снять кожух согласно рис.1, 1а, 1б. Для этого следует утопить надавливанием до щелчка центральные части крепежных клипс (1) и извлечь их, извлечь панель управления (2) из окна, разверн...
Страница 5 - аварийный несамовозвратный; TERMOSET; Для предотвращения попадания брызг на клеммник подключение
- 5 - 1 - котел; 2 - выходной пат рубок; 3 - входной пат рубок; 4 - датчик терморегулятора; 5 - аварийный несамовозвратный термовыключател ь ; 6 - блок ТЭН; 7 - панель; 8 - зажим заземления; 9 - кронштейн; 1 0 - клеммник; 1 1 - пускатель; 1 2 - предохранитель цепи управления ; 13 - панель управления...
Страница 6 - РЕ; автоматического
- 6 - - 15 - 5 Требования безопасности Внимание! Качество воды, протекающей через водонагреватель, должно соответствовать требованиям СанПиН 2.1.4.1074.01. 5.1 Не производите сами разборку, техническое обслуживание и р е м о н т в о д о н а г р е в а т е л я . П р и о б н а р у ж е н и и в в о д о н...
Страница 7 - о р г а н и з а ц и и ,; Монтаж; 1 Свидетельство о приемке и продаже
- 7 - - отсутствии в нем воды (отсутствие воды в точке разбора).- наличии в водонагревателе замерзшей воды. 5.7 Запрещается эксплуатация водонагревателя без автоматического выключателя. 5.8 Запрещается эксплуатация водонагревателя во взрыво- и пожароопасных зонах. 5.9 Запрещается эксплуатация водона...
Страница 8 - н е о бхо д и м о в п о м е щ е н и я х с; В соответствии с рисунком 1,; П о д к л ю ч е н и е; Принципиальная схема водопроводной сети; О б р а т и тс я в; 0 Возможные неисправности и методы их устранения*; Рисунок 3 - Вид сзади; Название; Таблица 4
- 8 - - 13 - 9 Правила хранения и транспортирования 9.1 Х р а н и т ь н е о бхо д и м о в п о м е щ е н и я х с в о д о н а г р е в а т е л ь естественной вентиляцией, где колебания температуры и влажность воздуха существенно меньше, чем на открытом воздухе в районах с умеренным и 0 холодным климато...
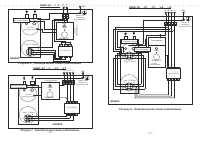
Страница 9 - Рисунок 5. Электрическая схема подключения; СЕТЬ
- 9 - ПАНЕЛЬ РЕ Блок с ТЭНом Рисунок 5. Электрическая схема подключения ЭВАН-В1 -6 Зажим для защитного проводника РЕ ПУСКАТЕЛЬ N А ПУ ЛЬ Т УПР АВ ЛЕНИЯ 1 3 5 2 4 6 Датчик терморегулятора НАГРЕВ ТЕМПЕРАТУРА СЕТЬ - 12 - 7.3 Окончание работы 7.3.1 По окончании работы переключите выключатель в по- СЕТЬ ...
Страница 10 - Рисунок 6. Электрическая схема подключения; Рисунок 7. Электрическая схема подключения; ПАНЕЛЬ; Рисунок 8. Электрическая схема подключения; ПАНЕЛЬ
Рисунок 6. Электрическая схема подключения - 10 - ПАНЕЛЬ РЕ Блок с ТЭНами ЭВАН-В1 -7,5 Зажим для защитного проводника РЕ ПУСКАТЕЛЬ N А ПУ ЛЬ Т УПР АВ ЛЕНИЯ 1 3 5 2 4 6 Датчик терморегулятора НАГРЕВ ТЕМПЕРАТУРА СЕТЬ Рисунок 7. Электрическая схема подключения ПАНЕЛЬ РЕ Блок с ТЭНами ЭВАН-В1 -9; -12; -...