Электропилы Bosch GKS 165 - инструкция пользователя по применению, эксплуатации и установке на русском языке. Мы надеемся, она поможет вам решить возникшие у вас вопросы при эксплуатации техники.
Если остались вопросы, задайте их в комментариях после инструкции.
"Загружаем инструкцию", означает, что нужно подождать пока файл загрузится и можно будет его читать онлайн. Некоторые инструкции очень большие и время их появления зависит от вашей скорости интернета.

Български |
173
Bosch Power Tools
1 609 92A 0LU | (1.8.14)
Външна система за прахоулавяне
Свържете шланга
31
с прахосмукачка (не е включена в
окомплектовката). Обзор на възможностите за включване
към различни прахосмукачки ще намерите в края на това
ръководство за експлоатация.
Електроинструментът може да бъде включен непосред-
ствено към контакта на универсална прахосмукачка на
Бош с модул за дистанционно задействане. При стартира-
нето на електроинструмента автоматично започва да ра-
боти и прахосмукачката.
Използваната прахосмукачка трябва да е пригодна за ра-
бота с обработвания материал.
Ако при работа се отделя особено вреден за здравето прах
или канцерогенен прах, използвайте специализирана пра-
хосмукачка.
Работа с електроинструмента
Режими на работа
Преди извършване на каквито и да е дейности по
електроинструмента изключвайте щепсела от за-
хранващата мрежа.
Регулиране на дълбочината на врязване
(вижте фиг. C)
Регулирайте дълбочината на рязане съобразно де-
белината на стената на обработвания детайл.
От об-
ратната страна на детайла дискът трябва да се подава на
разстояние, по-малко от една височина на зъба.
– Освободете застопоряващия лост
27
. За намаляване
на дълбочината на врязване отдалечете циркуляра от
основната плоча
14
, за увеличаване – приближете
циркуляра към основната плоча
14
. Установете жела-
ния размер на скалата за дълбочината на врязване. От-
ново затегнете застопоряващия лост
27
.
– Ако след освобождаване на застопоряващия лост
27
не
можете да промените докрай дълбочината на врязване,
издърпайте застопоряващия лост
27
от ръчния цирку-
ляр и го наклонете надолу. След това отпуснете засто-
поряващия лост
27
. Повторете тази операция, докато
желаната дълбочина на врязване може да бъде устано-
вена.
– Ако след затягане на застопоряващия лост
27
установе-
ната дълбочина на врязване не се фиксира достатъчно
здраво, издърпайте застопоряващия лост
27
от ръчния
циркуляр и го наклонете нагоре. След това отпуснете
застопоряващия лост
27
. Повторете тази операция, до-
като дълбочината на врязване се фиксира достатъчно
здраво.
Регулиране на ъгъла на скосяване
(GKS 55+ G / GKS 55+ GCE)
Най-добре е да поставите електроинструмента легнал на
челната страна на предпазния кожух
17
.
– Развийте винтовете с крилчата глава
8
и
15
. Наклонете
циркуляра настрани. На скалата
6
установете желания
размер. Отново затегнете винтовете с крилчата глава
8
и
15
.
Упътване:
При срезове под наклон дълбочината на среза
е по-малка от стойността, която се отчита по скалата
28
.
Регулиране на ъгъла на скосяване (GKS 165)
Най-добре е да поставите електроинструмента легнал на
челната страна на предпазния кожух
17
.
– Развийте винта с крилчата глава
8
. Наклонете циркуля-
ра настрани. Настройте желания наклон, като отчитате
по скалата
6
. Затегнете отново винта с крилчата глава
8
.
Упътване:
При срезове под наклон дълбочината на среза
е по-малка от стойността, която се отчита по скалата
28
.
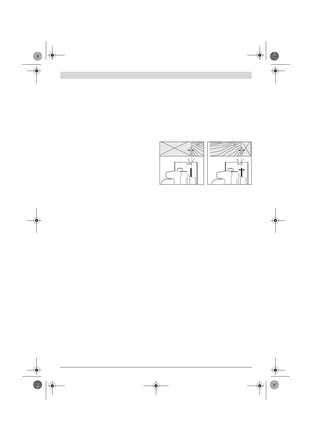
Маркировки за среза
Маркировката 0 °
10
показва позицията на режещия диск
при рязане под прав ъгъл. Маркировката 45 °
9
показва по-
зицията на режещия диск при рязане под наклон 45 °.
– За прецизно отрязване по размер поставете циркуляра
на детайла, както е показано на фигурата. Най-добре е
предварително да извършите пробен срез.
Пускане в експлоатация
Внимавайте за напрежението на захранващата мре-
жа! Напрежението на захранващата мрежа трябва
да съответства на данните, посочени на табелката на
електроинструмента. Уреди, обозначени с 230 V,
могат да бъдат захранвани и с напрежение 220 V.
Включване и изключване
– За
включване
на електроинструмента
първо
натисне-
те бутона за деблокиране на пусковия прекъсвач
3
и
след това
dнатиснете и задръжте пусковия прекъсвач
2
.
– За
изключване
на електроинструмента отпуснете пу-
сковия прекъсвач
2
.
Упътване:
Поради съображения за сигурност пусковият
прекъсвач
2
не може да бъде застопорен във включено по-
ложение и по време на работа трябва да бъде държан нати-
снат.
Предварителен избор на скоростта на въртене
(GKS 55+ GCE)
С потенциометъра за предварително установяване на ско-
ростта на въртене
1
можете да изменяте скоростта на вър-
тене съобразно конкретната дейност също и по време на
работа.
Необходимата скорост на въртене зависи от използвания
режещ лист и обработвания материал (вижте прегледа на
производствената гама режещи листове в края на това ръ-
ководство за експлоатация).
0
45
0
45
OBJ_BUCH-2175-001.book Page 173 Friday, August 1, 2014 2:12 PM
Содержание
- 137 Описание продукта и услуг; Применение по назначению
- 138 Технические данные
- 139 Заявление о соответствии; Сборка; Установка/смена пильного диска
- 140 Отсос пыли и стружки; Работа с инструментом; Режимы работы
- 141 Включение электроинструмента
- 142 Техобслуживание и сервис; Техобслуживание и очистка; Утилизация