Электропилы Bosch GKS 165 - инструкция пользователя по применению, эксплуатации и установке на русском языке. Мы надеемся, она поможет вам решить возникшие у вас вопросы при эксплуатации техники.
Если остались вопросы, задайте их в комментариях после инструкции.
"Загружаем инструкцию", означает, что нужно подождать пока файл загрузится и можно будет его читать онлайн. Некоторые инструкции очень большие и время их появления зависит от вашей скорости интернета.

132
| Magyar
1 609 92A 0LU | (1.8.14)
Bosch Power Tools
A sarkalószög beállítása (GKS 55+ G / GKS 55+ GCE)
A szerszám kicseréléséhez az elektromos kéziszerszámot a
legcélszerűbb a
17
védőburkolat homlokoldalára fektetni.
– Oldja ki a
8
és
15
szárnyascsavart. Forgassa el oldalra a fű-
részt. Állítsa be a
6
vágási mélységi skálán a kívánt mére-
tet. Húzza meg ismét szorosra a
8
és
15
szárnyascsavart.
Megjegyzés:
Sarokvágás esetén a vágási mélység kisebb,
mint a
28
vágási mélység skálán kijelzett érték.
A sarkalószög beállítása (GKS 165)
A szerszám kicseréléséhez az elektromos kéziszerszámot a
legcélszerűbb a
17
védőburkolat homlokoldalára fektetni.
– Oldja ki a
8
szárnyascsavart. Forgassa el oldalra a fűrészt.
Állítsa be a
6
vágási mélységi skálán a kívánt méretet. Húz-
za meg ismét szorosra a
8
szárnyascsavart.
Megjegyzés:
Sarokvágás esetén a vágási mélység kisebb,
mint a
28
vágási mélység skálán kijelzett érték.
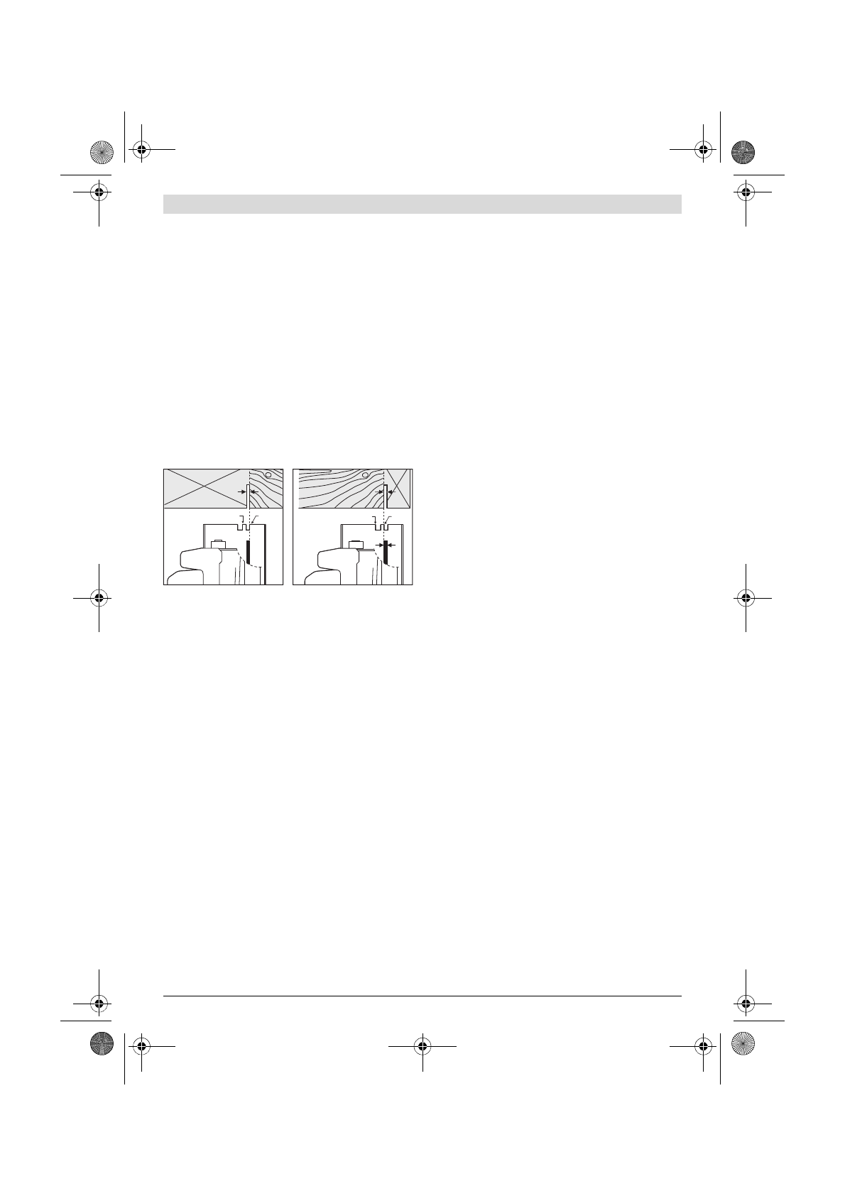
Vágási jelek
A 0 °
10
vágási jel a fűrészlapnak a derékszögű vágások esetén
elfoglalt helyzetét helyzetét jelzi. A 45 °
9
vágási jel a fűrész-
lapnak a 45 °-os vágások esetén elfoglalt helyzetét jelzi.
– Pontos méretrevágáshoz az ábrán látható módon helyezze
fel a körfűrészt a munkadarabra. Hajtson végre legalább
egy próbavágást.
Üzembe helyezés
Ügyeljen a helyes hálózati feszültségre! Az áramforrás
feszültségének meg kell egyeznie az elektromos kézi-
szerszám típustábláján található adatokkal. A 230 V-os
berendezéseket 220 V hálózati feszültségről is szabad
üzemeltetni.
Be- és kikapcsolás
– Az elektromos kéziszerszám
üzembe helyezéséhez
nyomja meg
először
a
3
bekapcsolás reteszelést, majd
ez-
után
nyomja be és tartsa benyomva a
2
be-/kikapcsolót.
– Az elektromos kéziszerszám
kikapcsolásához
engedje el a
2
be-/kikapcsolót.
Megjegyzés:
A
2
be-/kikapcsolót biztonsági meggondolások-
ból nem lehet tartós üzemhez bekapcsolt állapotban reteszel-
ni, hanem az üzemeltetés közben végig benyomva kell tartani.
A fordulatszám előválasztása (GKS 55+ GCE)
Az
1
fordulatszám előválasztó szabályozókerékkel a szüksé-
ges fordulatszám üzem közben is előválasztható.
A szükséges fordulatszám a felhasznált fűrészlaptól és a meg-
munkálásra kerülő anyagtól függ (lásd ezen Kezelési Utasítás
végén a fűrészlapok áttekintését).
Kifutó fék (GKS 55+ G / GKS 55+ GCE)
A berendezésbe beépített kifutás-fék megrövidíti a fűrészlap-
nak az elektromos kéziszerszám kikapcsolása utáni kifutási
idejét.
Indítási áram korlátozás (GKS 55+ GCE)
Az elektronikus felfutási árambehatárolás az elektromos kézi-
szerszám bekapcsolási teljesítményét korlátozza és így lehe-
tővé teszi annak egy 16 Amperes biztosítékról való üzemelte-
tését.
Konstantelektronika (GKS 55+ GCE)
A konstanselektronika az előre kiválasztott fordulatszámot az
üresjárattól a teljes terhelésig gyakorlatilag állandó szinten
tartja és egyenletes munkateljesítményt biztosít.
Munkavégzési tanácsok
Óvja meg a fűrészlapokat a lökésektől és ütésektől.
Egyenletes, nem túl erős nyomással tolja az elektromos kézi-
szerszámot a vágási irányba. A túl erős előtolás lényegesen
csökkenti a betétszerszámok élettartamát és az elektromos
kéziszerszám megrongálódásához vezethet.
A fűrészelési teljesítmény és a vágás minősége lényeges mér-
tékben függ a fűrészlap állapotától és a fogak alakjától. Ezért
csak éles és a megmunkálásra kerülő anyag tulajdonságainak
megfelelő fűrészlapokat használjon.
Fa fűrészelése
A fűrészlapot a fafajtának, a fa minőségének és annak megfe-
lelően kell kiválasztani, hogy hosszirányú, vagy harántvágá-
sokra van szükség.
Fenyőfa hosszirányú fűrészelése esetén hosszú, spirális alakú
forgács keletkezik.
A bükk- és tölgyfaporok különösen ártalmasak az egészségre,
ezért csak porelszívással dolgozzon.
Színesfémek fűrészelése
Megjegyzés:
Csak a színesfémek megmunkálására alkalmas,
éles fűrészlapot használjon. Ez tiszta vágáshoz vezet és meg-
akadályozza a fűrészlap beékelődését.
Vezesse rá a bekapcsolt elektromos kéziszerszámot a munka-
darabra és óvatosan kezdje meg a fűrészelést. Ezután dolgoz-
zon kismértékű előtolással, megszakítás nélkül tovább.
A profilok vágását mindig a keskenyebb oldalon, U-profilok
esetében sohasem a nyitott oldalon kezdje. A hosszú profilo-
kat támassza alá, hogy elkerülje a fűrészlap beékelődését és
az elektromos kéziszerszám visszarugását.
Fűrészelés a párhuzamos ütköző használatával
(lásd a „D” ábrát)
A
11
párhuzamos ütköző a munkadarab széle mentén tesz le-
hetővé precíz vágásokat; ezen kívül ezzel azonos méretű sávo-
kat is ki lehet vágni.
– Lazítsa ki a
7
szárnyascsavart és tolja át a
11
párhuzamos
ütköző skáláját a
14
alaplap megvezetésén. Állítsa be a
skálán a kívánt vágási szélességet a megfelelő
10
, illetve
9
vágási jelnél, lásd az alábbi fejezetet: „Vágási jelek”. Húzza
meg ismét szorosra a
7
szárnyascsavart.
0
45
0
45
OBJ_BUCH-2175-001.book Page 132 Friday, August 1, 2014 2:12 PM
Содержание
- 137 Описание продукта и услуг; Применение по назначению
- 138 Технические данные
- 139 Заявление о соответствии; Сборка; Установка/смена пильного диска
- 140 Отсос пыли и стружки; Работа с инструментом; Режимы работы
- 141 Включение электроинструмента
- 142 Техобслуживание и сервис; Техобслуживание и очистка; Утилизация