Electrolux FSB 35 Mi - Инструкция по эксплуатации

Electrolux FSB 35 Mi

Котел Electrolux FSB 35 Mi - инструкция пользователя по применению, эксплуатации и установке на русском языке. Мы надеемся, она поможет вам решить возникшие у вас вопросы при эксплуатации техники.

Если остались дополнительные вопросы — свяжитесь с нами через контактную форму.

1 Страница 1
2 Страница 2
3 Страница 3
4 Страница 4
5 Страница 5
6 Страница 6
7 Страница 7
8 Страница 8
9 Страница 9
10 Страница 10
11 Страница 11
12 Страница 12
13 Страница 13
14 Страница 14
15 Страница 15
16 Страница 16
17 Страница 17
18 Страница 18
19 Страница 19
20 Страница 20
21 Страница 21
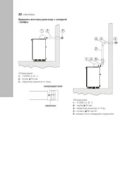
22 Страница 22
23 Страница 23
24 Страница 24
25 Страница 25
26 Страница 26
27 Страница 27
28 Страница 28
Страница: / 28

Содержание:

  • Страница 2 – electrolux; Содержание
  • Страница 3 – газовые котлы; Внутренняя структура котла; Идентификация котла
  • Страница 4 – Циркуляционные насосы; чтобы получить доступ к оси ротора
  • Страница 5 – Технические характеристики
  • Страница 7 – Панель управления
  • Страница 8 – Заполнение системы отопления; Требования к воде, используемой в качестве
  • Страница 9 – Слив отопительной системы; Включение котла и его работа; Проверка котла перед первым включением
  • Страница 11 – Активация режима приготовления ГВС
  • Страница 12 – Выключение котла на долгое время; Техническое обслуживание
  • Страница 15 – Монтаж котла; Распаковка
  • Страница 16 – – подача отопления 1”
  • Страница 17 – Принципиальные схемы работы; FE
  • Страница 19 – Программирование котла; Заводские и эксплуатационные установки; Параметр; Изменение значения параметра
  • Страница 20 – Переход на другой тип газа
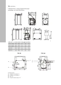
  • Страница 22 – – труба 80 мм
  • Страница 24 – Га ран тий ный та лон
  • Страница 25 – ТАЛОН НА ГАРАНТИЙНОЕ ОБСЛУЖИВАНИЕ/
Загрузка инструкции

ИНСТРУКЦИЯ ПО ЭКСПЛУАТАЦИИ

FSB 15 Mi (Mpi)
FSB 25 Mi (Mpi)
FSB 35 Mi (Mpi)

FSB 40 Mi
FSB 50 Mi
FSB 60 Mi

"Загрузка инструкции" означает, что нужно подождать пока файл загрузится и можно будет его читать онлайн. Некоторые инструкции очень большие и время их появления зависит от вашей скорости интернета.

Краткое содержание

Страница 2 - electrolux; Содержание

2 electrolux Инструкция по эксплуатациинапольных газовых котлов с чугунным теплообменникомElectrolux серии FSB Мы благодарим Вас за сделанный выбор! Вы приобрели качественный и высокотехнологичный прибор, пожалуйста, перед использованием внимательно ознакомьтесь с инструкцией по монтажу и эксплуатац...

Страница 3 - газовые котлы; Внутренняя структура котла; Идентификация котла

газовые котлы 3 Внутренняя структура котла FSB ___ Mi FSB ___ Mpi 1 Корпус котла 2 Дефлектор 3 Труба возврата отопления 4 Насос отопления 5 Защитный экран горелки 6 Датчик давления 7 Предохранительный клапан 8 Корпус панели управления 9 Автоматический воздухоотводчик 10 Чугунный теплообменник 11 Тру...

Страница 4 - Циркуляционные насосы; чтобы получить доступ к оси ротора

4 electrolux Циркуляционные насосы Газовые котлы моделей FSB __ Mi;FSB ___ Mpi устанавливаются только в закрытых отопительных системах с принудительной циркуляцией теплоносителя. На приведенном ниже графике представлена характеристика циркуляционного насоса отопления, встроенного в котлы серии FSB _...

Характеристики

Другие модели - Котлы Electrolux

Все котлы Electrolux