Страница 2 - electrolux; Содержание
2 electrolux Инструкция по эксплуатациинапольных газовых котлов с чугунным теплообменникомElectrolux серии FSB Мы благодарим Вас за сделанный выбор! Вы приобрели качественный и высокотехнологичный прибор, пожалуйста, перед использованием внимательно ознакомьтесь с инструкцией по монтажу и эксплуатац...
Страница 3 - газовые котлы; Внутренняя структура котла; Идентификация котла
газовые котлы 3 Внутренняя структура котла FSB ___ Mi FSB ___ Mpi 1 Корпус котла 2 Дефлектор 3 Труба возврата отопления 4 Насос отопления 5 Защитный экран горелки 6 Датчик давления 7 Предохранительный клапан 8 Корпус панели управления 9 Автоматический воздухоотводчик 10 Чугунный теплообменник 11 Тру...
Страница 4 - Циркуляционные насосы; чтобы получить доступ к оси ротора
4 electrolux Циркуляционные насосы Газовые котлы моделей FSB __ Mi;FSB ___ Mpi устанавливаются только в закрытых отопительных системах с принудительной циркуляцией теплоносителя. На приведенном ниже графике представлена характеристика циркуляционного насоса отопления, встроенного в котлы серии FSB _...
Страница 5 - Технические характеристики
газовые котлы 5 Технические характеристики FSB __MiFSB __Mpi Единицы измерения 15 Mi 15 Mpi 25 Mi 25 Mpi 35 Mi 35 Mpi 40 Mi 50 Mi 60 Mi Технические данные Тепловая мощность горелки кВт 16/11,2 24/16,8 32/22,5 40,5/28,45 48,9/34,2 57,4/40,2 Полезная тепловая мощность кВт 14/9,8 22/15,4 29,3/20,5 36,8...
Страница 7 - Панель управления
газовые котлы 7 Панель управления 1 1 1 1 -% -% -% Р4 Регулятор угла наклона линии РЗ Регулятор отопления и регулятор параллельного сдвига Р2 Регулятор ГВС Р1 Переключатель выбора режима LD1 Электропитание включено LD2 Режим отопления LD3 Режим ГВС 13 защитных функций № Функция безопасности Основные...
Страница 8 - Заполнение системы отопления; Требования к воде, используемой в качестве
8 electrolux Заполнение и слив системы отопления Заполнение системы отопления Подсоединив все оборудование, можно приступить к заполнению системы. Эту операцию надо проводить с тщательным соблюдением следующего:• Откройте выпускные воздушные краны на радиаторах (краны Маевского); • Постепенно открой...
Страница 9 - Слив отопительной системы; Включение котла и его работа; Проверка котла перед первым включением
газовые котлы 9 Слив отопительной системы Перед сливом воды отключите электричество. • Откройте все краны котла и отопительной системы. • Откройте кран слива котла или кран, рас- положенный в нижней точке отопительной системы. В экстренном случае поверните предохранительный кран, чтобы слить воду. В...
Страница 11 - Активация режима приготовления ГВС
газовые котлы 11 • Нажмите кнопки до отказа. Услышите шелчок. Регулятор работы переведите в положение RESET и далее в рабочее положение. • Котёл повторит попытку розжига. Если блокировка повторится неоднократно – вызовите сервисную службу! Активация режима приготовления ГВС (подключен бойлер косвенн...
Страница 12 - Выключение котла на долгое время; Техническое обслуживание
12 electrolux • При увеличении значения с помощью регулятора (P4) увеличивается температура подачи отопления • Поворотом ручки регулирования отопления (P3) интервал регулирования изменяется (расширяется или сужается), что в результате повышает или снижает постоянную температуру отапливаемого помещен...
Страница 15 - Монтаж котла; Распаковка
газовые котлы 15 Монтаж котла Распаковка Котел упакован в картонную коробку, его надо распаковывать в несколько этапов: Проверка и принятие Комплектность поставки:• Котёл;• Инструкция по эксплуатации и установке;Настоящая Инструкция является основным руководящим документом по монтажу и эксплуатации ...
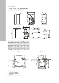
Страница 16 - – подача отопления 1”
16 electrolux Габаритные и присоединительные размеры котлов Electrolux % " " # $ # $ FSB _ Mi A, мм В, мм D, мм С, мм Вес, кг 15 Mi – 15 Mpi 485 232,5 30 130 92 25 Mi – 25 Mpi 485 232,5 30 130 106 35 Mi – 35 Mpi 560 270 30 130 120 FSB 40 Mi 635 307,5 50 150 134 FSB 50 Mi 710 345 197 180 145 ...
Страница 17 - Принципиальные схемы работы; FE
газовые котлы 17 Принципиальные схемы работы 1 Теплообменник 2 Основная горелка 3 Газовый клапан 4 Запальник 5 Аварийный термостат отопления 6 Электрод розжига 7 Обратный клапан 8 Циркуляционный насос 9 Закрытый расширительный бак 10 Газовый кран 11 Заправочный кран 12 Предохранительный клапан на 3 ...
Страница 19 - Программирование котла; Заводские и эксплуатационные установки; Параметр; Изменение значения параметра
газовые котлы 19 подключения к прибору бойлера косвенного нагрева удаляют, а на его место подключается датчик. Программирование котла Изменить большинство функций прибора можно путем его перепрограммирования. Если заводские установки не удовлетворяют пожеланиям, а программа прибора позволяет сделать...
Страница 20 - Переход на другой тип газа
20 electrolux Когда селектор находится в положении RESET или «программирования» («сервис»), то котел находится в состоянии «выключено». В функции «программирования» («сервис»), если в течение 20 секунд не начинается настройка параметров, функция программирования автоматически прервётся и параметры н...
Страница 22 - – труба 80 мм
22 electrolux Варианты монтажа дымохода с насадкой «TURBO» 1 4 5 4 3 2 2 Обозначения: 1 – TURBO A, B, C 2 – труба 80 мм 3 – защитная решетка от птиц 4 – колено 80 мм 90 5 –элемент для отведения конденсата 2 1 3 Обозначения: 1 – TURBO A, B, C 2 – труба 80 мм 3 – защитная решетка от птиц
Страница 24 - Га ран тий ный та лон
Га ран тий ный та лон Настоящий документ не ограничивает определенные законом права потребителей, но дополняет и уточняет ого-воренные законом обязательства, предполагающие согла-шение сторон либо договор. Правильное заполнение гарантийного талона Внимательно ознакомьтесь с гарантийным талоном и про...
Страница 25 - ТАЛОН НА ГАРАНТИЙНОЕ ОБСЛУЖИВАНИЕ/
параметрам и безопасности) электрической, газовой или водопровод-ной сети и прочих внешних сетей; • дефектов, возникших вследствие попадания внутрь изделия посторонних предметов, жидкостей, насекомых и продуктов их жизне-деятельности, и т.д. • неправильного хранения изделия;• необходимости замены ра...