Духовые шкафы Samsung NV75K5571BS - инструкция пользователя по применению, эксплуатации и установке на русском языке. Мы надеемся, она поможет вам решить возникшие у вас вопросы при эксплуатации техники.
Если остались вопросы, задайте их в комментариях после инструкции.
"Загружаем инструкцию", означает, что нужно подождать пока файл загрузится и можно будет его читать онлайн. Некоторые инструкции очень большие и время их появления зависит от вашей скорости интернета.

Русский 9
Ус
тановк
а
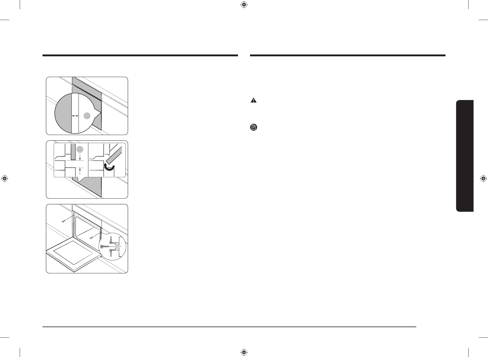
Установка духового шкафа
A
Оставьте зазор
(A)
не менее 5 мм между духовым
шкафом и каждой из стенок отсека.
B
Также оставьте зазор
(B)
не менее 3 мм, чтобы дверца
легко открывалась и закрывалась.
Установите духовой шкаф в отсек кухонной мебели и надежно
закрепите его с обеих сторон 2 винтами.
По завершении установки снимите защитную пленку, защитную ленту и другие упаковочные
материалы, а также выньте дополнительные принадлежности из духового шкафа. Перед извлечением
духового шкафа из отсека кухонной мебели отключите его от сети электропитания и выкрутите 2 винта
с обеих сторон.
ПРЕДУПРЕЖДЕНИЕ
Для надлежащей работы духового шкафа необходимо обеспечить достаточную вентиляцию. Ни при
каких обстоятельствах не следует закрывать вентиляционные отверстия.
ПРИМЕЧАНИЕ
Фактический внешний вид духового шкафа может отличаться в зависимости от модели.
NV75K5571RS_WT_DG68-00739A-01_RU+UK+KK+UZ.indb 9
2017-02-03 10:55:31