Духовые шкафы DeLonghi DMA 8 EX - инструкция пользователя по применению, эксплуатации и установке на русском языке. Мы надеемся, она поможет вам решить возникшие у вас вопросы при эксплуатации техники.
Если остались вопросы, задайте их в комментариях после инструкции.
"Загружаем инструкцию", означает, что нужно подождать пока файл загрузится и можно будет его читать онлайн. Некоторые инструкции очень большие и время их появления зависит от вашей скорости интернета.

39
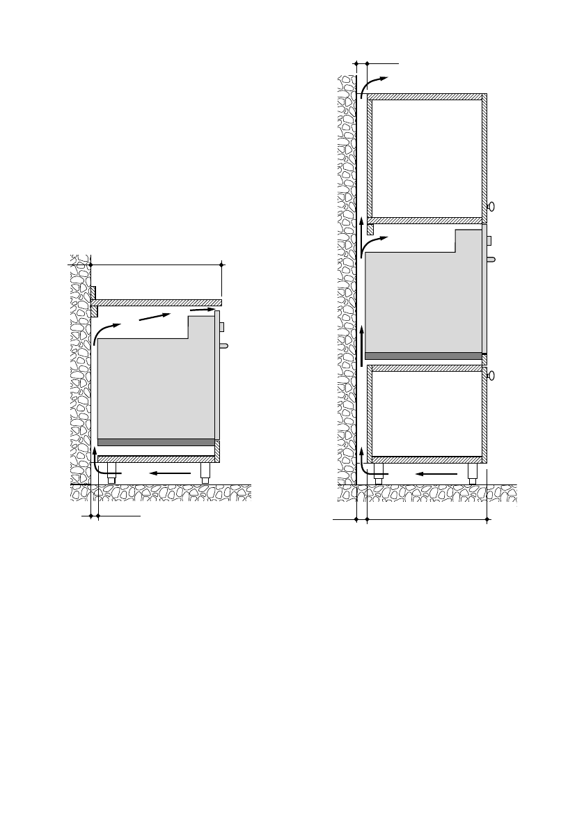
Для вентиляции внутренней полости необходимо предусмотреть вентиляционные каналы, как
указано на Рис. 5.3 и 5.4.
Стенки вокруг духового шкафа должны быть изготовлены из термостойкого материала.
Поднимать духовой шкаф за ручку ЗАПРЕЩЕНО.
Рис. 5.3
30 mm
600
50 mm
50
550
Рис. 5.4
Содержание
- 3 ПРЕДУПРЕЖДЕНИЕ
- 5 ехнические
- 6 ПАНЕЛЬ УПРАВЛЕНИЯ
- 7 лекТронный
- 8 ИЛИ; УСТАНОВКА ТЕКУЩЕГО ВРЕМЕНИ; дождаться акустического сигнала, который прозвучит три раза.; ХАРАКТЕРИСТИКИ ЭЛЕКТРОННОГО
- 9 “OFF”
- 10 ВКЛЮЧЕНИЕ ФУНКЦИИ «ЗАЩИТА ОТ ДЕТЕЙ»
- 11 ЗВУКОВОЕ НАПОМИНАНИЕ
- 12 РЕЖИМ РУЧНОГО УПРАВЛЕНИЯ ДУХОВОГО ШКАФА; истечения этого времени он автоматически выключается.; ОТМЕНА УСТАНОВЛЕННОЙ ПРОГРАММЫ; работу в установленном режиме.
- 13 или; Пример
- 14 ВТОРОЙ МЕТОД: программирование продолжительности окончания
- 15 РЕЖИМ АВТОМАТИЧЕСКОГО ПРИГОТОВЛЕНИЯ – НАЧАЛО И; Установите продолжительность приготовления
- 17 ЗВУКОВОЙ СИГНАЛ
- 18 СЛУЧАИ НЕИСПРАВНОСТИ– КОДЫ ОШИБОК; Духовой шкаф приостанавливает работу.; ПРОГРАММАТОРА И ПАНЕЛИ ТЕМПЕРАТУРНОГО КОНТРОЛЯ
- 19 спользование; Температура приготовления
- 20 ВЫБОР И ИЗМЕНЕНИЕ РЕЖИМОВ ДУХОВОГО ШКАФА; Лампочка внутри духового шкафа
- 21 OFF; ТРАДИЦИОННОЕ ПРИГОТОВЛЕНИЕ КОНВЕКЦИЕЙ
- 22 ПРИГОТОВЛЕНИЕ НА ГРИЛЕ; ПРИГОТОВЛЕНИЕ НА ГРИЛЕ С КОНВЕКЦИЕЙ; ПРИГОТОВЛЕНИЕ ГОРЯЧИМ ВОЗДУХОМ
- 23 ПРИГОТОВЛЕНИЕ КОНВЕКЦИЕЙ С ВЕНТИЛЯЦИЕЙ; РАЗМОРАЖИВАНИЕ ПРОДУКТОВ ИЛИ РАЗОГРЕВАНИЕ ПИЩИ
- 24 СТЕРИЛИЗАЦИЯ; Приготовление на гриле должно проис-
- 25 В процессе приготовления на гриле
- 26 ОБЩИЕ РЕКОМЕНДАЦИИ; ПОМОЩЬЮ ГОРЯЧЕЙ МЫЛЬНОЙ ВОДЫ.; ДЕТАЛИ ИЗ НЕРЖАВЕЮЩЕЙ СТАЛИ, АЛЮМИНИЯ И ПОВЕРХНОСТИ,
- 27 ЭМАЛИРОВАННЫЕ ДЕТАЛИ
- 29 Демонтаж осуществляется следующим образом:
- 30 СКОЛЬЗЯЩИЕ ПОЛОЧКИ (только в некоторых моделях)
- 32 ОБРАТИТЕ; МОДЕЛИ, НА КОТОРЫХ ЛАМПОЧКА УСТАНОВЛЕНА ВВЕРХУ СПРАВА
- 33 (С НЕСЪЕМНЫМ ВНУТРЕННИМ; ДЕМОНТАЖ ДВЕРЦЫ
- 34 (СО СЪЕМНЫМ ВНУТРЕННИМ
- 35 ДУХОВОГО ШКАФА; ДЕМОНТАЖ ВНУТРЕННЕГО СТЕКЛА
- 37 Поднимать духовой шкаф за ручку запрещено.
- 38 ОБРАТИТЕ ВНИМАНИЕ; сТановка
- 39 Поднимать духовой шкаф за ручку ЗАПРЕЩЕНО.
- 40 КРЕПЛЕНИЕ ДУХОВОГО ШКАФА; Примечание; Осторожно
- 41 реждение нижней части духового шкафа.
- 43 СЕЧЕНИЕ ПОДВОДЯЩЕГО; PE